Led Panel Advanced Tunable white
Installation Instructions
V1.1 -01.21
BL 2700-6000K Led Panel Advanced Tunable white

Safety notes
![]()
- Never work when voltage is present on the luminaire.
- The installation must be performed by a professional installer in compliance with the standards and regulations relating to electrical installations
- Risk of electrostatic discharges. (ESD Norm).
Handle with precautions. - Please observe the notes and steps described in the mounting instructions.
Maintenance instructions
![]()
- Do not use chemicals or abrasives products to clean the fixture.
- Keep these instructions for dismantling or future maintenance. You can consult additional information about RESISTEX luminaires on the website www.resistex-sa.com. RESIST cannot be responsible for any misuse of the product.
MONTAGE / INSTALLATION


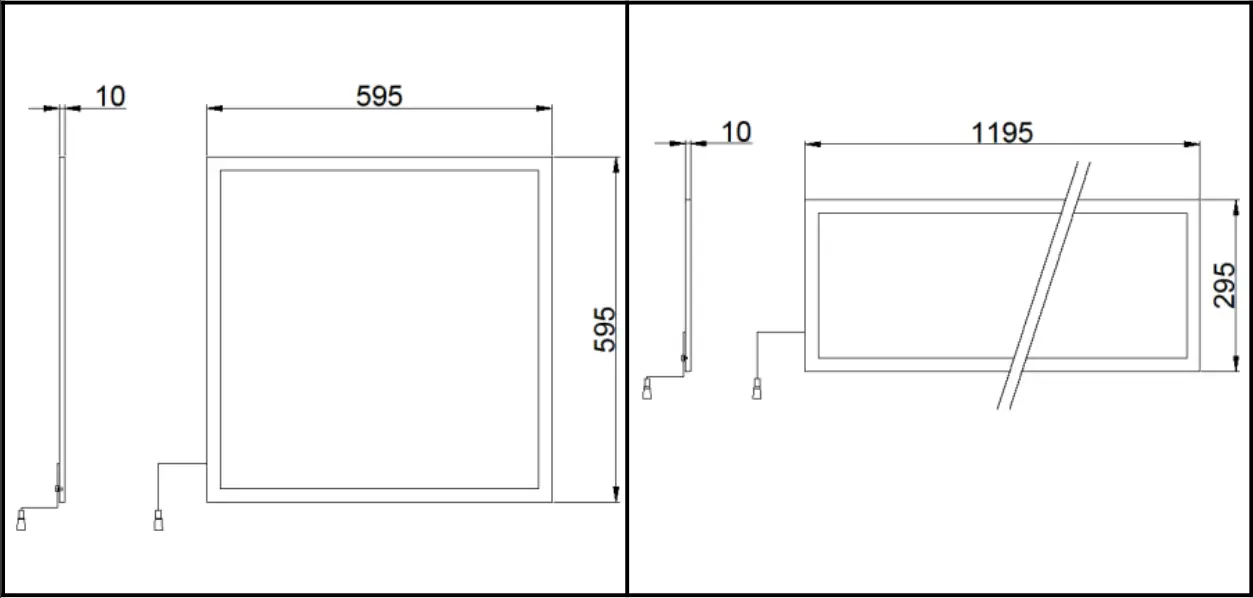
DIMENSION / SIZE

www.resistex-sa.com
RESISTEX EXPLOITATION, 11 Quai de la Banquière
CS 80010, 06730 Saint-André-de-la-Roche – France
Tél. 04 93 276 276
Fax 04 93 276 280
[email protected]
APE 2740Z – Siret 487 593 477 00010
SAS CAPITAL 649979 €
T.V.A. F.R. 73 487 593 477![]()
![]()


















