Predator®
Medium Floodlight Hazardous
Installation and Maintenance Manual
Predator Medium Floodlight Hazardous
AFTER INSTALLATION DELIVER THIS MANUAL TO OWNER
IMPORTANT SAFETY INSTRUCTIONS
WARNING-READ THESE INSTRUCTIONS CAREFULLY BEFORE ATTEMPTING TO INSTALL OR MAINTAIN THIS FIXTURE. WORK MUST BE DONE BY QUALIFIED PERSONNEL.
WARNING-BE CERTAIN THAT ALL ELECTRICAL POWER IS DISCONNECTED FROM THE FIXTURE BEFORE INSTALLING OR MAINTAINING THE FIXTURE.
WARNING-FOLLOW LAMP MANUFACTURER’S OPERATING AND MAINTENANCE INSTRUCTIONS.
FAILURE TO FOLLOW THESE WARNINGS MAY RESULT IN DEATH, INJURY OR SIGNIFICANT PROPERTY DAMAGE.
INTRODUCTION
1.1 Product Description.
The Predator floodlights have been designed and tested in accordance with UL844 and UL595. These floodlights comply with applicable paragraphs of Sections 501, 502, and 503 of the National Electrical Code.
- The fixture identification label provides information regarding suitable environmental applications.
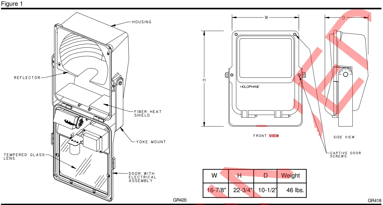
- The floodlight model size is referred to in Figure 1.
- Major components of the floodlight are identified in Figure 1.
- The Predator floodlights have been designed to allow permanent installation of the yoke and housing while still providing easy maintenance and repair.
- The lamp, all electrical components, and the reflector can be accessed by opening the door.
- Using a socket wrench, the door can be opened by loosening captive door screws.
- All electrical components and the lens are contained on the door and the door can be removed easily and without tools (once the captive door screws are loosened).
- Doors can be replaced as units and repaired in a shop under protected conditions.
- The reflector located within the housing can be replaced as needed. Different types of reflectors will provide different light distributions.
WARNING
WHEN INSTALLING OR MAINTAINING EQUIPMENT IN CLASS II LOCATIONS, PREVENT THE ACCUMULATION OF THE COMBUSTIBLE DUST IN THE FIXTURE OR COMPLETELY REMOVE SUCH DUST BEFORE CLOSING THE FIXTURE. DO NOT CONNECT ELECTRICAL POWER TO THE FIXTURES IN HAZARDOUS LOCATIONS UNTIL THE FIXTURES HAVE BEEN COMPLETELY INSTALLED AND PROPERLY CLOSED. FAILURE TO FOLLOW THESE WARNING INSTRUCTIONS MAY RESULT IN FIRE AND SIGNIFICANT PROPERTY DAMAGE.
1.2 Alternate Information Sources. If additional questions arise relative to the Predator floodlight that this document or your supplier cannot answer please refer them to:
Holophane
Field Service Department
P.O. Box 3004
Newark, OH 43058-3004
866-759-1577
1.3 Definition of Terms.
Class I, Div. 2 Flammable liquids or gases present in closed containers or systems and only released accidentally or through abnormal operation of equipment. Ignitable concentrations of gases or vapors prevented by ventilation but potentially hazardous if equipment failure occurs. Areas adjacent to Class I, Div 1.
Class II Combustible dust present or may be present as a result of equipment failure.
Class III Easily ignitable fibers or flyings present but are not likely to be in suspension in the air in sufficient quantities to produce ignitable mixtures.
INSTALLATION
2.1 Tools and Materials Required. The following tools and materials are required during installation of the Predator floodlight.
TABLE 1. Installation Tools and Materials
| DESCRIPTION 3/8″ hex head socket wrench Wrench for 3/4″ hex Wire nuts Torque wrench | USE Captive door screws Yoke Mount Captive door screw |

2.2 Yoke Mount Installation.
WARNING
DO NOT USE A PHOTOCONTROL IN A LOCATION HAVING A UL CLASSIFICATION OF CLASS I, DIV. 2 OR CLASS II, DIV. 1. DO NOT USE FUSING IN A LOCATION HAVING A UL CLASSIFICATION OF CLASS I. FAILURE TO FOLLOW THESE WARNING INSTRUCTIONS MAY RESULT IN FIRE AND SIGNIFICANT PROPERTY DAMAGE.
2.2.1 Bolt the yoke to the mounting structure using either two 3/8″ bolts or one 1/2″ grade 5 bolt. Tighten bolts securely (30-35 ft.lbs. for 3/8″ bolts or 50-60 ft.lbs. for 1/2″ bolt). These bolts are not provided.
2.2.2 Loosen the coptive door screws attaching the door to the housing. Open the door.
2.2.3 Detach the power disconnect plug from the disconnect receptacle in the housing.
2.2.4 If needed, remove the door by removing the cotter pin from the hinge pin and sliding the door hinge pins out of the housing.
2.2.5 Use UL approved watertight fittings (not provided) on all installations. If installed in a Marine location, use rigid metal conduit or AVC Marine cable (not provided) and watertight cable grip fittings (not provided) for power supply conductors.
NOTE
The threaded hole in the back of the housing is tapped for 1/2-14 NPT.
2.2.6 Remove clear protective cover and install watertight fitting.
Tighten securely.
2.2.7 Make all wiring connections in accordance with approved wiring methods. Ensure that all supply wires and supply wire connections are retained between the folds of the fiber heat shield in the housing.
2.2.8 If the door was removed as in 2.2.3, reinstall the door by sliding the door hinge pins into the housing. Insert the cotter pin through the hinge pin.
2.2.9 Insert the door disconnect plug into the disconnect receptacle in the housing.
2.2.10 Securely install the proper lamp type.
2.2.11 Close the door. Thread the captive door screws into the housing. Tighten captive door sccrews to 55 in. lbs. torque. This is required for watertight door seal.
2.2.12 Refer to the identification label on the unit for mounting restrictions. Aim the floodlight.
2.2.13 Tighten the yoke bolts securely (approx. 50 ft.lb. recommended).
2.2.14 Energize the floodlight. Check its operation and for proper area illumination. Adjust the aiming point as needed but within the limits of the mounting restrictions.
MAINTENANCE
3.1 Relamping and cleaning.
3.1.1 Deenergize the floodlight.
3.1.2 Wipe off the exterior of floodlight to remove dirt or debris that could enter when the door is opened.
3.1.3 Loosen the captive door screws attaching the door to the housing. Open the door.
3.1.4 Remove the lamp type.
3.1.5 Securely install a proper new lamp type.
3.1.6 Wash both sides of the lens.
CAUTION
KEEP ELECTRICAL COMPNENTS DRY. DO NOT USE ABRASIVE CLEANERS ON THE GLASS OR REFLECTOR LOSS OF OPTICAL PERFORMANCE AND SUBSEQUENT GLASS BREAKAGE COULD RESULT.
3.1.7 Check the condition of the door gasket and seal area on the housing. Ensure that no damage exists that could affect seal integrity.
3.1.8 Check the interior of the housing and door for evidence of damage or potentially hazardous conditions.
WARNING
FOR REPLACEMENT OF ANY DAMAGED COMPONENTS, ESPECIALLY THOSE THAT MAY PREVENT THE PROPER SEALING OF THE FIXTURE (CONTACT HOLOPHANE FIELD SERVICE DEPARTMENT). FAILURE TO DO SO MAY RESULT IN SIGNIFICANT PROPERTY DAMAGE.
3.1.9 Wipe the gasket and seal area clean with a clean, dry rag and ensure that no dirt or debris will prevent an adequate seal during closing.
3.1.10 Close the door. Tighten captive door screws to 55 in. lbs. torque. This is required for watertight door seal.
3.2 Door Replacement/Repair.
3.2.1 De-energize the floodlight.
3.2.2 Wipe off the exterior of floodlight to remove dirt or debris that could enter when the door is opened.
3.2.3 Loosen the captive door screws attaching the door to the housing. Open the door.
3.2.4 Detach the power disconnect.
3.2.5 Remove the cotter pin from the hinge pin.
3.2.6 Slide the door hinge pins out of the housing.
3.3 Electrical Component Replacement.
Electrical components mounted on the door can be replaced as follows:
3.3.1 Tag electrical leads for use when installing the new components.
3.3.2 Break electrical connections.
3.3.3 Remove the attaching hardware and retain for reuse.
3.3.4 Remove the electrical component.
3.3.5 If needed during installation, remove any electrical or heat insulating components from the removed electrical component. Install them onto the new component.
3.3.6 Place the new component into position.
3.3.7 Install the attaching hardware. Tighten securely.
3.3.8 Make electrical connections in accordance with wire tags and approved wiring practices.
3.4 Door Installation.
3.4.1 Slide the door hinge pins into the housing.
3.4.2 Insert the cotter pin through the hinge pin.
3.4.3 Insert the door disconnect plug into the disconnect receptacle in the housing.
3.4.4 Check the condition of the door gasket and seal area on the housing. Ensure that no damage exists that could affect seal integrity.
3.4.5 Check the interior of the housing and door for evidence of damage or potentially hazardous conditions.
WARNING
FOR REPLACEMENT OF ANY DAMAGED COMPONENTS, ESPECIALLY THOSE THAT MAY PREVENT THE PROPER SEALING OF THE FIXTURE (CONTACT HOLOPHANE FIELD SERVICE DEPARTMENT). FAILURE TO DO SO MAY RESULT IN SIGNIFICANT PROPERTY DAMAGE.
3.4.6 Wipe the gasket and seal area clean with a clean, dry rag and ensure that no dirt or debris will prevent an adequate seal during closing.
3.4.7 Close the door. Tighten captive door screws to 55 in. lbs. torque. This is required for watertight door seal.
3.4.8 Energize the floodlight. Check its operation and for proper area illumination.
OPTIONS OR ACCESSORIES
The following options or accessories may be present on your installation.
4.1 Visor Installation and Maintenance.
When installed, the visor limits the vertical spread of emitted light.
4.1.1 Attach the clips to the shield, one in the center and one on each corner at approximately the location of the holes. The shield goes into the narrow side of the clip. See Figure 2.
4.1.2 Fasten the shield with the clips to the door assembly. A small screwdriver can be used to spread the leg of clips to start them over the cast rib on the door.
NOTE
Three 3/16″ diameter holes in shield can be used as a template if the installer chooses to drill holes through the casting rib and fasten the shield to the door with screws (not provided). Screws are recommended in high wind and rough service areas.
4.1.3 Clean accumulated dust and dirt from visor when relamping.
4.2 Wire Guard Installation and Maintenance.
When installed, the wire guard helps protect the tempered glass lens from damage.
4.2.1 Loosen the captive door screws. See Figure 3.
4.2.2 Slide the mounting loops in the wire guard over all four screws.
4.2.3 Tighten captive door screws to 55 in. lbs. torque. This is required for watertight door seal.
Limited Warranty and Limitation of Liability
The Holophane limited warranty and limitation of liability is published in the “Terms and Conditions” section of the current Holophane buyer’s guide, and is available from your local Holophane sales representative.

Acuity Lighting Group, Inc.
214 Oakwood Ave., Newark, OH 43055
IM-64-B 7/02 ©2002 Acuity Lighting Group Inc.
Visit our web site at www.holophane.com
Printed in USA
DISCONTINUED

















