MARVEL MACL215 Low Profile Built-In Clear Ice Machine

Welcome to the Marvel Experience!
Congratulations on your purchase of the industry’s quietest clear ice machine with the best ice clarity and purity. Your new investment is protected by a limited warranty for the first year, and hermetically sealed refrigeration system parts are covered for an additional 4 years. Here’s your guide to the operation and maintenance of your Marvel Clear Ice Machine to ensure years of enjoyment. If you have any questions, please contact Marvel Customer Service or Tech Support at:
Phone: (616) 754-5601
Email:
- Customer Service: [email protected]
- Tech Support: [email protected]
Got a Marvelous Design?
We would love to see how your Marvel product looks in its new home. Send us photos at [email protected], and we might feature your Marvel home design on our website and social media!
Warranty Registration
It is important you send in your warranty registration card immediately after taking delivery of your appliance or you can register online at www.marvelrefrigeration.com.
The following information will be required when registering your appliance:
Service Number
Serial Number
Date of Purchase
Dealer’s name and address
The service number and serial number can be found on the serial plate which is located inside the cabinet on the left side near the top. 
Tip: Click on any section below to jump directly there
Installation
Integrated Panel Dimensions
Integrated Panel Installation
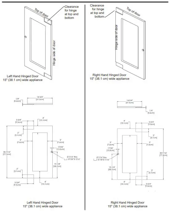
INTEGRATED PANEL DIMENSIONS 
INTEGRATED DOOR PANEL INSTALLATION
Cut and prepare panels according to the information provided in the Integrated Panel Dimensions section.
CAUTION
It is important to use the factory provided grille that came with the product to assure proper air flow is maintained through the condenser. The use of a custom grille is not recommended and will void the warranty.
Step 1: Removing the Door and Hinges
Hold the door secure in the closed position and remove Hinge Pin from the Upper Hinge using a 1/8” Hex Key tool. Slowly remove the door by sliding outward away from the cabinet and lift to remove off the Lower Hinge. If reversing the door, remove hinges from cabinet per Door Reversal Instructions. 
Remove the hinge bushing from the adaptor plate. A new bushing is included in the literature pack with your unit. 
Step 2: Remove the Door Gasket
With the door laying on a flat surface and starting at a corner of the door, remove the magnetic door gasket from the interior side of the door. Set the gasket aside on a flat surface.
There are 10 holes in the gasket retainer extrusions (3 on each side and 2 at the top and bottom) which are used to fasten the panel to the front of the door. The screws are provided in the literature pack.
Step 3: Assemble the Panel to the Door
The preferred method of attaching the panel to the door is to clamp the panel to the door so it cannot move while drilling the screw pilot holes. Use bar clamps or “C” clamps with pads on the clamping surfaces that will not mar the panel or the door. The custom panel should be flush with the top of the door and centered along the width of the door. Drill holes through the gasket extrusion using the 10 holes as pilot holes. Use the drill size from the chart in the table below being careful not to drill through the front sur-face of the panel. Fasten the panel to the door with the 10 screws provided in the literature pack. Remove the clamps and replace the gasket in the gasket extrusion channels of the door. Some force may be required to seat the gasket into the channels. Be sure the gasket corners are seated properly. 
| Material Type | #10 Wood Screw |
| Hardwood | 1⁄8″ (3.2 mm) Diameter. Pilot Hole |
| Softwood | 7⁄64 (2.8 mm) Diameter. Pilot Hole |
Step 4: Install the Door
If reversing the door swing, reinstall hinges per Door Reversal Instructions. Carefully slide lower hinge bushing over bottom hinge pin. Install the new upper hinge bushing into adaptor plate. 
Align hinge bushing with top hinge and reinstall upper hinge pin using 1/8” Hex Key so that the pin is flush.




















