
INSTALLATION INSTRUCTIONS
NF80DT
Warm Air Gas Furnace
Downflow Air Discharge
NF80DT Warm Air Gas Furnace Downflow Air Discharge
NF80DT
This manual must be left with the homeowner for future reference.
This is a safety alert symbol and should never be ignored. When you see this symbol on labels or in manuals, be alert to the potential for personal injury or death.
WARNING
Improper installation, adjustment, alteration, service or maintenance can cause property damage, personal injury or loss of life. Installation and service must be performed by a licensed professional installer (or equivalent), service agency or the gas supplier.
CAUTION
As with any mechanical equipment, personal injury can result from contact with sharp sheet metal edges. Be careful when you handle this equipment.
NF80DT Gas Furnace
The NF80DT gas furnace is shipped ready for installation in the downflow position fueled by natural gas. A conversion kit (ordered separately) is required for use in LP/ Propane gas applications.
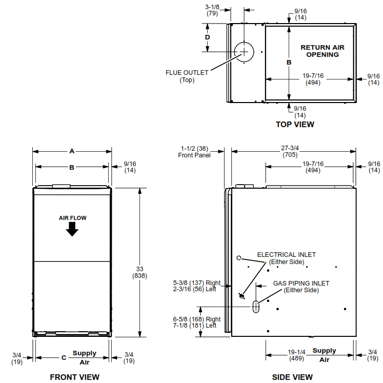
Unit Dimensions

Parts Arrangement

Shipping and Packing List
1 – Assembled Gas Furnace
1 – Bag assembly containing the following:
2 – Screws
1 – Snap bushing
1 – Snap plug
1 – Wire tie
1 – Vent warning label
1 – Owner’s manual and warranty card
The following items may be ordered separately:
1 – Thermostat
1 – LP / Propane changeover kit
1 – Combustible flooring base
1 – High altitude kit
Check equipment for shipping damage. If you find any damage, immediately contact the last carrier.
Safety Information
DANGER
DANGER OF EXPLOSION!
There are circumstances in which odorant used with LP/Propane gas can lose its scent. In case of a leak, LP/Propane gas will settle close to the floor and may be difficult to smell. An LP/Propane leak detector should be installed in all LP applications.
CAUTION
As with any mechanical equipment, personal injury can result from contact with sharp sheet metal edges. Be careful when you handle this equipment.
WARNING
Improper installation, adjustment, alteration, service or maintenance can cause property damage, personal injury or loss of life. Installation and service must be performed by a licensed professional installer (or equivalent), service agency or the gas supplier.
Certifications
These units are CSA International certified to ANSI Z21.47. In the USA, installation of gas furnaces must conform with local building codes. In the absence of local codes, units must be installed according to the current National Fuel Gas Code (ANSI-Z223.1). The National Fuel Gas Code is available from the following address.
American National Standards Institute, Inc.
11 West 42nd Street New York, NY 10036
Clearances
Adequate clearance must be made around the air openings into the vestibule area. In order to ensure proper unit operation, combustion and ventilation air supply must be
provided according to the current National Fuel Gas Code. Vent installations must be consistent with the venting tables (in this instruction) and applicable provisions of local
building codes. This furnace is CSA International certified for installation clearances to combustible material as listed on the unit nameplate and in the tables in Figure 14. Accessibility and service clearances must take precedence over fire protection clearances.
Installed Locations
For installation in a residential garage, the furnace must be installed so that the burner(s) and the ignition source are located no less than 18 inches (457 mm) above the floor.
The furnace must be located or protected to avoid physical damage by vehicles. When a furnace is installed in a public garage, hangar, or other building that has a hazardous
atmosphere, the furnace must be installed according to recommended good practice requirements and current National Fuel Gas Code.
Temperature Rise
NOTE: Furnace must be adjusted to obtain a temperature rise within the range specified on the unit nameplate. Failure to do so may cause erratic limit operation and may result in premature heat exchanger failure. This furnace must be installed so that its electrical components are protected from water.
Installed in Combination with a Cooling Coil
When this furnace is used with cooling units, it shall be installed in parallel with, or on the upstream side of, cooling units to avoid condensation in the heating compartment.
With a parallel flow arrangement, a damper (or other means to control the flow of air) must adequately prevent chilled air from entering the furnace (see Figure 2). If the
damper is manually operated, it must be equipped to prevent operation of either the heating or the cooling unit, unless it is in the full HEAT or COOL setting.
When installed, this furnace must be electrically grounded according to local codes. In addition, in the United States, installation must conform with the current National
Electric Code, ANSI/NFPA No. 70. The National Electric Code (ANSI/NFPA No. 70) is available from the following address.
National Fire Protection Association
1 Battery March Park
Quincy, MA 02269
NOTE: This furnace is designed for a minimum continuous return air temperature of 60° F (16°C) or an intermittent operation down to 55° F (13°C) dry bulb for cases where a night setback thermostat is used. Return air temperature must not exceed 85° F (29°C) dry bulb.
This furnace may be installed in alcoves, closets, attics, basements, garages, crawl spaces and utility rooms in the upflow or horizontal position.
This furnace design has not been CSA certified for installation in mobile homes, recreational vehicles, or outdoors.
Use of Furnace as a Construction Heater
Units may be used for heating of buildings or structures under construction, if the following conditions are met to ensure proper operation.
DO NOT USE THE UNIT FOR CONSTRUCTION HEAT UNLESS ALL OF THE FOLLOWING CRITERIA ARE MET:
a. Furnace must be in its final location. The vent system must be permanently installed per these installation instructions.
b. Furnace must be installed as a two pipe system and one hundred percent (100%) outdoor air must be provided for combustion air requirements during construction.
c. A room thermostat must control the furnace. The use of fixed jumpers that will provide continuous heating is prohibited.
d. The input rate and temperature rise must be set per the furnace rating plate.
e. Supply and Return air ducts must be provided and sealed to the furnace. Return air must be terminated outside of the space where furnace is installed.
f. Return air temperature range between 60°F (16°C) and 80°F (27°C) must be maintained.
g. MERV 11 or greater air filters must be installed in the system and must be regularly inspected and maintained (e.g., regular static checks and replaced at end of life) during construction.
h. Blower and vestibule access panels must be in place on the furnace at all times.
i. The furnace heat exchanger, components, duct system, and evaporator coils must be thoroughly cleaned following final construction clean−up.
j. Air filters must be replaced upon construction completion.
k. All furnace operating conditions (including ignition, input rate, temperature rise and venting) must be verified in accordance with these installation instructions.
EQUIPMENT MAY EXPERIENCE PREMATURE COMPONENT FAILURE AS A RESULT OF FAILURE TO FOLLOW THE ABOVE INSTALLATION INSTRUCTIONS. FAILURE TO FOLLOW THE ABOVE INSTALLATION INSTRUCTIONS VOIDS THE MANUFACTURER’S EQUIPMENT LIMITED WARRANTY. GEA DISCLAIMS ALL LIABILITY IN CONNECTION WITH INSTALLER’S FAILURE TO FOLLOW THE ABOVE INSTALLATION
INSTRUCTIONS. NOTWITHSTANDING THE FOREGOING, INSTALLER IS RESPONSIBLE FOR CONFIRMING THAT THE USE OF CONSTRUCTION HEAT IS CONSISTENT WITH THE POLICIES AND CODES OF ALL REGULATING ENTITIES. ALL SUCH POLICIES AND CODES MUST BE ADHERED TO.
General
These instructions are intended as a general guide and do not supersede local codes in any way. Consult authorities having jurisdiction before installation.
In addition to the requirements outlined previously, the following general recommendations must be considered when installing one of these furnaces:
- Place the furnace as close to the center of the air distribution system as possible. The furnace should also be located close to the chimney or vent termination point.
- Do not install the furnace where drafts might blow directly into it. This could cause improper combustion and unsafe operation.
- Do not block the furnace combustion air openings with clothing, boxes, doors, etc. Air is needed for proper combustion and safe unit operation.
- When the furnace is installed in an attic or other insulated space, keep insulation away from the furnace.
NOTE: The Commonwealth of Massachusetts stipulates these additional requirements: - Gas furnaces shall be installed by a licensed plumber or fitter only.
- The gas cock must be “T handle” type.
- When a furnace is installed in an attic, the passageway to and service area surrounding the equipment shall be floored.
Combustion, Dilution & Ventilation Air
In the past, there was no problem in bringing in sufficient outdoor air for combustion. Infiltration provided all the air that was needed. In today’s homes, tight construction
practices make it necessary to bring in air from outside for combustion. Take into account that exhaust fans, appliance vents, chimneys, and fireplaces force additional air that could be used for combustion out of the house. Unless outside air is brought into the house for combustion, negative pressure (outside pressure is greater than inside pressure) will build to the point that a downdraft can occur in the furnace vent pipe or chimney. As a result, combustion gases enter the living space creating a potentially
dangerous situation.
In the absence of local codes concerning air for combustion and ventilation, use the guidelines and procedures in this section to install these furnaces to ensure efficient and
safe operation. You must consider combustion air needs and requirements for exhaust vents and gas piping. A portion of this information has been reprinted with permission from the National Fuel Gas Code
(ANSI-Z223.1). This reprinted material is not the complete and official position of the ANSI on the referenced subject, which is represented only by the standard in its entirety.
CAUTION
Do not install the furnace in a corrosive or contaminated atmosphere. Meet all combustion and ventilation air requirements, as well as all local codes.
WARNING
Insufficient combustion air can cause headaches, nausea, dizziness or asphyxiation. It will also cause excess water in the heat exchanger resulting in rusting and premature heat exchanger failure. Excessive exposure to contaminated combustion air will result in safety and performance related problems. Avoid exposure to the following substances in the combustion air supply:
- Permanent wave solutions
- Chlorinated waxes and cleaners
- Chlorine base swimming pool chemicals
- Water softening chemicals
- De-icing salts or chemicals
- Carbon tetrachloride
- Halogen type refrigerants
- Cleaning solvents (such as perchloroethylene)
- Printing inks, paint removers, varnishes, etc.
- Hydrochloric acid
- Antistatic fabric softeners for clothes dryers
- Masonry acid washing materials
All gas-fired appliances require air for the combustion process. If sufficient combustion air is not available, the furnace or other appliances will operate inefficiently and unsafely. Enough air must be provided to meet the needs of all fuel burning appliances and appliances such as exhaust fans which force air out of the house. When fireplaces, exhaust fans, or clothes dryers are used at the same time as the furnace, much more air is necessary to ensure proper combustion and to prevent a downdraft. Insufficient air causes incomplete combustion which can result in carbon monoxide.
In addition to providing combustion air, fresh outdoor air dilutes contaminants in the indoor air. These contaminants may include bleaches, adhesives, detergents, solvents and other contaminants which can corrode furnace components.
The requirements for providing air for combustion and ventilation depend largely on whether the furnace is installed in an unconfined or a confined space.
Unconfined Space
An unconfined space is an area such as a basement or large equipment room with a volume greater than 50 cubic feet (1.42 m3) per 1,000 Btu (.29 kW) per hour of the combined input rating of all appliances installed in that space. This space also includes adjacent rooms which are not separated by a door.
Though an area may appear to be unconfined, it might be necessary to bring in outdoor air for combustion if the structure does not provide enough air by infiltration. If the
furnace is located in a building of tight construction with weather stripping and caulking around the windows and doors, follow the procedures in the air from outside section.
Confined Space
A confined space is an area with a volume less than 50 cubic feet (1.42 m3) per 1,000 Btu (.29 kW) per hour of the combined input rating of all appliances installed in that space. This definition includes furnace closets or small equipment rooms.
When the furnace is installed so that supply ducts carry air circulated by the furnace to areas outside the space containing the furnace, the return air must be handled by
ducts which are sealed to the furnace casing and which terminate outside the space containing the furnace. This is especially important when the furnace is mounted on
a platform in a confined space such as a closet or small equipment room.
Even a small leak around the base of the unit at the platform or at the return air duct connection can cause a potentially dangerous negative pressure condition. Air for combustion and ventilation can be brought into the confined space either from inside the building or from outside.
Air from Inside
If the confined space that houses the furnace adjoins a space categorized as unconfined, air can be brought in by providing two permanent openings between the two spaces. Each opening must have a minimum free area of 1 square inch (645 mm2) per 1,000 Btu (.29 kW) per hour of total input rating of all gas fired equipment in the confined
space. Each opening must be at least 100 square inches (64516 mm2). One opening shall be within 12 inches (305 mm) of the top of the enclosure and one opening within 12
inches (305 mm) of the bottom. See Figure 3. 
Air from Outside
If air from outside is brought in for combustion and ventilation, the confined space must have two permanent openings. One opening shall be within 12 inches (305 mm) of the top of the enclosure and one opening within 12 inches (305 mm) of the bottom. These openings must communicate directly or by ducts with the outdoors or spaces (crawl or attic) that freely communicate with the outdoors or indirectly through vertical ducts. Each opening shall have a minimum free area of 1 square inch (645 mm2) per 4,000 Btu (1.17 kW) per hour of total input rating of all equipment in the enclosure. See Figure 4 and Figure 5. When communicating with the outdoors through horizontal ducts, each opening shall have a minimum free area of 1 square inch (645 mm2) per 2,000 Btu (.56 kW) per total input rating of all equipment in the enclosure. See Figure 6.
When ducts are used, they shall be of the same cross sectional area as the free area of the openings to which they connect. The minimum dimension of rectangular air ducts shall be no less than 3 inches (75 mm). In calculating free area, the blocking effect of louvers, grilles, or screens must be considered. If the design and free area of protective covering is not known for calculating the size opening required, it may be assumed that wood louvers will have 20 to 25 percent free area and metal louvers and grilles will have 60 to 75 percent free area. Louvers and grilles must be fixed in the open position or interlocked with the equipment so that they are opened automatically during equipment operation.
Figure 4. Equipment in Confined Space – All Air from Outside (Inlet Air from Crawl Space & Outlet Air to Ventilated Attic)
Figure 5. Equipment in Confined Space – All Air from Outside (All Air through Ventilated Attic)
Figure 6. Equipment in Confined Space – All Air from Outside
Setting Equipment
WARNING
Do not install the furnace on its front or its back. Do not connect the return air ducts to the back of the furnace. Doing so will adversely affect the operation of the safety
control devices, which could result in personal injury or death.
The gas furnace can be installed as shipped in either the upflow position or the horizontal position. Select a location that allows for the required clearances that are listed on the unit nameplate. Also consider gas supply connections, electrical supply, vent connection, and installation and service clearances [24 inches (610 mm) at unit front]. The unit must be level.
Units with 1/2 hp and 3/4 hp blower motors are equipped with three flexible legs and one rigid leg. See Figure 7. The rigid leg is equipped with a shipping bolt and a flat
white plastic washer (rather than the rubber mounting grommet used with a flexible mounting leg). The bolt and washer must be removed before the furnace is placed into
operation. After the bolt and washer have been removed, the rigid leg will not touch the blower housing.
WARNING
The blower access panel must be securely in place when the blower and burners are operating. Gas fumes, which could contain carbon monoxide, can be drawn into living space resulting in personal injury or death.
Downflow Installation
Downflow unit installs in three ways: on non-combustible flooring, on combustible flooring using a downflow combustible flooring base, or on a reverse-flow cooling cabinet. Do not drag the unit across the floor. Installation on Non-Combustible Flooring (Figure 8)
- Cut floor opening keeping in mind clearances listed on unit rating plate. Also keep in mind gas supply connections, electrical supply, flue and air intake connections and sufficient installation and servicing clearances. See Table 1 for correct floor opening size.
- Flange warm air plenum and lower the plenum into the opening.
- Set the unit over the plenum and seal the plenum to the unit.
- Ensure that the seal is adequate.

| Cabinet Width | Front to Rear | Side to Side | ||
| in | mm | in | mm | |
| A (14-1/2”) | 19-3/4 | 502 | 13-1/4 | 337 |
| B (17-1/2”) | 19-3/4 | 502 | 16-1/4 | 413 |
| NOTE – Floor opening dimensions listed are 1/4 inch (6 mm) larger than the unit opening. See unit dimensions on Page 2. | ||||
Table 1. Non-Combustible Floor Opening Size Installation on Combustible Flooring (Figure 9)
- When unit is installed on a combustible floor, a downflow combustible flooring base must be installed between the furnace and the floor. The base must be ordered separately. See Table 2 for opening size to cut in floor.
- After opening is cut, set combustible flooring base into opening.
- Check sealing strips on combustible flooring base to make sure they are properly glued and positioned.
- Lower supply air plenum into downflow combustible flooring base until plenum flanges seal against the strips.
NOTE: Be careful not to damage sealing strips. Check for a tight seal. - Set the furnace over the plenum.
- Ensure that the seal between the furnace and plenum is adequate.
IMPORTANT
The furnace and downflow combustible flooring base shall not be installed directly on carpeting, tile, or other combustible material other than wood flooring.
| Cabinet Width | Front to Rear | Side to Side | ||
| in | mm | in | mm | |
| A (14-1/2”) | 22 | 559 | 15-3/4 | 400 |
| B (17-1/2”) | 22 | 559 | 18-3/4 | 476 |
Installation on Cooling Cabinet
(Figure 10)
- Refer to reverse-flow coil installation instructions for correctly sized opening in floor and installation of cabinet.
NOTE: Downflow combustible flooring kit is not used. - When cooling cabinet is in place, set and secure the furnace according to the instructions that are provided with the cooling coil. Secure the furnace to the cabinet.
- Seal the cabinet and check for air leaks.

Return Air Opening — Downflow Units
The following steps should be taken when installing plenum:
- Bottom edge of plenum should be flanged with a hemmed edge (see Figure 11).

- Sealing strip should be used.
- In all cases, plenum should be secured to top flanges of furnace with sheet metal screws.

- In closet installations, it may be impossible to install sheet metal screws from the outside. In this case, make plenum with a removable front and install screws= from the inside (see Figure 12).
- Make certain that an adequate seal is made.

Downflow Application
Allow for clearances to combustible materials as indicated on the unit nameplate. Minimum clearances for closet or alcove installations are shown in Figure 14.
![]() | ||
| Type of Vent Connector | Type C | Type B1 |
| Top | 1 in. (25 mm) | 1 in. (25 mm) |
| *Front | 2-1/4 in. (57 mm) ** | 2-1/4 in. (57 mm) ** |
| Back | 0 | 0 |
| Sides | 0 † | 0 |
| Vent | 6 in. (152 mm) | 1 in. (25 mm) |
| Floor | NC †† | NC †† |
| * Front clearance in alcove installation must be 24 in. (610 mm). Maintain a minimum of 24 in. (610 mm) for front service access. ** 3-1/4 in. if single wall vent pipe is used. † Left side requires 3 in. if a single wall vent is used on 14-1/2 in. cabinets, or 2 in. if a single wall vent is used on 17-1/2 in. cabinets. †† The furnace may be installed on a combustible wood floor if an optional additive base is installed between the furnace and the combustible floor. | ||
Figure 14. Downflow Application Installation Clearances
WARNING Improper installation of the furnace can result in personal injury or death. Combustion and flue products must never be allowed to enter the return air system or the living space. Use screws and joint tape to seal the return air system to the furnace. In platform installations with bottom return air, the furnace should be sealed airtight to the return air plenum. A door must never be used as a portion of the return air duct system. The base must provide a stable support and an airtight seal to the furnace. Allow absolutely no sagging, cracks, gaps, etc. The return and supply air duct systems must never be connected to or from other heating devices such as a fireplace or stove, etc. Fire, explosion, carbon monoxide poisoning, personal injury and/or property damage could result.
Filters
This unit is not equipped with a filter or rack. A field provided high velocity filter is required for the unit to operate properly. Table 3 lists recommended filter sizes.
A filter must be in place any time the unit is operating.
WARNING
If a high-efficiency filter is being installed as part of this system to ensure better indoor air quality, the filter must be properly sized. High-efficiency filters have a higher
static pressure drop than standardefficiency glass/foam filters. If the pressure drop is too great, system capacity and performance may be reduced. The pressure drop may also cause the limit to trip more frequently during the winter and the indoor coil to freeze in the summer, resulting in an increase in the number of service calls. Before using any filter with this system, check the specifications provided by the filter manufacturer against the data given in the appropriate Technical Specification.
| Furnace Cabinet Width | Return Air Filter Size (in.) |
| A – 14-1/2” | 14 x 25 x 1 |
| B – 17-1/2” | 16 x 25 x 1 |
Duct System
Use industry approved standards (such as those published by Air Conditioning Contractors of America or American Society of Heating, Refrigerating and Air Conditioning
Engineers) to size and install the supply and return air duct system. This will result in a quiet and low static system that has uniform air distribution.
NOTE: Do not operate the furnace in the heating mode with an external static pressure that exceeds 0.8 inches w.c. Higher external static pressures may cause erratic limit operation.
Ensure that you have made a seal between the supply air plenum and the furnace and between the furnace and the return air plenum.
Return Air Plenum
NOTE: Return air must not be drawn from a room where this furnace, or any other gas fueled appliance (i.e., water heater), or carbon monoxide producing device (i.e., wood
fireplace) is installed.
When return air is drawn from a room, a negative pressure is created in the room. If a gas appliance is operating in a room with negative pressure, the flue products can be
pulled back down the vent pipe and into the room. This reverse flow of the flue gas may result in incomplete combustion and the formation of carbon monoxide gas.
This toxic gas might then be distributed throughout the house by the furnace duct system
Venting
A 4-inch diameter flue transition is factory-installed on all models. Modifying or removing the flue transition will cause the unit to operate unsafely and will void the unit
certification. The vent connector does not require insulation. The NF80DT series units are classified as fan-assisted Category I furnaces when vertically vented according to the latest edition of National Fuel Gas Code (NFPA 54 / ANSI Z223.1). A fan-assisted Category I furnace is an appliance equipped with an integral mechanical means to either draw or force combustion products through the combustion chamber and/or heat exchanger.
NOTE: Use these instructions as a guide. They do not supersede local codes. This furnace must be vented according to all local codes, these installation instructions, and the provided venting tables in these instructions. The venting tables in this manual were extracted from the National Fuel Gas Code (NFPA 54 / ANSI Z223.1) and are provided as a guide for proper vent installation. Proper application, termination, construction and location of vents must conform to local codes having jurisdiction. In the absence of local codes, the NFGC serves as the defining document. Refer to the tables and the venting information contained in these instructions to properly size and install the venting system.
IMPORTANT
Once the venting system is installed, attach the “Disconnected Vent” warning sticker to a visible area of the plenum near the vent pipe. The warning sticker is provided in the bag assembly. Order kit 66W04 for additional stickers.
WARNING
Asphyxiation hazard. The exhaust vent for this furnace must be securely connected to the furnace flue transition at all times.
Use self-drilling sheet metal screws or a mechanical fastener to firmly secure the vent pipe to the round collar of the flue transition. If self-drilling screws are used to attach
the vent pipe, it is recommended that three be used. Drive one self-drilling screw through the front and one through each side of the vent pipe and collar. See Figure 16.
Install the first vent connector elbow at a minimum of six inches (152 mm) from the furnace vent outlet. Masonry chimneys used to vent Category I central furnaces must
be either tile-lined or lined with a listed metal lining system or dedicated gas vent. Unlined masonry chimneys are prohibited. See Figure 17 and Figure 18 for common venting.
Venting Using a Masonry Chimney
The following additional requirements apply when a lined masonry chimney is used to vent this furnace.
A chimney with one or more sides exposed to the outside of the structure is considered to be an exterior chimney. An exterior masonry chimney that is not tile-lined must be
lined with B1 vent or a listed insulated flexible metal vent.
If the existing chimney will not accommodate a listed meta liner, either the chimney must be rebuilt to accommodate one of these liners or an alternate approved venting
method must be found.
Insulation for the flexible vent pipe must be an encapsulated fiberglass sleeve recommended by the flexible vent pipe manufacturer. See Figure 17.
DO NOT insulate the space between the liner and the chimney wall with puffed mica or any other loose granular insulating material.
A fan assisted furnace may be commonly vented into an existing lined masonry chimney if the following conditions are met:
- The chimney is currently serving at least one drafthood equipped appliance.
- The vent connectors and chimney are sized according to the provided venting tables.
IMPORTANT
SINGLE appliance venting of a fan assisted furnace into a tile lined masonry chimney (interior or outside wall) is prohibited. The chimney must first be lined with either
type B1 vent or an insulated single wall flexible vent lining system which has been sized according to the provided venting tables and the vent pipe manufacturer’s instructions.
If type B1 double wall vent is used inside a chimney, no other appliance can be vented into the chimney. The outer wall of type B1 vent pipe must not be exposed to flue products. A type B1 vent or masonry chimney liner shall terminate above the roof surface with a listed cap or a listed roof assembly according to the terms of their respective
listings and the vent manufacturer’s instructions. When inspection reveals that an existing chimney is not safe for the intended purpose, it shall be rebuilt to conform to nationally recognized standards, lined or relined with suitable materials, or replaced with a gas vent or chimney suitable for venting. The chimney passageway must be checked periodically to ensure that it is clear and free of obstructions.
Do not install a manual damper, barometric draft regulator, or flue restrictor between the furnace and the chimney. Never connect a Category I appliance to a chimney that is
servicing a solid-fuel appliance. If a fireplace chimney flue is used to vent this appliance, the fireplace opening must be permanently sealed.
A type B1 or listed chimney lining system that passes through an unused masonry chimney flue is not considered to be exposed to the outdoors.
General Venting Requirements
Vent all furnaces according to these instructions:
- Vent diameter recommendations and maximum allowable piping runs are found in the provided venting tables.
- In no case should the vent or vent connector diameter be less than the diameter specified in the provided venting tables.
- The minimum vent capacity determined by the sizing tables must be less than the low fire input rating and the maximum vent capacity must be greater than the high fire input rating.
- Single appliance vents – If the vertical vent or tile lined chimney has a larger diameter or flow area than the vent connector, use the vertical vent diameter to determine the minimum vent capacity and the vent connector diameter to determine the maximum vent capacity. The flow area of the vertical vent, however, shall not exceed 7 times the flow area of the listed appliance categorized vent area, drafthood outlet area or flue collar area unless designed according to approved engineering methods.
- Multiple appliance vents – The flow area of the largest section of vertical vent or chimney shall not exceed 7 times the smallest listed appliance categorized vent area, drafthood outlet area or flue collar area unless designed according to approved engineering methods.
- The entire length of single wall metal vent connector shall be readily accessible for inspection, cleaning, and replacement.
- Single appliance venting configurations with zero lateral lengths (Table 5) are assumed to have no elbows in the vent system. For all other vent configurations, the vent system is assumed to have two 90° elbows. For each additional 90° elbow or equivalent (for example two 45° elbows equal one 90° elbow) beyond two, the maximum capacity listed in the venting table should be reduced by 10% (0.90 x maximum listed capacity).
- The common venting tables (Table 6 and Table 7) were generated using a maximum horizontal vent connector length of 1-1/2 feet (.46 m) for each inch (25 mm) of
connector diameter as follows:Connector Diameter in. (mm) Maximum Horizontal Connector Length ft. (m) 3 (76) 4-1/2 (1.37) 4 (102) 6 (1.83) 5 (127) 7-1/2 (2.29) 6 (152) 9 (2.74) 7 (178) 10-1/2 (3.20) - If the common vertical vent is offset, the maximum common vent capacity listed in the common venting tables should be reduced by 20%, the equivalent of two 90° elbows (0.80 x maximum common vent capacity). The horizontal length of the offset shall not exceed 1-1/2 feet (.46 m) for each inch (25 mm) of common vent diameter.
- The vent pipe should be as short as possible with the least number of elbows and angles required to complete the job. Route the vent connector to the vent using the shortest possible route.
- A vent connector shall be supported without any dips or sags and shall slope a minimum of 1/4 inch (6.4 mm) per linear foot (305 mm) of connector, back toward the appliance.
- Vent connectors shall be firmly attached to the furnace flue collar by self drilling screws or other approved means,except vent connectors of listed type B vent material which shall be assembled according to the manufacturer’s instructions. Joints between sections of single wall connector piping shall be fastened by screws or other approved means.
- When the vent connector used for Category I appliances must be located in or pass through a crawl space, attic or other areas which may be cold, that portion of the vent connector shall be constructed of listed double wall type B vent material or material having equivalent insulation qualities.
- All venting pipe passing through floors, walls, and ceilings must be installed with the listed clearance to combustible materials and be fire stopped according to local codes. In absence of local codes, refer to NFGC (2223.1 ).
- No portion of the venting system can extend into, or pass through any circulation air duct or plenum.
- Vent connectors serving Category I appliances shall not be connected to any portion of mechanical draft systems operating under positive pressure such as Category III or IV venting systems.
- If vent connectors are combined prior to entering the common vent, the maximum common vent capacity listed in the common venting tables must be reduced by 10%, the equivalent of one 90° elbow (0.90 x maximum common vent capacity).
- The common vent diameter must always be at least as large as the largest vent connector diameter.
- In no case, shall the vent connector be sized more than two consecutive table size diameters over the size of the draft hood outlet or flue collar outlet.
- Do not install a manual damper, barometric draft regulator or flue restrictor between the furnace and the chimney.
- When connecting this appliance to an existing dedicated or common venting system, you must inspect the venting system’s general condition and look for signs of corrosion. The existing vent pipe size must conform to these instructions and the provided venting tables. If the existing venting system does not meet these requirements, it must be resized.
Capacity of Type B Double Wall Vents with Type B Double Wall Connectors Serving a Single Category I Appliance
| Height H (feet) | Lateral L (feet) | Vent and Connector Diameter – D (inches) | |||||||
| 3 inch | 4 inch | 5 inch | 6 inch | ||||||
| Appliance Input Rating in Thousands of Btu per Hour | |||||||||
| MIN | MAX | MIN | MAX | MIN | MAX | MIN | MAX | ||
|
6 | 0 | 0 | 78 | 0 | 152 | 0 | 251 | 0 | 375 |
| 2 | 13 | 51 | 18 | 97 | 27 | 157 | 32 | 232 | |
| 4 | 21 | 49 | 30 | 94 | 39 | 153 | 50 | 227 | |
| 6 | 25 | 46 | 36 | 91 | 47 | 149 | 59 | 223 | |
|
8 | 0 | 0 | 84 | 0 | 165 | 0 | 276 | 0 | 415 |
| 2 | 12 | 57 | 16 | 109 | 25 | 178 | 28 | 263 | |
| 5 | 23 | 53 | 32 | 103 | 42 | 171 | 53 | 255 | |
| 8 | 28 | 49 | 39 | 98 | 51 | 164 | 64 | 247 | |
|
10 | 0 | 0 | 88 | 0 | 175 | 0 | 295 | 0 | 447 |
| 2 | 12 | 61 | 17 | 118 | 23 | 194 | 26 | 289 | |
| 5 | 23 | 57 | 32 | 113 | 41 | 187 | 52 | 280 | |
| 10 | 30 | 51 | 41 | 104 | 54 | 176 | 67 | 267 | |
|
15 | 0 | 0 | 94 | 0 | 191 | 0 | 327 | 0 | 502 |
| 2 | 11 | 69 | 15 | 136 | 20 | 226 | 22 | 339 | |
| 5 | 22 | 65 | 30 | 130 | 39 | 219 | 49 | 330 | |
| 10 | 29 | 59 | 40 | 121 | 51 | 206 | 64 | 315 | |
| 15 | 35 | 53 | 48 | 112 | 61 | 195 | 76 | 301 | |
|
20 | 0 | 0 | 97 | 0 | 202 | 0 | 349 | 0 | 540 |
| 2 | 10 | 75 | 14 | 149 | 18 | 250 | 20 | 377 | |
| 5 | 21 | 71 | 29 | 143 | 38 | 242 | 47 | 367 | |
| 10 | 28 | 64 | 38 | 133 | 50 | 229 | 62 | 351 | |
| 15 | 34 | 58 | 46 | 124 | 59 | 217 | 73 | 337 | |
| 20 | 48 | 52 | 55 | 116 | 69 | 206 | 84 | 322 | |
|
30 | 0 | 0 | 100 | 0 | 213 | 0 | 374 | 0 | 587 |
| 2 | 9 | 81 | 13 | 166 | 14 | 283 | 18 | 432 | |
| 5 | 21 | 77 | 28 | 160 | 36 | 275 | 45 | 421 | |
| 10 | 27 | 70 | 37 | 150 | 48 | 262 | 59 | 405 | |
| 15 | 33 | 64 | 44 | 141 | 57 | 249 | 70 | 389 | |
| 20 | 56 | 58 | 53 | 132 | 66 | 237 | 80 | 374 | |
| 30 | NA | NA | 73 | 113 | 88 | 214 | 104 | 346 | |
| NOTE: Single appliance venting configurations with zero lateral lengths are assumed to have no elbows in the vent system. For all other vent configurations, the vent system is assumed to have two 90 ° elbows. For each additional 90° elbow or equivalent (for example two 45° elbows equal one 90° elbow) beyond two, the maximum capacity listed in the venting table should be reduced by 10 percent (0.90 x maximum listed capacity). | |||||||||
Vent Connector Capacity
ype B Double Wall Vents with Type B Double Wall Connectors Serving Two or More Category I Appliances
| Vent Height H (feet) | Connector Rise R (feet) | Vent and Connector Diameter – D (inches) | |||||||
| 3 inch | 4 inch | 5 inch | 6 inch | ||||||
| Appliance Input Rating in Thousands of Btu per Hour | |||||||||
| MIN | MAX | MIN | MAX | MIN | MAX | MIN | MAX | ||
| 6 | 1 | 22 | 37 | 35 | 66 | 46 | 106 | 58 | 164 |
| 2 | 23 | 41 | 37 | 75 | 48 | 121 | 60 | 183 | |
| 3 | 24 | 44 | 38 | 81 | 49 | 132 | 62 | 199 | |
| 8 | 1 | 22 | 40 | 35 | 72 | 49 | 114 | 64 | 176 |
| 2 | 23 | 44 | 36 | 80 | 51 | 128 | 66 | 195 | |
| 3 | 24 | 47 | 37 | 67 | 53 | 139 | 67 | 210 | |
| 10 | 1 | 22 | 43 | 34 | 78 | 49 | 123 | 65 | 189 |
| 2 | 23 | 47 | 36 | 86 | 51 | 136 | 67 | 206 | |
| 3 | 24 | 50 | 37 | 92 | 52 | 146 | 69 | 220 | |
| 15 | 1 | 21 | 50 | 33 | 89 | 47 | 142 | 64 | 220 |
| 2 | 22 | 53 | 35 | 96 | 49 | 153 | 66 | 235 | |
| 3 | 24 | 55 | 36 | 102 | 51 | 163 | 68 | 248 | |
| 20 | 1 | 21 | 54 | 33 | 99 | 46 | 157 | 62 | 246 |
| 2 | 22 | 57 | 34 | 105 | 48 | 167 | 64 | 259 | |
| 3 | 23 | 60 | 35 | 110 | 50 | 176 | 66 | 271 | |
| 30 | 1 | 20 | 62 | 31 | 113 | 45 | 181 | 60 | 288 |
| 2 | 21 | 64 | 33 | 118 | 47 | 190 | 62 | 299 | |
| 3 | 22 | 66 | 34 | 123 | 48 | 198 | 64 | 309 | |
Table 6.
Common Vent Capacity
Type B Double Wall Vents with Type B Double Wall Connectors Serving Two or More Category I Appliances
| Vent Height H (feet) | Common Vent Diameter – D (inches) | |||||||
| 4 inch | 5 inch | 6 inch | 7 inch | |||||
| Appliance Input Rating in Thousands of Btu per Hour | ||||||||
| FAN + FAN | FAN + NAT | FAN + FAN | FAN + NAT | FAN + FAN | FAN + NAT | FAN + FAN | FAN + NAT | |
| 6 | 92 | 81 | 140 | 116 | 204 | 161 | 309 | 248 |
| 8 | 101 | 90 | 155 | 129 | 224 | 178 | 339 | 275 |
| 10 | 110 | 97 | 169 | 141 | 243 | 194 | 367 | 299 |
| 15 | 125 | 112 | 195 | 164 | 283 | 228 | 427 | 352 |
| 20 | 136 | 123 | 215 | 183 | 314 | 255 | 475 | 394 |
| 30 | 152 | 138 | 244 | 210 | 361 | 297 | 547 | 459 |
Table 7.
Removal of the Furnace from Common Vent In the event that an existing furnace is removed from a venting system commonly run with separate gas appliances, the venting system is likely to be too large to properly vent the remaining attached appliances. Conduct the following test while each appliance is operating and the other appliances (which are not operating) remain connected to the common venting system. If the venting system has been installed improperly, you must correct the system as indicated in the general venting requirements section.
WARNING
CARBON MONOXIDE POISONING HAZARD
Failure to follow the steps outlined below for each appliance connected to the venting system being placed into operation could result in carbon monoxide poisoning or death. The following steps shall be followed for each appliance connected to the venting system being placed into operation, while all other appliances connected to the
venting system are not in operation:
- Seal any unused openings in the common venting system.
- Inspect the venting system for proper size and horizontal pitch. Determine that there is no blockage, restriction, leakage, corrosion, or other deficiencies which could cause an unsafe condition.
- Close all building doors and windows and all doors between the space in which the appliances remaining connected to the common venting system are located and other spaces of the building. Turn on clothes dryers and any appliances not connected to the common venting system. Turn on any exhaust fans, such as range hoods and bathroom exhausts, so they will operate at maximum speed. Do not operate a summer exhaust fan. Close fireplace dampers.
- Follow the lighting instructions. Turn on the appliance that is being inspected. Adjust the thermostat so that the appliance operates continuously.
- After the burners have operated for 5 minutes, test for leaks of flue gases at the draft hood relief opening. Use the flame of a match or candle.
- After determining that each appliance connected to the common venting system is venting properly, (step 3) return all doors, windows, exhaust fans, fireplace dampers, and any other gas burning appliances to their previous mode of operation.
- If a venting problem is found during any of the preceding tests, the common venting system must be modified to correct the problem. Resize the common venting system to the minimum vent pipe size determined by using the appropriate tables in Appendix G. (These are in the current standards of the National Fuel Gas Code ANSI 2223.1.
Gas Piping
CAUTION
If a flexible gas connector is required or allowed by the authority that has jurisdiction, black iron pipe shall be installed at the gas valve and extend outside the furnace cabinet. The flexible connector can then be added between the black iron pipe and the gas supply line.
WARNING
Do not over torque (800 in-lbs) or under torque (350 in-lbs) when attaching the gas piping to the gas valve.
Gas Pipe Capacity – FT³/HR (kL/HR)
| Nominal Iron Pipe Size – inches (mm) | Internal Diameter – inches (mm) | Length of Pipe – feet (m) | |||||||||
| 10 (3.048) | 20 (6.096) | 30 (9.144) | 40 (12.192) | 50 (15.240) | 60 (18.288) | 70 (21.336) | 80 (24.384) | 90 (27.432) | 100 (30.480) | ||
| 1/2 | .622 | 172 | 118 | 95 | 81 | 72 | 65 | 60 | 56 | 52 | 50 |
| (12.7) | (17.799) | (4.87) | (3.34) | (2.69) | (2.29) | (2.03) | (1.84) | (1.69) | (1.58) | (1.47) | (1.42) |
| 3/4 | .824 | 360 | 247 | 199 | 170 | 151 | 137 | 126 | 117 | 110 | 104 |
| (19.05) | (20.930) | (10.19) | (7.00) | (5.63) | (4.81) | (4.28) | (3.87) | (3.56) | (3.31) | (3.11) | (2.94) |
| 1 | 1.049 | 678 | 466 | 374 | 320 | 284 | 257 | 237 | 220 | 207 | 195 |
| (25.4) | (26.645) | (19.19) | (13.19) | (10.59) | (9.06) | (8.04) | (7.27) | (6.71) | (6.23) | (5.86) | (5.52) |
| 1-1/4 | 1.380 | 1350 | 957 | 768 | 657 | 583 | 528 | 488 | 452 | 424 | 400 |
| (31.75) | (35.052) | (38.22) | (27.09) | (22.25) | (18.60) | (16.50) | (16.50) | (13.76) | (12.79) | (12.00) | (11.33) |
| 1-1/2 | 1.610 | 2090 | 1430 | 1150 | 985 | 873 | 791 | 728 | 677 | 635 | 600 |
| (38.1) | (40.894) | (59.18) | (40.49) | (32.56) | (27.89) | (24.72) | (22.39) | (20.61) | (19.17) | (17.98) | (17.00) |
| 2 | 2.067 | 4020 | 2760 | 2200 | 1900 | 1680 | 1520 | 1400 | 1300 | 1220 | 1160 |
| (50.8) | (52.502) | (113.83) | (78.15) | (62.30) | (53.80) | (47.57) | (43.04) | (39.64) | (36.81) | (34.55) | (32.84) |
| 2-1/2 | 2.469 | 6400 | 4400 | 3530 | 3020 | 2680 | 2480 | 2230 | 2080 | 1950 | 1840 |
| (63.5) | (67.713) | (181.22) | (124.59) | (99.95) | (85.51) | (75.88) | (70.22) | (63.14) | (58.89) | (55.22) | (52.10) |
| NOTE: Capacity given in cubic feet of gas per hour (kilo liters of gas per hour) and based on 0.60 specific gravity gas. | |||||||||||
Table 8.
Gas Supply
- This unit is shipped standard for left or right side installation of gas piping (or top entry in horizontal applications). Connect the gas supply to the piping assembly.
- When connecting the gas supply piping, consider factors such as length of run, number of fittings, and furnace rating to avoid excessive pressure drop. Table
8 lists recommended pipe sizes for typical applications. - The gas piping must not run in or through air ducts, clothes chutes, gas vents or chimneys, dumb waiters, or elevator shafts.
- The piping should be sloped 1/4 inch (6.4 mm) per 15 feet (4.57 m) upward toward the meter from the furnace. The piping must be supported at proper intervals [every 8 to 10 feet (2.44 to 3.01 m)] with suitable hangers or straps. Install a drip leg in vertical pipe runs to the unit.
- A 1/8” N.P.T. plugged tap or pressure post is located on the gas valve to facilitate test gauge connection. See Figure 20.
- In some localities, codes may require the installation of a manual main shut off valve and union (furnished by the installer) external to the unit. The union must be of the ground joint type.
IMPORTANT
Compounds used on threaded joints of gas piping must be resistant to the actions of liquified petroleum gases.
NOTE: If emergency shutoff is necessary, shut off the main manual gas valve and disconnect main power to the furnace. The installer should properly label these devices. Leak Check
After gas piping is completed, carefully check all fieldinstalled piping connections for gas leaks. Use a commercially available leak detecting solution specifically manufactured for leak detection. Never use an open flame to test for gas leaks. The furnace must be isolated from the gas supply system by closing the individual manual shut-off valve during any gas supply system at pressures greater than or equal to 1/2 psig (3.48 kPa, 14 inches w.c.). This furnace and its components are designed, manufactured and independently certified to comply with all applicable ANSI/CSA standards. A leak check of the furnace and its components is not required.
IMPORTANT
When testing pressure of gas lines, gas valve must be disconnected and isolated. See Figure 20. Gas valves can be damaged if subjected to pressures greater than 1/2 psig (3.48 kPa, 14 inches w.c.).
WARNING
FIRE OR EXPLOSION HAZARD
Failure to follow the safety warnings exactly could result in serious injury, death, or property damage. Never use an open flame to test for gas leaks. Check all connections using a commercially available soap solution made specifically for leak detection. Some soaps used for leak detection are corrosive to certain metals. Carefully rinse piping thoroughly after leak test has been completed.
Electrical
ELECTROSTATIC DISCHARGE (ESD)
Precautions and Procedures
CAUTION
Electrostatic discharge can affect electronic components. Take precautions to neutralize electrostatic charge by touching your hand and tools to metal prior to handling the control.
WARNING
Electric Shock Hazard. Can cause injury or death. Unit must be properly grounded in accordance with national and local codes.
WARNING
Fire Hazard. Use of aluminum wire with this product may result in a fire, causing property damage, severe injury or death. Use copper wire only with this product.
CAUTION
Failure to use properly sized wiring and circuit breaker may result in property damage. Size wiring and circuit breaker(s) per Technical Specification and unit rating plate.
The unit is equipped with a field make-up box on the left hand side of the cabinet. The make-up box may be moved to the right side of the furnace to facilitate installation. If the make-up box is moved to the right hand side, clip the wire ties that bundle the wires together. Secure the excess wire to the existing harness to protect it from damage.
Refer to Figure 22 or Figure 23 for schematic wiring diagram and troubleshooting.
The power supply wiring must meet Class I restrictions.
Protected by either a fuse or circuit breaker, select circuit protection and wire size according to unit nameplate. 
NOTE: Unit nameplate states maximum current draw.
Maximum over current protection allowed is 15 AMP.
Holes are on both sides of the furnace cabinet to facilitate wiring. Install a separate (properly sized) disconnect switch near the furnace so that power can be turned off for servicing.
Before connecting the thermostat, check to make sure the wires will be long enough for servicing at a later date. Make sure that thermostat wire is long enough to facilitate future removal of blower for service.
Complete the wiring connections to the equipment. Use the provided unit wiring diagram shown in Figure 22 or Figure 23. Use 18 gauge wire or larger that is suitable for
Class II rating for thermostat connections.
Electrically ground the unit according to local codes or, in the absence of local codes, according to the current National Electric Code (ANSI/NFPA No. 70). A green ground wire is provided in the field make-up box.
NOTE: This furnace contains electronic components that are polarity sensitive. Make sure that the furnace is wired correctly and is properly grounded.
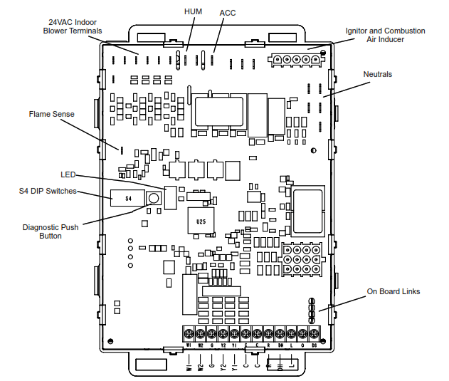
Accessory Terminals
One line voltage “EAC” 1/4” spade terminal is provided on the furnace integrated control. See Figure 24 or Figure 25 for integrated control configuration. This terminal is energized when the indoor blower is operating. Any accessory rated up to one amp can be connected to this terminal with the neutral leg of the circuit being connected to one of the provided neutral terminals. If an accessory rated at greater than one amp is connected to this terminal, it is necessary to use an external relay.
One line voltage “HUM” 1/4” spade terminal is provided on the furnace integrated control. See Figure 24 or Figure 25 for integrated control configuration. This terminal is
energized in the heating mode when the combustion air inducer is operating. Any humidifier rated up to one amp can be connected to this terminal with the neutral leg of
the circuit being connected to one of the provided neutral terminals. If a humidifier rated at greater than one amp is connected to this terminal, it is necessary to use an
external relay.
Generator Use – Voltage Requirements The following requirements must be kept in mind when specifying a generator for use with this equipment:
- The furnace requires 120 volts ± 10% (Range: 108 volts to 132 volts).
- The furnace operates at 60 Hz ± 5% (Range: 57 Hz to 63 Hz).
- The furnace integrated control requires both polarity and proper ground. Both polarity and proper grounding should be checked before attempting to operate the furnace on either permanent or temporary power.
- Generator should have a wave form distortion of less than 5% RHO.
Thermostat
Install the room thermostat according to the instructions provided with the thermostat. See Table 9 for thermostat designations. If the furnace is being matched with a heat pump, refer to the FM21 installation instruction or appropriate dual fuel thermostat instructions. Indoor Blower Speeds
- When the thermostat is set to “FAN ON,” the indoor blower will run continuously on the low speed when there is no cooling or heating demand. See Table 18 for allowable circulation speeds.
- When the unit is operating in the high-fire or lowfire heating mode, the indoor blower will run on the corresponding heating speed.
- When the unit is operating in the low cool or the high cool cooling mode, the indoor blower will run on the corresponding cooling speed.
![]() | ![]() |
![]() | ![]() |
![]() | ![]() |

3/16” QUICK CONNECT TERMINALS
FLAME SENSE SIGNAL
HI Cool 24VAC
HI HEAT 24VAC
LO COOL 24VAC
LO HEAT 24VAC
PARK
PARK
COMMON 24VAC
1/4” QUICK CONNECT TERMINALS
NEUTRALS = 120 VAC NEUTRAL
HUM = UNPOWERED NORMALLY OPEN (DRY) CONTACTS
LI = 120 VAC INPUT TO CONTROL
ACC = 120 VAC OUTPUT TO OPTIONAL ACCESSORY
THERMOSTAT CONNECTIONS (TB1)
DS = DEHUMIDIFICATION SIGNAL
W2 = HEAT DEMAND FROM 2ND STAGE T/STAT
W1 = HEAT DEMAND FROM 1ST STAGE T/STAT
R = CLASS 2 VOLTAGE TO THERMOSTAT
G = MANUAL FAN FROM T’STAT
C = THERMOSTAT SIGNAL GROUND CONNECTED TO
TRANSFORMER GRD (TR) & CHASIS GROUND (GRD)
Y1 = THERMOSTAT 1ST STAGE COOL SIGNAL
Y2 = THERMOSTAT 2ND STAGE COOL SIGNAL
O = THERMOSTAT SIGNAL TO HEAT PUMP
REVERSING VA LVE
DH = NOT USED
L = NOT USED
Figure 24. Resideo/Honeywell Integrated Furnace Control 103132-xx
UTEC TWO-STAGE CONSTANT TORQUE INTEGRATED FURNACE CONTROL
3/16” QUICK CONNECT TERMINALS
HI COOL (24VAC)
LO COOL (24VAC)
HI HEAT (24VAC)
LO HEAT (24VAC)
PARK (two un-powered terminals for unused motor speed taps)
FLAME SENSE
¼” QUICK CONNECT TERMINALS
HUM (two un-powered, normally open/dry contacts)
ACC (one 120VAC output terminal for optional accessory)
L1 (three 120VAC line terminals)
Neutrals (five 120VAC neutral terminals)
THERMOSTAT CONNECTIONS
DS= Dehumidification signal
W2= Heat demand from 2nd stage Tstat
W1= Heat demand from 1st stage Tstat (white)
R= Class 2 voltage to thermostat
G= Manual fan from Tstat (green)
C= Tstat signal ground connected to transformer
Ground (TR) & Chassis ground (GRD)
Y1= Tstat 1 st stage cool signal
Y2= Tstat 2 nd stage cool signal
DH= NOT USED
H= NOT USED
L= NOT USED
Figure 25. UTEC Integrated Furnace Control 107047-xx
Integrated Control DIP Switch Settings
NF80DT units are equipped with a two-stage integrated control. This control manages ignition timing, heating mode fan off delays and indoor blower speeds based on selections made using the control dip switches and jumpers. The control includes an internal watchguard feature which automatically resets the ignition control when it has been locked out. After one hour of continuous thermostat demand for heat, the watchguard will break and remake thermostat demand to the furnace and automatically reset
the control to relight the furnace.
Heating Operation DIP Switch Settings
Switch 1 — Thermostat Selection — This unit may be used with either a single-stage or two-stage thermostat.
The thermostat selection is made using a DIP switch which must be properly positioned for the particular application.
The DIP switch is factory-positioned for use with a twostage thermostat. If a single-stage thermostat is to be used, the DIP switch must be repositioned.
- Select “OFF” for two-stage heating operation controlled by a two-stage heating thermostat (factory setting);
- Select “ON” for two-stage heating operation controlled by a single-stage heating thermostat. This setting provides a timed delay before second-stage heat is initiated.
Switch 2 — Second Stage Delay (Used with Single-Stage Thermostat Only) — This switch is used to determine the second stage on delay when a single-stage thermostat is
being used. The switch is factory-set in the OFF position, which provides a 7-minute delay before second-stage heat is initiated. If the switch is toggled to the ON position, it
will provide a 12-minute delay before second-stage heat is initiated. This switch is only activated when the thermostat selector jumper is positioned for SINGLE-stage thermostat use.
Indoor Blower Operation DIP Switch Settings
Switches 3 and 4 — Heating Mode Blower-Off Delay — The blower-on delay of 30 seconds is not adjustable. The blower-off delay (time that the blower operates after the
heating demand has been satisfied) can be adjusted by moving switches 3 and 4 on the integrated control. The unit is shipped from the factory with a blower-off delay of
90 seconds.
The blower off delay affects comfort and is adjustable to satisfy individual applications. Adjust the blower off delay to achieve a supply air temperature between 90° and 110°F at the exact moment that the blower is de-energized. Longer off delay settings provide lower supply air temperatures; shorter settings provide higher supply air temperatures. Table 10 provides the blower off timings that will result from different switch settings.
| Blower Off Delay Seconds | Switch 3 | Switch 4 |
| 60 | On | Off |
| 90 (factory) | Off | Off |
| 120 | Off | On |
| 180 | On | On |
Table 10. Blower Off Heating Mode Delay Switch Settings
Switch 5 — Cooling Mode Blower-Off Delay– The unit is shipped from the factory with the dip switch positioned OFF for a 45 second delay. Table 11 provides the cooling mode off delay settings.
| Blower Off Delay Seconds | Switch 5 |
| 45 (factory) | Off |
| 2 | On |
Table 11. Blower Off Cooling Mode Delay Switch Settings
Switches 6 and 7 — Continuous Fan Mode — Low Heat Speed is the only available setting for Continuous Fan Mode. See Table 12.
| Continuous Fan Mode | Switch 6 | Switch 7 |
| Low Heat Speed (factory) | Off | Off |
Table 12. Continuous Fan Mode Settings
Switch 8 – DIP Switch 8 is not powered and not used.
Switching from on/off will not change any output.
On-Board Links and Diagnostic Push Button
WARNING
Carefully review all configuration information provided.
Failure to properly set DIP switches, jumpers and onboard links can result in improper operation!
On-Board Link W914 Dehum
On-board link W914, is a clippable connection between terminals R and DS on the integrated control. W914 must be cut when the furnace is installed with a thermostat which features humidity control. If the link is not cut, terminal “DS” will remain energized not allowing the blower to reduce to low cool speed upon a call for dehumidification.
On-Board Link W951 Heat Pump (R to O)
On-board link W951 is a clippable connection between terminals R and O on the integrated control. W951 must be cut when the furnace is installed in applications which
include a heat pump unit and a thermostat which features dual fuel use. If the link is left intact, terminal “O” will remain energized eliminating the HEAT MODE in the heat pump.
On-Board Link W915 2 Stage Compr (Y1 to Y2)
On-board link W915 is a clippable connection between terminals Y1 and Y2 on the integrated control. W915 must be cut if two-stage cooling will be used. If the Y1 to Y2
link is not cut the outdoor unit will operate in second-stage cooling only.
Diagnostic Push Button
The diagnostic push button is located adjacent to the sevensegment diagnostic LED. This button is used to enable the Error Code Recall “E” mode and the Flame Signal “F” mode. Press the button and hold it to cycle through a menu of options. Every five seconds a new menu item will be displayed. When the button is released, the displayed item will be selected. Once all items in the menu have been displayed, the menu resumes from the beginning until the button is released.
Unit Start-Up
FOR YOUR SAFETY, READ BEFORE LIGHTING UNIT
WARNING
Do not use this furnace if any part has been underwater.
A flood-damaged furnace is extremely dangerous. Attempts to use the furnace can result in fire or explosion. Immediately call a qualified service technician to inspect the furnace and to replace all gas controls, control system parts, and electrical parts that have been wet or to replace the furnace, if deemed necessary.
WARNING
If overheating occurs or if gas supply fails to shut off, shut off the manual gas valve to the appliance before shutting off electrical supply.
CAUTION
Before attempting to perform any service or maintenance, turn the electrical power to unit OFF at disconnect switch.
BEFORE LIGHTING smell all around the appliance area for gas. Be sure to smell next to the floor because some gas is heavier than air and will settle on the floor.
The gas valve on this unit will be equipped with a gas control switch. Use only your hand to move the switch. Never use tools. If the switch will not turn or if the control
switch will not move by hand, do not try to repair it.
Placing the Furnace into Operation
These units are equipped with an automatic ignition system. Do not attempt to manually light burners on these furnaces. Each time the thermostat calls for heat, the
burners will automatically light. The ignitor does not get hot when there is no call for heat on units with an automatic ignition system.
WARNING
If you do not follow these instructions exactly, a fire or explosion may result causing property damage, personal injury or death.
Gas Valve Operation
See Figure 26
- STOP! Read the safety information at the beginning of this section.
- Set the thermostat to the lowest setting.
- Turn off all electrical power to the unit.
- This furnace is equipped with an ignition device which automatically lights the burners. Do not try to light the burners by hand.
- Remove the upper access panel.
- Move switch on gas valve to OFF. Do not force. See Figure 26.
- Wait five minutes to clear out any gas. If you then smell gas, STOP! Immediately call your gas supplier from a neighbor’s phone. Follow the gas supplier’s instructions.
- Move switch on gas valve to ON. Do not force. See Figure 26.
- Replace the upper access panel.
- Turn on all electrical power to to the unit.
- Set the thermostat to desired setting.
NOTE: When unit is initially started, steps 1 through 11 may need to be repeated to purge air from gas line. - If the appliance will not operate, follow the instructions “Turning Off Gas to Unit” and call your service technician or gas supplier.

Turning Off Gas to Unit
- Set the thermostat to the lowest setting.
- Turn OFF all electrical power to the unit if service is to be performed.
- Remove the upper access panel.
- Move switch on gas valve to OFF. Do not force.
- Replace the upper access panel.
Failure to Operate
If the unit fails to operate, check the following:
- Is the thermostat calling for heat?
- Are access panels securely in place?
- Is the main disconnect switch closed?
- Is there a blown fuse or tripped circuit breaker?
- Is the filter dirty or plugged? Dirty or plugged filters will cause the limit control to shut the unit off.
- Is gas turned on at the meter?
- Is the manual main shut-off valve open?
- Is the internal manual shut-off valve open?
- Is the unit ignition system in lock out? If the unit locks out again, call the service technician to inspect the unit for blockages.
- Is pressure switch closed? Obstructed flue will cause unit to shut off at pressure switch. Check flue and outlet for blockages.
- Are flame rollout switches tripped? If flame rollout switches are tripped, call the service technician for inspection.
Gas Pressure Adjustment
Gas Flow (Approximate)
| Gas Meter Clocking Chart | ||||
|
Capacity | Seconds for One Revolution | |||
| Natural | LP | |||
| 1 cu ft Dial | 2 cu ft Dial | 1 cu ft Dial | 2 cu ft Dial | |
| -070 | 55 | 110 | 136 | 272 |
| -090 | 41 | 82 | 102 | 204 |
| Natural – 1000 btu/cu ft | LP – 2500 btu/cu ft | |||
Furnace should operate at least 5 minutes before checking gas flow. Determine time in seconds for two revolutions of gas through the meter. (Two revolutions assures a more
accurate time.) Divide by two and compare to time in Table 13. If manifold pressure matches Table 15 and rate is incorrect, check gas orifices for proper size and restriction.
Remove temporary gas meter if installed.
NOTE: To obtain accurate reading, shut off all other gas appliances connected to meter.
Supply Pressure Measurement
An inlet post located on the gas valve provides access to the supply pressure. See Figure 26. Back out the 3/32” hex screw one turn, connect a piece of 5/16” tubing and
connect to a manometer to measure supply pressure. See
Table 15 for supply line pressure.
Manifold Pressure Measurement
A manifold pressure tap located on the gas valve provides access to the manifold pressure. See Figure 26. Back out the 3/32” hex screw one turn, connect a piece of 5/16”
tubing and connect to a manometer to measure manifold pressure.
NOTE: Pressure test adapter kit (10L34) is available from GEA to facilitate manifold pressure measurement.
- Connect test gauge to manifold pressure tap (Figure 26) gas valve.
- Ignite unit on low fire and let run for 5 minutes to allow for steady state conditions.
- After allowing unit to stabilize for 5 minutes, record manifold pressure and compare to value given in
Table 15. - If necessary, make adjustments. Figure 26 shows location of high fire and low fire adjustment screw.
- Repeat steps 2, 3 and 4 on high fire.
- Shut unit off and remove manometer as soon as an accurate reading has been obtained. Turn the supply and manifold 3/32” hex screw one revolution back into the gas valve.
- Start unit and check for gas leaks. Seal if any found.
Proper Combustion
Furnace should operate a minimum 15 minutes with correct manifold pressure and gas flow rate before checking combustion. Table 14 shows acceptable combustion for
all NF80DT models. The maximum carbon monoxide reading should not exceed 100 ppm.
| Capacity | CO2% for Nat | CO2% for LP |
| High Fire | 6.8 – 7.4 | 7.5 – 9.0 |
| Low Fire | 4.2 – 5.7 | 5.0 – 6.0 |
Table 14.
| Capacity | Gas | Manifold Pressure in. wg. 0 – 4,500 ft. | Manifold Pressure in. wg. 4,501 – 7,500 ft. | Manifold Pressure in. wg. 7,501 – 10,000 ft. 2 | Supply Line Pressure in. wg. | ||||
| Low Fire | High Fire | Low Fire | High Fire | Low Fire | High Fire | Min. | Max. | ||
| 070 | Natrual | 1.7 | 3.5 | 1.5 | 3.2 | 1.7 | 3.5 | 4.5 | 13.0 |
| LP/Propane 3 | 4.5 | 10.0 | 4.5 | 10.0 | 4.5 | 10.0 | 11.0 | 13.0 | |
| 090 | Natrual | 1.7 | 3.5 | 1.5 | 3.0 | 1.7 | 3.5 | 4.5 | 13.0 |
| LP/Propane 3 | 4.5 | 10.0 | 4.5 | 10.0 | 4.5 | 10.0 | 11.0 | 13.0 | |
| 1. This is the only permissible derate for these units. 2. Natural gas high altitude orifice kit required. 3. A natural to L.P. propane gas changeover kit is necessary to convert this unit. Refer to the changeover kit installation instruction for the conversion procedure. NOTE – Units may be installed at altitudes up to 4500 ft. above sea level without modifications. | |||||||||
Table 15. Manifold Pressure and Line Pressure at Various Altitudes
|
Capacity | High Altitude Pressure Switch Kit | High Altitude Natural Gas Oririce Kit | Natural to LP/Propane Kit | |||
| 0 – 4,500 ft. | 4,501 – 7,500 ft. | 7,501 – 10,000 ft. | 7,501 – 10,000 ft. | 0 – 7,500 ft. | 7,501 – 10,000 ft. | |
| All | No Change | 91W53 | 73W35 | 51W01 | 11K48 | 11K47 |
| NOTE: A natural to LP/Propane gas changeover kit is necessary to convert this unit. Refer to the changeover kit installation instruction for the conversion procedure. | ||||||
Table 16. Orifice Kits and Pressure Switch Kits at Various Altitudes
High Altitude
The manifold pressure may require adjustment and combustion air pressure switch may need replacing to ensure proper combustion at higher altitudes. Refer to
Table 15 for manifold pressure and Table 16 for pressure switch change and gas conversion kits.
IMPORTANT
For safety, shut unit off and remove manometer as soon as an accurate reading has been obtained. Take care to replace pressure tap plug.
Other Unit Adjustments
Primary and Secondary Limits
The primary limit is located on the heating compartment vestibule panel. The secondary limits (if equipped) are located in the blower compartment, attached to the back side of the blower. These auto reset limits are factory-set and require no adjustment.
Flame Rollout Switches
This manually reset switches are located on the baffle plate in the burner assembly.
Pressure Switch
The pressure switch is located in the heating compartment adjacent to the combustion air inducer. The switch checks for proper combustion air inducer operation before allowing ignition trial. The switch is factory-set and requires no adjustment.
Temperature Rise
After the furnace has been started, and supply and return air temperatures have been allowed to stabilize, check the temperature rise. If necessary, adjust the blower
speed to maintain the temperature rise within the range shown on the unit nameplate. See Table 17 for allowable heating speeds.Increase the blower speed to decrease
the temperature. Decrease the blower speed to increase the temperature rise. Failure to adjust the temperature rise may cause erratic limit operation.
Electrical
- Check all wiring for loose connections.
- Check for the correct voltage at the furnace (furnace operating). Correct voltage is 120VAC + 10%.
- Check amp-draw on the blower motor with inner blower panel in place.
Unit Nameplate__________Actual__________
Blower Speeds
Follow the steps below to change the blower speeds.
- Turn off electrical power to furnace.
- Remove blower access panel.
- Disconnect existing speed tap at integrated control speed terminal.
NOTE: Termination of any unused motor leads must be insulated. - Place unused blower speed tap on integrated control “PARK” terminal or insulate.
- Refer to blower speed selection chart on unit wiring diagram for desired heating or cooling speed. See
Blower performance data at the end of this manual and Table 17 for allowable heating speeds. - Connect selected speed tap at integrated control speed terminal.
- Resecure blower access panel.
- Turn on electrical power to furnace.
- Recheck temperature rise.
Heating Sequence of Operation
Electronic Ignition
The two-stage, variable speed integrated control used in NF80DT units has an added feature of an internal Watchguard control. The feature serves as an automatic reset device for ignition control lockout caused by ignition failure. After one hour of continuous thermostat demand for heat, the Watchguard will break and remake thermostat demand to the furnace and automatically reset the control to begin the ignition sequence.
NOTE: The ignition control thermostat selection DIP switch is factory-set in the “TWO-STAGE” position. Applications Using a Two-Stage Thermostat
A – Heating Sequence — Integrated Control Thermostat Selection DIP Switch 1 OFF in “Two-Stage” Position (Factory Setting)
- On a call for heat, thermostat first-stage contacts close sending a signal to the integrated control. The integrated control runs a self-diagnostic program and checks high temperature limit switches for normally closed contacts and pressure switches for normally open contacts. The combustion air inducer is energized at low speed.
- Once the control receives a signal that the low pressure switch has closed, the combustion air inducer begins a 15-second pre-purge in low speed.
NOTE: If the low fire pressure switch does not close the combustion air inducer will switch to high fire. After a 15 second pre-purge the high fire pressure switch will close and the unit will begin operation on high fire. After 10 to 20 seconds of high fire operation the unit will switch to low fire. - After the pre-purge is complete, a 20-second initial ignitor warm-up period begins. The combustion air inducer continues to operate at low speed.
- After the 20-second warm-up period has ended, the gas valve is energized on low fire (first stage) and ignition occurs. At the same time, the control module sends a signal to begin an indoor blower 30-second ON-delay. When the delay ends, the indoor blower motor is energized on the low fire heating speed, the HUM contacts close energizing the humidifier and 120V ACC terminal is energized. The furnace will continue this operation as long as the thermostat has a first-stage heating demand.
- If second-stage heat is required, the thermostat second- stage heat contacts close and send a signal to the integrated control. The integrated control initiates a 30-second second-stage recognition delay.
- At the end of the recognition delay, the integrated control energizes the combustion air inducer at high speed. The control also checks the high fire (secondstage) pressure switch to make sure it is closed. The high fire (second stage) gas valve is energized and the indoor blower motor is energized for operation at the high fire heating speed.
- When the demand for high fire (second stage) heat is satisfied, the combustion air inducer is switched to the low-fire heating speed and the high-fire (secondstage) gas valve is de-energized. The low-fire (firststage) gas valve continues operation. The indoor blower motor is switched to the low-fire heating speed.
- When the thermostat demand for low-fire (first stage) heat is satisfied, the gas valve is de-energized and the field-selected indoor blower off delay begins. The combustion air inducer begins a 5-second postpurge period.
- When the combustion air post-purge period is complete, the inducer and the HUM contacts are deenergized. The indoor blower is de-energized at the end of the off delay as well as the ACC terminals.
Applications Using A Single-Stage Thermostat
B – Heating Sequence — Integrated Control Thermostat Selection DIP Switch 1 ON in “Single-Stage” Position
NOTE: In these applications, two-stage heat will be initiated by the integrated control if heating demand has not been satisfied after the field adjustable period (7 or 12 minutes).
- On a call for heat, thermostat first-stage contacts close sending a signal to the integrated control. The integrated control runs a self-diagnostic program and checks high temperature limit switches for normally closed contacts and pressure switches for normally open contacts. The combustion air inducer is energized at low speed.
- Once the control receives a signal that the low pressure switch has closed, the combustion air inducer begins a 15-second pre-purge in low speed.
NOTE: If the low fire pressure switch does not close the combustion air inducer will switch to high fire. After a 15 second pre-purge the high fire pressure switch will close and the unit will begin operation on high fire. After 10 to 20 seconds of high fire operation the unit will switch to low fire. - After the pre-purge is complete, a 20-second initial ignitor warm-up period begins. The combustion air inducer continues to operate at low speed.
- After the 20-second warm-up period has ended, the gas valve is energized on low fire (first stage) and ignition occurs. At the same time, the control module sends a signal to begin an indoor blower 30-second ON-delay. When the delay ends, the indoor blower motor is energized on the low fire heating speed and the HUM contacts are energized. The integrated control also initiates a second-stage on delay (factoryset at 7 minutes; adjustable to 12 minutes).
- If the heating demand continues beyond the secondstage on delay, the integrated control energizes the combustion air inducer at high speed. The control also checks the high fire (second stage) pressure switch to make sure it is closed. The high fire (second stage) gas valve is energized and the indoor blower motor is energized for operation at the high fire heating speed.
- When the thermostat heating demand is satisfied, the combustion air inducer begins a 5-second low speed post-purge. The field-selected indoor blower off delay begins. The indoor blower operates at the low-fire heating speed.
- When the combustion air post-purge period is complete, the inducer and the HUM contacts are deenergized. The indoor blower is de-energized at the end of the off delay as well as the 120 ACC terminals
Service
WARNING
ELECTRICAL SHOCK, FIRE, OR EXPLOSION HAZARD.
Failure to follow safety warnings exactly could result in dangerous operation, serious injury, death or property damage.
Improper servicing could result in dangerous operation, serious injury, death, or property damage. Before servicing, disconnect all electrical power to furnace.
When servicing controls, label all wires prior to disconnecting. Take care to reconnect wires correctly. Verify proper operation after servicing.
WARNING
The blower access panel must be securely in place when the blower and burners are operating. Gas fumes, which could contain carbon monoxide, can be drawn into living space resulting in personal injury or death.
Annual Furnace Maintenance
At the beginning of each heating season, and to comply with the GEA Limited Warranty, your system should be checked as follows:
- Check wiring for loose connections, voltage at indoor unit and amperage of indoor motor.
- Check the condition of the belt and shaft bearings if applicable.
- Inspect all gas pipe and connections for leaks.
- Check the cleanliness of filters and change if necessary (monthly).
- Check the condition and cleanliness of burners and heat exchanger and clean if necessary.
- Check the cleanliness of blower assembly and clean the housing, blower wheel and blower motor if necessary.
- Inspect the combustion air inducer and clean if necessary.
- Evaluate the heat exchanger integrity by inspecting the heat exchanger per the AHRI heat exchanger inspection procedure. This procedure can be viewed at www.ahrinet.org.
- Ensure sufficient combustion air is available to the furnace. Fresh air grilles and louvers (on the unit and in the room where the furnace is installed) must be properly sized, open and unobstructed to provide combustion air.
- Inspect the furnace venting system to make sure it is in place, structurally sound, and without holes, corrosion, or blockage. Vent system must be free and clear of obstructions and must slope upward away from the furnace. Vent system should be installed per the National Fuel Gas Code.
- Inspect the furnace return air duct connection to ensure the duct is sealed to the furnace. Check for air leaks on supply and return ducts and seal where necessary.
- Check the condition of the furnace cabinet insulation and repair if necessary.
- Perform a complete combustion analysis during the furnace inspection to ensure proper combustion and operation. Consult Service Literature for proper combustion values.
- Verify operation of CO detectors and replace batteries as required.
Perform a general system test. Turn on the furnace to check operating functions such as the start-up and shutoff operation.
- Check the operation of the ignition system, inspect and clean flame sensor. Check microamps before and after. Check controls and safety devices (gas valve, flame sensor, temperature limits). Consult Service Manual for proper operating range. Thermal Limits should be checked by restricting airflow and not disconnecting the indoor blower. For additional details, please see Service and Application Note H049.
- Verify that system total static pressure and airflow settings are within specific operating parameters.
- Clock gas meter to ensure that the unit is operating at the specified firing rate. Check the supply pressure and the manifold pressure. On two-stage gas furnaces
check the manifold pressure on high fire and low fire. If manifold pressure adjustment is necessary, consult the Service Literature for unit specific information on adjusting gas pressure. Not all gas valves are adjustable. Verify correct temperature rise.
Cleaning the Burners
NOTE: Use papers or protective covering in front of the furnace during cleaning.
- Turn off both electrical and gas power supplies to furnace.
- Label the wires from gas valve, rollout switches, primary limit switch and make-up box then disconnect them.
- Disconnect gas supply piping. Remove the four screws securing the burner manifold assembly to the vestibule panel and remove the assembly from the unit.
- Remove 4 screws securing burner box and remove burner box.
- To clean burners, run a vacuum cleaner with a soft brush attachment over the face of burners. Visually inspect inside the burners and crossovers for any blockage caused by foreign matter. Remove any blockage. Figure 27 shows burner detail.
- Reinstall burner box, manifold assembly and burner box cover.
- Reconnect all wires.
- Reconnect gas supply piping.
- Turn on power and gas supply to unit.
- Set thermostat and check for proper operation.
- Check all piping connections, factory and field, for gas leaks. Use a leak detecting solution or other preferred means.
CAUTION
Some soaps used for leak detection are corrosive to certain metals. Carefully rinse piping thoroughly after leak test has been completed. Do not use matches, candles, flame or other sources of ignition to check for gas leaks. - If a leak is detected, shut gas and electricity off and repair leak.
- Repeat steps 12 and 13 until no leaks are detected.
- Replace access panel.

Repair Parts List
The following repair parts are available through independent GEA dealers. When ordering parts, include the complete furnace model number listed on the CSA
International nameplate. All service must be performed by a licensed professional HVAC installer (or equivalent), service agency, or gas supplier.
Cabinet Parts
- Main access panel
- Blower panel
- Top cap
Control Panel Parts - Transformer
- Integrated control
- Door interlock switch
- Circuit breaker
Blower Parts - Blower wheel
- Blower housing
- Motor
- Motor mounting frame
- Motor capacitor
- Blower housing cutoff plate
Heating Parts
- Flame sensor
- Heat exchanger assembly
- Gas manifold
- Combustion air inducer
- Gas valve
- Main burner cluster
- Main burner orifices
- Pressure switch
- Ignitor
- Primary limit control
- Flame rollout switch (s)
- Secondary limit
Blower Performance
NF80D070T3A Performance (Less Filter)
| External Static Pressure in. w.c. | Air Volume / Watts at Various Blower Speeds | |||||||||
| High (Black) | Medium – High (Brown) | Medium (Blue) | Medium – Low (Yellow) | Low (Red) | ||||||
| cfm | watts | cfm | watts | cfm | watts | cfm | watts | cfm | watts | |
| 0.00 | 1475 | 346 | 1345 | 269 | 1190 | 192 | 970 | 109 | 785 | 71 |
| 0.10 | 1440 | 355 | 1325 | 276 | 1165 | 198 | 935 | 114 | 775 | 74 |
| 0.20 | 1410 | 365 | 1280 | 287 | 1135 | 207 | 905 | 120 | 740 | 79 |
| 0.30 | 1260 | 401 | 1250 | 296 | 1095 | 216 | 855 | 129 | 665 | 86 |
| 0.40 | 1355 | 380 | 1225 | 305 | 1060 | 223 | 815 | 134 | 615 | 92 |
| 0.50 | 1320 | 394 | 1200 | 315 | 1035 | 229 | 770 | 140 | 580 | 97 |
| 0.60 | 1290 | 401 | 1160 | 324 | 1005 | 237 | 745 | 149 | 465 | 105 |
| 0.70 | 1260 | 410 | 1130 | 333 | 970 | 245 | 700 | 155 | 445 | 108 |
| 0.80 | 1215 | 399 | 1095 | 341 | 935 | 254 | 660 | 158 | 400 | 113 |
NF80D090T4B Performance (Less Filter)
| External Static Pressure in. w.c. | Air Volume / Watts at Various Blower Speeds | |||||||||
| High (Black) | Medium – High (Brown) | Medium (Blue) | Medium – Low (Yellow) | Low (Red) | ||||||
| cfm | watts | cfm | watts | cfm | watts | cfm | watts | cfm | watts | |
| 0.10 | 1700 | 423 | 1495 | 293 | 1380 | 233 | 1295 | 202 | 1165 | 156 |
| 0.20 | 1665 | 436 | 1455 | 307 | 1330 | 248 | 1245 | 211 | 1110 | 166 |
| 0.30 | 1620 | 452 | 1415 | 319 | 1295 | 257 | 1195 | 221 | 1055 | 175 |
| 0.40 | 1585 | 464 | 1365 | 328 | 1225 | 269 | 1140 | 230 | 985 | 185 |
| 0.50 | 1560 | 471 | 1325 | 343 | 1185 | 277 | 1090 | 240 | 930 | 193 |
| 0.60 | 1455 | 475 | 1275 | 355 | 1120 | 290 | 1025 | 252 | 875 | 202 |
| 0.70 | 1405 | 482 | 1235 | 365 | 1075 | 295 | 990 | 259 | 840 | 209 |
| 0.80 | — | — | 1160 | 369 | 1025 | 308 | 925 | 268 | 780 | 217 |
| Models | Low Fire Heating Speeds | High Fire Heating Speeds | ||||||||
| Red | Yellow | Blue | Brown | Black | Red | Yellow | Blue | Brown | Black | |
| 070-12 | Factory Setting | Allowed | Not Allowed | Not Allowed | Not Allowed | Not Allowed | Factory Setting | Allowed | Allowed | Allowed |
| 090-16 | ||||||||||
Table 17. Allowable Heating Speeds
| Models | Red | Yellow | Blue | Brown | Black |
| 070-12 | Factory Setting | Allowed | Not Allowed | Not Allowed | Not Allowed |
| 090-16 |
Table 18. Allowable Circulation Speeds
Requirements for Commonwealth of Massachusetts
Modifications to NFPA-54, Chapter 10
Revise NFPA-54 section 10.8.3 to add the following requirements:
For all side wall, horizontally vented, gas-fueled equipment installed in every dwelling, building or structure used in whole or in part for residential purposes, including those owned or operated by the Commonwealth and where the side wall exhaust vent termination is less than seven (7) feet above the finished grade in the area of the venting,
including but not limited to decks and porches, the following requirements shall be satisfied:
- INSTALLATION OF CARBON MONOXIDE
DETECTORS. At the time of installation of the side wall, horizontally vented, gas-fueled equipment, the installing plumber or gas fitter shall observe that a hard-wired carbon monoxide detector with an alarm and battery backup is installed on the floor level where the gas equipment is to be installed. In addition, the installing plumber or gas fitter shall observe that a battery-operated or hard-wired carbon monoxide detector with an alarm is installed on each additional level of the dwelling, building or structure served by the side wall, horizontally vented, gas-fueled equipment. It shall be the responsibility of the property owner to secure the services of qualified licensed professionals for the installation of hard-wired carbon monoxide detectors.
a. In the event that the side wall, horizontally vented, gas-fueled equipment is installed in a crawl space or an attic, the hard-wired carbon monoxide detector with alarm and battery backup may be installed on the next adjacent floor level.
b. In the event that the requirements of this subdivision cannot be met at the time of completion of installation, the owner shall have a period of thirty (30) days to comply with the above requirements; provided, however, that during said thirty (30) day period, a battery-operated carbon monoxide detector with an alarm shall be installed. - APPROVED CARBON MONOXIDE DETECTORS.
Each carbon monoxide detector as required in accordance with the above provisions shall comply with NFPA 720 and be ANSI/UL 2034 listed and IAS certified. - SIGNAGE. A metal or plastic identification plate shall be permanently mounted to the exterior of the building at a minimum height of eight (8) feet above grade
directly in line with the exhaust vent terminal for the horizontally vented, gas-fueled heating appliance or equipment. The sign shall read, in print size no less than one-half (1/2) inch in size, “GAS VENT DIRECTLY BELOW. KEEP CLEAR OF ALL OBSTRUCTIONS.” - INSPECTION. The state or local gas inspector of the side wall, horizontally vented, gas-fueled equipment shall not approve the installation unless, upon inspection, the inspector observes carbon monoxide detectors and signage installed in accordance with the provisions of 248 CMR 5.08(2)(a) 1 through 4.
EXEMPTIONS: The following equipment is exempt from 24 CMR 5.08(2)(a) 1 through 4:
- The equipment listed in Chapter 10 entitled “Equipment Not Required to Be Vented” in the most current edition of NFPA 54 as adopted by the Board; and
- Product Approved side wall, horizontally vented, gasfueled equipment installed in a room or structure separate from the dwelling, building or structure used in whole or in part for residential purposes.
MANUFACTURER REQUIREMENTS – GAS EQUIPMENT VENTING SYSTEM PROVIDED.
When the manufacturer of Product Approved side wall, horizontally vented, gas-fueled equipment provides a venting system design or venting system components with the equipment, the instructions provided by the manufacturer for installation of the equipment and the venting system shall include:
- Detailed instructions for the installation of the venting system design or the venting system components: and
- A complete parts list for the venting system design or venting system.
MANUFACTURER REQUIREMENTS – GAS EQUIPMENT VENTING SYSTEM NOT PROVIDED.
When the manufacturer of Product Approved sidewall, horizontally vented, gas-fueled equipment does not provide the parts for venting the flue gases, but identifies “special venting systems,” the following requirements shall be satisfied by the manufacturer:
- The referenced “special venting system” instructions shall be included with the appliance or equipment installation instructions; and
- The “special venting systems” shall be Product Approved by the Board, and the instructions for that system shall include a parts list and detailed installation instructions.
A copy of all installation instructions for all Product Approved side wall, horizontally vented, gas-fueled equipment, all venting instructions, all parts lists for venting instructions, and/or all venting design instructions shall remain with the appliance or equipment at the completion of the installation.
GE Appliances A Haier Company
Appliance Park Louisville, KY 40225Issue 2220
508145-01G / 31-5000660





























