HARVIA WKLI18CPTM Wood Sauna Stove

Congratulations on your choice! The Harvia sauna stove works best and serves you longest when it is used and maintained according to these instructions. Read the instructions carefully before installing or using the stove. Keep the instructions for future reference.
Declaration of Performance
| Product type | Linear 18 Compact | Harvia Finland Oy PL 12 (Teollisuustie 1–7) 40951 Muurame Finland 22 |
| Intended use | Multi-firing sauna stoves fired by solid wood fuel | |
| The product conforms to the following standards Das Produkt erfüllt die folgenden Standards | Products are tested in accordance to the methods described in the standard EN 15821:2010 | |
| Notified body (identification number) | TÜV SÜD Industrie Service GmbH, D-80399 München, Germany (0036) |
| Declared performance | ||
| Essential characteristic | Performance | Harmonized technical specification |
| Safety distances to combustible materials (mm) | See Safety distances | EN 15821:2010 |
| Local certificates | BimSchV2 | |
| Fire safety (initiation, risk to adjacent elements) | Pass | |
| Emission of combustible products | Pass | |
| Surface temperature | Pass | |
| Release of dangerous substances | NPD | |
| Cleanability | Pass | |
| Flue gas temperature* | 280 °C | |
| Mechanical resistance | Pass | |
| Sauna room heating output | 14,3 kW | |
| Carbon monoxide emission at 13 % O2 | 1144 mg/m3 | |
| Carbon monoxide emission (%) at 13 % | 0,092 % | |
| Dust emission at 13 | 27 mg/m3 | |
| Total efficiency | 74,3 % | |
| Flue draught* | 12 Pa | |
| Refuelling loads | 2,9 kg | |
| Durability | Pass Erfüllt | |
| * Flue gas mass flow* | 16,7 g/s | |
- Stove door closed
Muurame, Finland, 10.10.2022

Harvia CTO
- [email protected]
- +358 207 464 051
INSTALLATION IMAGES
Stove parts

| A | Upper connection opening |
| B | Rear connection opening |
| C | Soot opening |
| D | Stove door |
| E | Ash box |
| F | Tool for opening and closing the stove door and ash box |
Combustion air channels

Ventilation of the Sauna Room

- Gravity exhaust ventilation
- Mechanical exhaust ventilation
Protecting the floor

- A: Concrete floor without tiles: The stove can be installed on a concrete floor without any specific safety measures, if the concrete is at least 60 mm thick. Make sure that there are no wires or water pipes in the concrete cast below the stove.
- B: Tile floor: The floor glues and plasters and waterproof materials used below the tiles are not resistant to the heat radiation of the stove. Protect the floor with the Harvia protective bedding or similar heat radiation protection.
- C: Floor made of inflammable material: Protect the floor with the Harvia protective bedding. If the floor in front of the stove door is made of inflammable material, install floor protection made of non-flammable material.
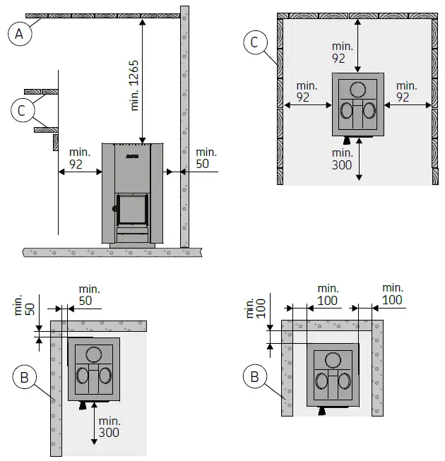
Safety distances
See WARNINGS AND NOTES

- A. Ceiling.
- The minimum safety distance between the stove and the ceiling is 1265 mm.
- B. Masonry walls.
- Leave 50 mm between the stove and walls, provided that the air can circulate in front and to one side of the stove. If the stove is installed in a recessed wall, leave 100 mm between the stove and walls for the air circulation.
- C. Walls and benches made of inflammable materials.
- The minimum safety distances to inflammable materials: 92 mm on either side, 92 mm behind the stove, 300 mm in the front.
Rear connection opening

Upper connection opening

Locations of upper and rear connection openings

| (mm) | A | B | C n./ca | D n./ca | E n./ca | F n./ca |
| Linear 18 Compact | 670 | 120 | 850 | 980 | 1410 | 1540 |
Connecting the stove to a masonry flue via the rear connection opening

Connecting the stove to a masonry flue via the upper connection opening

Connecting the stove to a Harvia steel chimney

Changing the Opening Direction of the Stove Door

Sauna Stones

| Place the larger stones at the bottom and the smaller ones on the top. |
| Make sure that air circulates between the stones. |
| Do not place stones against the frame around the stone space or on top of it. |
| Do not place stones between the grille and the stove body! |
WARNINGS AND NOTES
READ THE WARNINGS AND MANUAL CAREFULLY BEFORE USING THE PRODUCT!
INSTALLATION AND MAINTENANCE
The sauna stove is designed for the heating of a sauna room to bathing temperature. It is not to be used for any other purpose!
WARNING: It is absolutely necessary to install the heater according to values stated in the instructions of installation and use. Neglecting them causes a risk of fire.
WARNING: Before installing the stove make sure that all safety distance requirements are fulfilled. There shall be no electrical devices, wires or inflammable materials within the established safe-ty distances around the stove.
WARNING: Verify the safety distances required for the chimney and accessories from the product’s installation instructions!
- NOTE: Before actual use, a wood-burning stove must be heated in a particular way as explained below. The purpose of the first heating procedure is to burn off the protective paint on the wood-burning stove. As this results in a lot of smoke, do it outdoors! Once the stove has cooled down, remove any residual paint mechanically e.g. with a wire brush and a vacuum cleaner.
- All local regulations, including those referring to national and European standards need to be complied with when installing the appliance.
- The local fire authorities in charge of approving the installations can provide more detailed information about fire safety regulations.
- The device must be installed in such a way that the warning texts are easy to read after installation.
- The stove shall be installed on a floor with an adequate load-bearing capacity. If the existing floor does not meet this prerequisite, suitable measures (e.g. load distributing plate) shall be taken to achieve it.
- Light-coloured floor materials will become dirty from the ash, particles of stone and metal flakes that fall from the stove. Use floor coverings made of dark materials and dark joint grouts.
- Before installation, ensure unimpeded access for cleaning the stove and sweeping the chimney.
- The stove is not suitable for installation in a shared flue system.
- Arrange for adequate ventilation in the sauna room by ensuring that the intake or exhaust air openings cannot be blocked accidentally.
- If a guardrail is made around the heater, the safety distances specified in the instructions of installation and use manual must be observed.
- If suitable accessories are installed in the device, follow the accessory-specific operating and installation instructions!
- The adjustable feet could scratch the floor surface if the stove is moved on the floor.
- Do not push the flue connection pipe too far into the flue, as the flue may become blocked.
- Seal the flue connection pipe to the opening in the fireproof wall with e.g. fireproof mineral wool.
- Use protective gloves when piling the stones.
- Rinse any stone dust off the stones before placing them in the heater.
- Ceramic ‘stones’ and soft soapstone are not allowed.
- Do not drop stones in to the stone space.
- Do not stack the stones too tightly to allow air to circulate between them.
- Do not pile a stack of stones on the heater.
- No such objects or devices should be placed inside the heater stone space or near the heater that could change the amount or direction of the air flowing through the heater.
- Direct heat radiation from any uncovered stove body, owing to incorrect stone placement, can cause the materials to become dangerously hot even outside the safety distances.
- Pile the stones or replace the broken stones with new ones at least every year.
- The fireplace, the flue, and the connection pipes should be swept at regular intervals by a qualified professional.
- The flue and the connection pipes must be swept at regular intervals and especially when the stove has not been used for a long time.
- Incomplete combustion and neglected sweeping may result in the build-up of soot in that flue that may ignite.
- Please see the instructions in case of a chimney fire.
- Only use replacement parts recommended by the manufacturer.
- Modification of the wood-burning stove is prohibited without permission from the manufacturer.
INSTRUCTIONS FOR USE AND BATHING
WARNING: Prolonged, intense heating may cause risk of fire!
Do not cover!
- WARNING: Beware of hot heater. The stones and metal parts of the heater may burn the skin.
- Keep children away from the stove.
- Before heating the stove make sure that there are no unnecessary items in the sauna or inside the stove’s safety distances. Ext-ractor fans when operated in the same space as the stove, may cause problems.
- Ensure adequate ventilation during the first few times you heat the sauna.
- Note: The handles become hot while in use. Use the supplied tool for opening and closing the stove door and ash box
- Do not burn the following materials in the stove: Burning materials that have a high thermal value (such as chipboard, plastic, coal, brickets, pellets), painted or impregnated wood, waste (such as PVC plastic, textiles, leather, rubber, disposable diapers), garden waste (such as grass, leaves), liquid fuel.
- Place the firewood into the fire chamber, leaving enough room for the combustion air to flow between the firewood. Place the biggest pieces of wood on the bottom and the smaller ones on the top.
- Place the kindling on the top of the firewood. After kindling, close the door. If necessary, adjust the draft by opening the ash box.
- Observe the correct wood quantities and sizes in the instructions. If necessary, allow the wood-burning stove, the flue and the sauna room to cool down.
- The ash box of the wood-burning stove should always be emptied before heating.
- As the removed ash may include hot embers, do not keep the ash container close to combustible material.
- The wood-burning stove should not be used with the stove door open!
- Ensure sufficient ventilation and combustion air by making sure that openings for them cannot be blocked accidentally.
- The natural draft variation caused by the seasons and weather conditions can be compensated for by adjusting the position of the ash box.
- Excessive draft will cause the whole stove body to become red-hot, which will shorten its life span considerably.
- During bathing and when the sauna room is already heated, the ash box can be closed altogether or kept only slightly open to reduce combustion and wood consumption.
- Throw sauna water on the stones only. If you throw water on the hot steel surfaces, they may blister due to the large temperature variation.
- Staying in the hot sauna for long periods of time makes the body temperature rise, which may be dangerous.
- Do not throw or pour too much water on the heater at once, boiling water may splash on bathers.
- Never throw water on the stones when there are people near the heater.
- The maximum volume of the ladle is 0.2 litres.
- Do not throw any other water on the heater than that specified in the instructions manual of the heater.
- Only special aromas designed for sauna water may be used according to their instructions.
- Do not let young, handicapped or ill people bathe in the sauna on their own.
- Consult your doctor about any health-related limitations to bathing.
- Consult your child welfare clinic about taking little babies to the sauna.
- Be very careful when moving in the sauna, as the platform and floors may be slippery.
- Never go to a hot sauna if you have taken alcohol, strong medicines or narcotics.
- Never sleep in a hot sauna.
- Sea air and a humid climate may corrode the metal surfaces of the heater.
- Do not hang clothes to dry in the sauna, as this may cause a risk of fire.
- Particles disintegrating from the sauna stones may damage sensitive floor coverings and cause fire hazard.
Actions to be taken in case of a chimney fire:
- Close the ash box, stove door and damper plate (if installed).
- Contact local fire authority.
- Do not try to extinguish fire using water.
- After a sootfire, a chimney sweeper must check the stove and the flue before use
Actions to be taken in the event of a wood-burning stove malfunction, such as overheating:
- If a malfunction results in a fire, call the fire brigade.
- Close the ash box and the fire chamber door.
- Use water to cool any structures that are at risk of catching fire.
- Cool the exterior of the stove with water.
- Keep an eye on the stove until it has cooled down completely.
- After a malfunction, both the fireplace and the flue must be checked before heating the sauna again.
GENERAL
Choose the stove model carefully. A stove with too low output must be heated longer and more intensely, which will shorten the stove’s life span. Please note that non-insulated wall and ceiling surfaces (such as brick, glass, tile and concrete surfaces) increase the output requirement of the stove. For every square meter of such wall and ceiling surface you should calculate an additional 1.2 m3 volume. If the sauna walls are made of massive log, the volume must be multiplied by 1.5.
Examples
- A 10 m3 sauna room with a brick wall 2 m high and 2 m wide is equivalent to a sauna room of approximately 15 m3.
- A 10 m3 sauna room with a glass door is equivalent to a sauna room of approximately 12 m3.
- A 10 m3 sauna room with massive log walls is equivalent to a sauna room of approximately 15 m3.
The dealer or our factory representative can assist you in choosing the stove if needed. You can also visit our website www.harvia.com for further details.
Technical Data
| Linear 18 Compact | |
| Sauna room volume (m³) | 5-18 |
| Required temperature class of chimney | T600 |
| Diameter of connection opening (mm) | 115 |
| Stone quantity (max. kg) | 40 |
| Stone size (cm) | Ø10–15 |
| Weight (kg) | 60 |
| Width (mm) | 450 |
| Depth + fire chamber extension (mm) | 510 |
| Height + adjustable legs (mm) | 770 + 0–30 |
| Thickness of fire chamber cover (mm) | 10 |
| Maximum length of firewood (cm) | 39 |
| Diameter of firewood (cm) | 8–15 |
| Water container volume (l) | – |
INSTRUCTIONS FOR INSTALLATION
- See WARNINGS AND NOTES!
- See INSTALLATION IMAGES!
Before Installation
Before installing the stove make sure that all safety distance requirements are fulfilled. There shall be no electrical devices, wires or inflammable materials within the established safety distances around the stove.
- All local regulations, including those referring to national and European standards need to be complied with when installing the appliance.
- The stove is not suitable for installation in a shared flue system.
- Verify the safety distances required for the chimney and accessories from the product’s installation instructions!
- The local fire authorities in charge of approving the installations can provide more detailed information about fire safety regulations.
Ventilation of the Sauna Room
The ventilation of the sauna room should be arranged as follows:
Gravity exhaust ventilation
- The fresh air inlet must be placed close to the floor near the stove and
- its outlet should be as far as possible from the stove and near the ceiling. The stove itself circulates air effectively; the purpose of the outlet is mainly to remove moisture from the sauna after bathing.
Mechanical exhaust ventilation
- The fresh air inlet must be approx. 500 mm above the stove and
- the outlet should be close to the floor, for example, below the bench.
Protecting the Floor
- See Warnings and Notes!
Safety Distances
- See Warnings and Notes!
Adjustable Legs
The adjustable legs enable the stove to be installed firmly on an inclined floor. The adjustable range is 0–30 mm. Unscrew the adjustable feet to an extent that allows them to be adjusted using a wrench (17 mm) when the stove is in position. The adjustable feet could scratch the floor surface if the stove is moved on the floor.
Connecting the Stove to a Masonry Flue
Make an opening in the fireproof wall for the flue connection. Notice that the opening has to be at the correct height, if you intend to use, for instance, a protective bedding. The hole should be slightly larger than the flue connecting pipe. A suitable gap around the connection pipe is ca. 10 mm. It is advisable to round off the inner corners of the flue opening to ensure that the combustion gases can flow freely to the flue. Additional accessories are available to make the installation easier ( › Accessories).
Connecting the stove to a masonry flue via the rear connection opening
- Open the cover hatches of the rear connection opening
- Attach the flue connection pipe to the rear connection opening. Ensure that the pipe fits tightly in place.
- Push the stove into place. Do not block the flue by pushing the flue connection pipe too far into the flue. If necessary, shorten the pipe.
- Seal the flue connection pipe to the opening in the fireproof wall, for example, by using fireproof mineral wool. Make sure that the flue connection is tightly sealed. Add more fireproof mineral wool if necessary.
Connecting the stove to a masonry flue via the upper connection opening
You will need an angled smoke pipe (45° or 90°) for the upper connection ( › Accessories).
- Open the cover hatches of the rear connection opening.
- Move the blocking plug from the upper connection opening to the rear connection opening.
- Turn the cover hatches back up and lock it in its position with a screw.
- Attach the flue connection pipe to the upper connection opening. Ensure that the pipe fits tightly in place.
- Push the stove in place. Do not block the flue by pushing the flue connection pipe too far into the flue. If necessary, shorten the pipe.
- Seal the flue connection pipe to the opening in the fireproof wall, for example, by using fireproof mineral wool. Make sure that the flue connection is tightly sealed. Add more fireproof mineral wool if necessary.
Connecting the Stove to a Harvia Steel Chimney
A CE-marked Harvia steel chimney can be used to remove combustion gases. Its smoke pipes are made of stainless steel and the chimney has been insulated for fire safety. The chimney has a round cross section. The smoke pipe diameter is 115 mm, and the outer casing is 220 mm.
- Open the cover hatches of the rear connection opening.
- Move the blocking plug from the upper connection opening to the rear connection opening.
- Turn the cover hatches back up and lock it in its position with a screw.
- Connect the steel chimney’s smoke pipe to the upper connection opening of the stove. Ensure that the smoke pipe fits tightly in place. See the detailed instructions in the steel chimney’s installation instructions!
Warning: If a protective cover is used around the stove, the insulation of the chimney must start from the same level as the top surface of the protective cover or underneath it. (Image 11).
Changing the Opening Direction of the Stove Door
- The door to the firing chamber can be installed to open either to the right or to the left.
INSTRUCTIONS FOR USE
- See WARNINGS AND NOTES!
- See INSTALLATION IMAGES!
Preparing the Stove for Use
Perform the first heating outdoors. The stove body has been painted with protective paint, which will vaporise during the first heating. This will cause the stove body to emit smoke. When the smoking stops, the stove is ready for normal use. Install the smoke pipes for draught. This will cause odours to vaporize from the smoke pipes as well. The outer casing has been painted with heat-resistant paint, which reaches its final cured state during the first heating. Prior to this, rubbing or sweeping the painted surfaces of the stove must be avoided.
- The sauna stones should not be placed in the stove before the first heating. Place the stones in the stove only when the stove has cooled completely after the first heating.
- Stove with a water container: Clean the water container carefully prior to use. Fill up the water container prior to the first heating.
- NOTE: Do not throw water on the stove during first heating. Painted surfaces can get damaged!
Burning Material
Dry wood is the best material for heating the stove. Dry chopped firewood clinks when it is knocked together with another piece. The moisture of the wood has a significant impact on how clean the burning is as well as on the efficiency of the stove. You can start the fire with birch bark or newspapers. The thermal value of wood differs from one type of wood to another. For example, you must burn 15 % less beech than birch to obtain the same heat quantity. If you burn large amounts of wood, which has a high thermal value, the life span of the stove will shorten!
Do not burn the following materials in the stove:
- Burning materials that have a high thermal value (such as chipboard, plastic, coal, brickets, pellets)
- Painted or impregnated wood
- Waste (such as PVC plastic, textiles, leather, rubber, disposable diapers)
- Garden waste (such as grass, leaves)
- Liquid fuel
Sauna Stones
- See Warnings and notes!
Correctly chosen and properly laid sauna heater stones ensure a long service life and the best possible sauna bath. Sauna heater stones are significant in terms of the unit’s safety. In order for the warranty to remain valid, the user is responsible for proper maintenance of the stone space in accordance with the specifications and instructions.
Important information on suitable sauna stones
- The stones should be 10–15 cm in diameter.
- Suitable sauna stone materials are peridotite, olivine diabase, olivine, and vulcanite.
- Only proper stones meant for the specific purpose should be used as sauna stones. Stones found in nature may contain harmful substances, such as iron pyrite, and therefore should not be used.
- Only use cleavage surface and/or rounded stones for your sauna heater.
- Ceramic stones and decorative stones may only be used if they have been approved by the manufacturer and are used according to their instructions.
- Note that decorative stones are only suitable on the top layer of the stone space.
- Decorative stones must be placed loosely to ensure sufficient air circulation.
- Place any decorative stones so that they do not touch stove’s hot inner frame.
- The warranty does not cover any defects that have been caused by the use of decorative stones or by sauna stones not recommended by the manufacturer.
- Wash off dust from the stones before piling them into the stove.
Heating the Stove
- Empty the ash box.
- Place the firewood into the fire chamber, leaving enough room for the combustion air to flow between the firewood. Place the biggest firewood on the bottom and the smaller ones on the top. Use firewood with a diameter of 8–12 cm (consider the refuelling loads value).
- Place the kindling on the top of the firewood. By starting the fire on the top of the firewood, fewer emissions are produced.
- Fire the kindling and close the door. The amount of draught can be adjusted by opening the ash box. The stove is not intended for use with the stove door open.
- Note: The handles become hot while in use. Use the supplied tool for opening and closing the stove door and ash box › Image 1.
- When heating the stove, it is generally a good idea to at first keep the ash box slightly open. This ensures that the fire starts burning properly.
- Excessive draught will cause the stove body to become red-heated, which will shorten its life span considerably.
- During bathing, and when the sauna room is already heated, the ash box can be closed to keep down the fire and decrease wood consumption.
- Note: The values in the CE marking have been measured using a gap of 45 mm in the ash box. Do not open ash box more than 70 mm.
- Note: The handles become hot while in use. Use the supplied tool for opening and closing the stove door and ash box › Image 1.
- If necessary, place more firewood into the fire chamber when the ember is dying down. Use firewood with a diameter of 12–15 cm. It takes only a couple of pieces of wood to maintain the bathing temperature (consider the refuelling loads value)
WARNING: Prolonged, intense heating may cause risk of fire!
- Excessive heating (several full loads in a row, for example) will make the sauna room, stove and the chimney overheat. Overheating shortens the stove’s life span and may cause risk of fire.
- A good rule of thumb is that temperatures of over 100 ºC are too high in a sauna.
- Observe the correct wood quantities noted in the heating instructions. Let the stove, chimney and sauna room cool down if necessary.
Sauna Water
The water to be thrown on the heated stones should meet the requirements of clean household water. Only special aromas designed for sauna water may be used. Follow the instructions given on the package. Throw sauna water on the stones only. If you throw water on the hot steel surfaces, they may blister due to the large temperature variation!
| Water properties | Effect | Recommendation |
| Humus concentration | Colour, taste, precipitates | <12 mg/l |
| Iron concentration | Colour, odour, taste, precipitates | <0,2 mg/l |
| Manganese (Mn) concentration | Colour, odour, taste, precipitates | <0,10 mg/l |
| Hardness: most important substances are magnesium (Mg) and lime, i.e. calcium (Ca) | Precipitates | Ca: <100 mg/ |
| Chloride-containing water | Corrosion | Cl: <100 mg/l |
| Chlorinated water | Health risk | Forbidden to use |
| Seawater | Rapid corrosion | Forbidden to use |
| Arsenic and radon concentration | Health risk | Forbidden to use |
Maintenance
Stove
- The ash box should always be emptied before heating the stove so that the combustion air that is lead through the box would cool off the fire grate and lengthen its life span. Get a metal container, preferably a standing model, to put the ash in. As the removed ash may include hot embers, do not keep the ash container close to combustible material.
- Soot and ashes gathered in the smoke canals of the stove should be removed occasionally through the soot openings.
- Due to large variations in temperature, the sauna stones disintegrate in use. Therefore, they should be rearranged at least once a year or even more often if the sauna is in frequent use. At the same time, any pieces of stones should be removed from the stone space, and disintegrated stones should be replaced with new ones.
- Wipe dust and dirt from the stove with a damp cloth.
Chimney
- The chimney and connection pipes should be swept at regular intervals and especially if the stove has not been used in a long time.
- Due to incomplete burning of fuel and failure of sweeping the chimney, the soot build-up in the flue may ignite.
- Actions to be taken in case of a chimney fire:
- Close the ash box, stove door and damper plate (if installed).
- Contact local fire authority.
- Do not try to extinguish fire using water.
- After a sootfire, a chimney sweeper must check the stove and the flue before use.
Troubleshooting
- There is no draught in the flue. Smoke comes into the sauna.
- There are leaks in the flue connection. Seal the connection (› Connecting the Stove to a Masonry Flue).
- The brick flue is cold.
- There is low pressure caused by an extractor fan or another device in the room. Make sure there is enough air to compensate.
- Several fireplaces are used at the same time. Make sure there is enough air to compensate.
- The ash box is full.
- The smoke canals of the stove are blocked ( › Maintenance).
- The flue connection pipe is too deep in the chimney ( › Connecting the Stove to a Masonry Flue).
- The sauna does not heat up.
- The sauna is too big in relation to the stove’s heating capacity ( › Technical Data).
- There is lots of non-insulated wall surface in the sauna ( › General).
- The burning material is moist or its quality is otherwise low ( › Burning Material).
- The flue does not have a good draught.
- The smoke canals of the stove are blocked ( › Maintenance).
- The stove stones do not heat up.
- The sauna is too small in relation to the stove’s heating capacity ( › General).
- The flue does not have a good draught.
- The burning material is moist or its quality is otherwise low ( › Burning Material).
- The smoke canals of the stove are blocked ( › Maintenance).
- Check the stone placement ( › Sauna Stones). Remove the small pieces of stone and stones that are less than 10 cm in diameter from the stone space. Replace the disintegrated stones with large and undamaged ones.
- The stove emits smell.
- See section › Preparing the Stove for Use
- The hot stove may emphasize odours mixed in the air that are not, however, caused by the sauna or the stove.
- Examples: paint, glue, oil, seasoning.
- Wooden surfaces of the sauna room blacken
- It is perfectly normal for the wooden surfaces of the sauna room to blacken in time. The blackening may be accelerated by sunlight, heat from the stove, protective agents on the walls (protective agents have a poor heat resistance level), fine particles disintegrating from the sauna stones which rise with the airflow and smoke that enters the sauna, for example, when adding firewood.
Contacts
GLOBAL
- P.O.Box 12 | Teollisuustie 1-7
- 40951 Muurame FINLAND
- +358 207 464 000 |
- [email protected]
- www.harvia.com
CENTRAL EUROPE
- sentiotec GmbH Division of Harvia Group Wartenburger Straße 31, A-4840 Vöcklabruck
- T: +43 (0) 7672/22 900-50
- F: -80
- [email protected]
- www.sentiotec.com





















