Athena Gateway Control Equipment

Athena Clear Connect Gateway – Type X
The Athena Clear Connect Gateway – Type X is a ceiling-mounted device that integrates Clear Connect – Type X devices including Ketra loads with Lutron’s existing Clear Connect – Type A and QS devices through the wired Athena Edge Processor.
The Athena Clear – Connect Gateway – Type X enables compatible Lutron control systems to communicate with up to 50 wireless, Clear Connect – Type X devices including Ketra Intelligent Light Sources.
Features
- Must be powered by an IEEE 802.3af-2003 or 802.3at-2009 compliant Power over Ethernet (PoE), supply, Lutron model Q-POE-PNL or by others.
- The Athena Clear Connect Gateway – Type X is compatible with the following Ketra lighting fixtures:
– A20
– S30, S30 Track
– S38, S38 Track
– G2 via N3
– L3I via N3
– L4R via N3
– D3
– D4R
– Visit www.ketra.com for a complete list of compatible models - Note: The gateway requires at least one Athena QP5-xL-POE panel or QP6-1L and a IEEE 802.3af-2003 or IEEE802.3at-2009 compliant Power over Ethernet (PoE) supply by others. Refer to the installation instructions of the Athena Light Management Hub for setup and other information. A maximum of 16 total gateways and Athena Edge processors can be on one system. Requires Athena Designer software 1.0 or later.
Models Available:
- Q-RF – 50 Clear Connect – Type X devices maximum
Specifications
Regulatory Approvals
- cULus
- FCC
- IC
PoE Power
- 48 V- 100 mA (IEEE 802.3af-2003 or 802.3at-2009 compliant PoE supply)
- If there are designated Ketra emergency fixtures within the gateway’s subnet, power for the gateway’s PoE must be supplied via normal-only feed and not using an uninterruptible power supply or generator.
Environment
- Operating temperatures 32 °F to 104 °F (0 °C to 40 °C)
- Relative humidity: 0% to 90% non-condensing
- For indoor use only
System Communications and Capacity
- The gateway communicates through a wireless mesh network.
- Controls up to 50 Clear Connect – Type X devices, depending on the model.
- The gateway can send a Clear Connect – Type X command to its subnet once per 250 ms.
ESD Protection
- Tested to withstand electrostatic discharge without damage or memory loss, in accordance with IEC 61000-4-2
Surge Protection
- Tested to withstand surge voltages without damage or loss of operation, in accordance with IEEE C62.41-1991 Recommended Practice for Surge Voltages in Low-Voltage AC Power Circuits
Power Failure
- 10-year power failure memory: Should the power be interrupted, the gateway will return to its previous state prior to the interruption when power is restored
Mounting
- The Athena Clear Connect Gateway – Type X can be recess-mounted or wall-mounted (using the recess bracket) or junction box mounted. When mounting on a 4 in x 4 in (102 mm x 102 mm) junction box, a mud ring (not supplied) must be used.
- Each Clear Connect – Type X device must be within 71 ft (22 m) of a centrally located Clear Connect Gateway.
- Each Clear Connect – Type X device should have two or more non-battery powered Type X devices within 25 ft (7.6 m) of another compatible Clear Connect – Type X device.
- The Athena Clear Connect Gateway – Type X must be mounted 5 ft (1.5 m) away from wireless interference sources like microwaves, Wireless Access Points (WAP), etc.
- Do not install the gateway in metallic enclosures.
Wiring
- Use Cat5e minimum cable.
- Maximum wire length is 328 ft (100 m).
- Each gateway needs to have a home run Ethernet connection back to a PoE switch.
- Do not run PoE wiring outdoors.
Athena Security Statement
Lutron takes cybersecurity very seriously. We actively monitor the threat landscape and take a proactive approach to security and privacy, continuously working to update and enhance our systems and processes.
At Lutron, we call our approach to cybersecurity “Secure Lifecycle”, and we would like to present the following steps we take to protect your security and privacy:
- Security by Design. When building a new system, Lutron utilizes a dedicated security team to ensure best practices are implemented. Security is built in. It is not an afterthought or an add-on.
- Third-Party Validation. Security is complicated. Lutron has a dedicated team of internal experts, but we also leverage external experts to double-check our work, and to make security recommendations.
- Continuous Monitoring and Improvements. Security is a constantly moving target. Lutron uses a dedicated security team to continuously monitor for potential threats and, when needed, send out security patches to update installed systems.
- Ongoing Support. Lutron has the resources you need to answer questions about security when they arise
We incorporate a variety of security features into our product designs. These features include recommendations from the National Institute of Standards and Technology (NIST) among others, and they are aimed at meeting our secure lifecycle protections. While we do not publish a comprehensive list of our security features, the following list is a small example of some of the techniques employed in our system designs for Athena Processors, Light Management Hubs, Clear Connect – Type X Gateway devices and associated services (such as mobile applications and cloud resources):
- Secure and authenticated remote access with unique keys for every Athena system
- A secure hardware element (“chip”) on all Athena processors and Clear Connect – Type X Gateway to guard the keys used for secure communication and authentication
- Enforcing industry-standard encrypted communication and techniques for our integration protocols to the highest extent possible. Any integrated third-party components or systems should be evaluated independently.
- Secure commissioning – all communication between the system programming software tool/app and the processors is encrypted and authenticated. Programming a system requires permission to access that system.
- Security updates are pushed out automatically to the lighting system for urgent security patches. Lutron is committed to one year of security support from system start-up date.
- Use of industry-standard techniques for cloud-based integrations, such as OAuth2.0
- Signed processor firmware to ensure a firmware update is authentically from Lutron.
If you have additional questions or would like to make a vulnerability disclosure to Lutron, please contact Lutron’s 24/7 Technical support Line at 1.844.LUTRON1 or visit us at [email protected].
Dimensions
All dimensions are shown as: in (mm)


Mounting*

* Both the recess-mount and surface-mount adaptors ship with the Athena Clear Connect Gateway – Type X units.
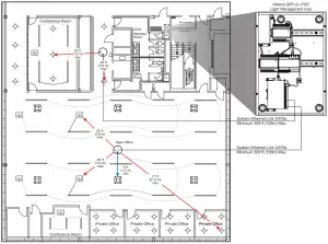
System Riser Diagram

Note: Refer to the IT Guide at www.lutron.com/ITguide for more information on networking requirements.
Range Diagram
All Clear Connect – Type X devices must be within 71 ft (22 m) of the Athena Clear Connect Gateway – Type X.
Notes:
- The Athena Clear Connect Gateway – Type X cannot span multiple floors.
- The Athena Clear Connect Gateway – Type X should be mounted in the middle of non-metal ceiling tile or drywall, visible from inside the space.
- Installation near metal, other than a junction box, may reduce RF range. The Athena Clear Connect Gateway – Type X should be at least 12 in (305 mm) away from metal objects.
- The Athena Clear Connect Gateway – Type X should not be mounted within 5 ft (1.5 m) of a Wireless Access Point.

Choose a Location to Install
Choose a location to mount the gateway so that it is centrally located in relationship to the other Clear Connect – Type X devices. A minimum of two or more Clear Connect – Type X devices must be within 25 ft (7.6 m) of the gateway.
Note: Each Clear Connect – Type X device should have two or more non battery powered Type X devices within 25 ft (7.6 m) of another compatible Clear Connect – Type X device.
| Fixture Legend
|
The Lutron Logo, Lutron, Clear Connect, Ketra, and Athena are trademarks or registered trademarks of Lutron Electronics Co., Inc. in the US and/or other countries.
All other product names, logos, and brands are property of their respective owners.





















