KitchenAid YKOSC504P Single Wall Oven
SINGLE WALL OVEN
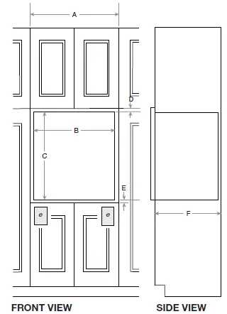
PRODUCT DIMENSIONS
| MODEL # | YKOSC504P* | KOSC504P* | |||
| Unit of Measurement | in | cm | in | cm | |
| A | Overall Width | 237/16 | 59.5 | 237/16 | 59.5 |
| B | Overall Height | 237/16 | 59.5 | 2715/16 | 71 |
| C | Height of Door | 1815/16 | 48.1 | 1815/16 | 48.1 |
| D | Height of Door Handle | 183/8 | 46.6 | 183/8 | 46.6 |
| E | 7/8 | 2.2 | 7/8 | 2.2 | |
| F | Minimum Cabinet Width for Standard Installation | 217/8 | 55.6 | 217/8 | 55.6 |
| G | Overall Depth | 221/2 | 57.2 | 221/2 | 57.2 |
| H | 5/8 | 1.6 | 5/8 | 1.6 | |

IMPORTANT: Dimensional specifications are provided for planning purposes only.
Do not make any cutouts based on this information. Refer to the Installation Guide before selecting cabinetry, verifying electrical/gas connections, making cutouts or beginning installation. All KitchenAid® appliances are appropriately UL, CUL or CSA approved.
Single Wall Oven – Traditional Installation
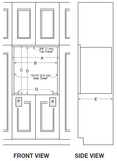
OPENING/CLEARANCE DIMENSIONS

| Unit of Measurement | in | cm | |
| A | Width of Cabinet (minimum) | 24 | 61 |
| B | Width of Cutout (minimum) | 225/8 | 57.5 |
| C | Height of cutout without trim Height of cutout with trim | 2215/16 273/4 | 58.2 70.5 |
| D | Top of cutout to bottom of upper cabinet door (minimum) | 1/4 | 0.65 |
| E | Bottom of cutout to top of lower cabinet door (minimum) | 1/2 | 1.2 |
| F | Depth of cutout (minimum) | 231/4 | 59.1 |
| G | Underside of countertop to bottom of cutout (minimum) | 313/8 | 79.7 |
| H | Top of cutout to underside of countertop (minimum) | 25/8 | 6.7 |
| I | Bottom of cutout to floor (minimum) | 37/8 | 9.8 |
| e | Recommended junction box location | ||
NOTE: True dimensions are in mm or cm and converted to inches.

Single Wall Oven – Flush Installation
OPENING/CLEARANCE DIMENSIONS

| Unit of Measurement | in | cm | |
| A | Width of flush inset cutout (minimum) | 2311/16 | 60.1 |
| B | Width of opening (minimum) | 225/8 | 57.5 |
| C | Height of flush insert cutout without trim kit (minimum) Height of flush insert cutout with trim kit (minimum) | 233/4 281/4 | 60.3 71.8 |
| Height of opening without trim | 233/8 | 59.3 | |
| D | (minimum) Height of opening with trim | 277/8 | 70.8 |
| (minimum) | |||
| E | Depth of cutout (minimum) | 231/4 | 59.1 |
| F | Bottom of cutout to floor for under counter installation (minimum) | 41/16 | 10.3 |
| G | Spacer (entire depth of cutout) Height X Width 3/8″ x 2″ (1 cm X 5.1 cm) | ||
| e | Recommended junction box location | ||
NOTE: True dimensions are in mm or cm and converted to inches.

SINGLE WALL OVEN ELECTRICAL REQUIREMENTS
Electrical Requirements Checklist:
- Oven must be connected to the proper electrical voltage and frequency as per table below:
| Type of Oven | Model Series | Voltage | Frequency | Rating |
| Single | KOSC504P*, YKOSC504P* | 208 V | 60 Hz | 3.2 kW |
| 240 V | 60 Hz | 4.2 kW |
- Separate 20 A circuit is required.
- A dedicated circuit breaker is recommended.

NOTE: If you have questions about your electrical supply, call a licensed, qualified electrician.
IMPORTANT: Dimensional specifications are provided for planning purposes only.
Do not make any cutouts based on this information. Refer to the Installation Guide before selecting cabinetry, verifying electrical/gas connections, making cutouts or beginning installation. All KitchenAid® appliances are appropriately UL, CUL or CSA approved.
W11617729A
®/™ ©2022 KitchenAid ®. All rights reserved. Used under license in Canada.
SINGLE WALL OVEN

















