kratki Biofires DELTA 600 L Bioethanol Fireplace

Dimensions and weight of bio fires
Table no 1, Drawing no 1.

HOTEL
Drawing 1

MISA
Table 1
| A (mm) | B (mm) | C (mm) | (kg) | |
| April | 1150 | 938 | 325 | 68 |
| Alpha | 800 | 590 | 174 | 17 |
| August | 1150 | 979 | 295 | 67 |
| Bravo | 900 | 652 | 174 | 23,5 |
| Bravo 2 | 902 | 650 | 174 | 23 |
| Ball | 848,5 | 850 | 181,5 | 28,5 |
| Charlie | 880 | 510 | 174 | 20 |
| Charlie 2 | 460 | 780 | 174 | 14,5 |
| December | 1150 | 1071 | 310 | 64 |
| Delta | 600 | 400 | 142 | 6,8 |
| Delta 2 | 900 | 400 | 142 | 8,4 |
| Delta 3 | 1200 | 400 | 162 | 13,5 |
| egzul | 1130 | 973 | 315 | 68,5 |
| echo | 500 | 162 | 290,6 | 7,8 |
| Planet | 1180 | 975 | 331 | 81 |
| february | 1120 | 962 | 295 | 54 |
| foxtrot | 360 | 702 | 290 | 15 |
| Delta flat | 900 | 400 | 120 | 13,2 |
| Golf | 648 | 374 | 144 | 4,4 |
| Galina | 310 | 218 | 142 | 4 |
| Hotel | 700 | 400 | 334 | 15,5 |
| Hotel MiNi | 390 | 250 | 234 | 6 |
| Hotel Krzak | 808 | 600 | 488 | 12 |
| Hotel Mini Krzak | 564 | 488 | 372 | 6 |
| india | 490 | 215 | 85 | 4 |
| india MiNi | 340 | 155 | 70 | 2 |
| india MAX | 670 | 247 | 100 | 7 |
| January | 1067 | 1066 | 252 | 52 |
| July | 1025 | 969 | 275 | 55 |
| Juliet | 1800 | 650 | 142 | 38 |
| Juliet 1500 | 1500 | 650 | 142 | 27 |
| Juliet 1100 | 1100 | 650 | 142 | 21 |
| June | 750 | 679 | 250 | 31 |
| Kilo | 590 | 350 | 85 | 7 |
| Legionis | 1215 | 1152 | 342 | 85 |
| Linate | 1100 | 780 | 474 | 61 |
| Lima | 1000 | 700 | 197 | 22,6 |
| March | 1000 | 857 | 250 | 49 |
| May | 1115 | 880 | 315 | 54 |
| Mila | 1409 | 764 | 222 | 23 |
| Misa | 717 | 400 | 171 | 8,5 |
| Misa MiNi | 470 | 260 | 130 | 4 |
| Papa | 650 | 900 | 143 | 12 |
| Półokrągły | 779 | 551 | 260 | 21 |
| romeo | 359 | 1135,5 | 209 | 19 |
| sierra | 408 | 1700 | 405 | 48,5 |
| November | 1150 | 1013 | 295 | 52 |
| october | 1150 | 959 | 330 | 56 |
| oscar | 900 | 630 | 190,5 | 19 |
| Quaerere | 1212 | 983 | 332 | 63,5 |
| Quat | 685 | 534 | 185 | 11 |
| Quebec | 1150 | 398 | 295 | 45 |
General information
For problem-free fireplace operation and long usage, please take note of the information below.
Fireplaces may only be exchanged or returned if unused and in their original packaging.
Setting and Safety
As with any product which is used for burning, a bio-fireplace produces heat. therefore, it should be located in a suitable place far away from inflammable materials. it should be situated at least 40 cm away from any furniture. Children and pets should stay a safe distance away from fire. Wall assembly is possible on condition that fire regulations, applicable in this place, are respected. it is recommended that fire-resistant coat be used on a wall within the range of fireplace assembly works in order to avoid scorching of the wall. Bio-fireplace uses oxygen, therefore it is necessary to ventilate the room.
Starting the fire these fires are only suitable to burn bioethanol (we recommended bio-deco). Using other materials or substances may lead to the damage, fire, severe injury or health damage.
Combustible inserts should be filled maximally up to three quarters of height. the fire should only be started by a competent adult, respecting all safety regulations. fuel should be fired only in designated containers by long fireplace matches or lighters for gas burners.
IMPORTANT – you should avoid filling and lighting the fire appliance while it is hot (for example, immediately after the automatic termination of the fire or after the fire has gone out). fuel poured into a hot fire/container evaporates very quickly creating strong vapours, these may ignite and flash causing an explosion and burning.
Extinguishing the fire to extinguish the fire/biofuel, cut off the air supply. to extinguish the flame in the rectangular container,you should close it by moving built-in cover. the container with the burning biofuel will be hot, so for closing a rectangular container always use the included poker.
Be careful, the bio- fire, and the immediate surroundings may stay hot for some time after use.
ASSEMBLY INSTRUCTIONS
After installing/setting bio-fireplace in place, it should be placed there container for biofuel.
- ALPHA, BRAVO, BRAVO 2, CHARLIE, CHARLIE 2, JULIET, JULIET 1100, JULIET 1500, OSCAR
Above biofire models are designed for mounting on the flat wall (mounting kit included) or built in the indicated hole on the wall. installation involves putting the bio-fire in a prepared hole, which is cut in the wall or made in construction slabs (eg G-K fireproof panels). Use the mounting screws (set included) to assembly biofire. Dimensions of the hole adapted for bio-fire presented in table no 2.
setting the bio-fire is presented in drawing no 2. - DELTA, DELTA 2, DELTA 3, GOLF, MILA, QUAT
Above biofire models are designed for mounting on the flat wall (mounting kit included) or built in the indicated hole on the wall. installation involves putting the bio-fire in a prepared hole, which is cut in the wall or made in construction slabs (e.g. G-K fireproof panels).
Use the mounting screws (set included) to assembly biofire.
Dimensions of the hole adapted for bio-fire presented in table no 3.
setting the bio-fire is presented in drawing no 3. - MISA, INDIA, FOXTROT, KILO, HOTEL KRZAK, NOVEMBER, ROMEO, PLANET, LEGIONIS, DECEMBER,QUAERERE, EGZUL, JANUARY, FEBRUARY, OCTOBER, SIERRA, JULY, MARCH, APRIL, MAY, JUNE,AUGUST, ECHO biofire are freestanding units-do not require assembly.
- LINATE
installation of bio-fireplace Linate, perform the following steps according drawing No. 4. - HOTEL, HOTEL MINI, GALINA
installation, perform the following order of figure No. 5. - The large semicircular biofire – hanging model, PAPA, LIMA, QUEBEC, BALL, DELTA FLAT this biofire model is intended to be set on a flat surface at the wall or to hang on the wall.
Wall installation, perform the following points:- on the back of the fireplace, there are four openings in the leveled intervals which are used for wall mounting. Mark on the wall all the points of installation.
- Drill holes of 6mm diameter (in earlier indicated places on the wall).
- Place the studs supplied in the set together with the fireplace into the drilled holes.
- screw in the bolts into the studs so that the space between them was approximately 3mm.
- Hang the bio-fireplace on the bolts, interleaving bolt heads through the big opening of key holes and lower the bio-fireplace slowly, so that the bolts find themselves in oblong openings and are grounded on their endings.
- the last step is to check if the bio-fireplace hangs on the wall without ‘slack’.
After installing/setting bio-fireplace in required place, biofuel container should be fitted into it.
INSTRUCTION
Table 2
| A | B | C | |
| Alpha | 530 | 535 | 180 |
| Bravo | 620 | 834 | 180 |
| Bravo 2 | 620 | 834 | 180 |
| Charlie | 460 | 740 | 180 |
| Charlie 2 | 673 | 380 | 180 |
| Juliet | 473 | 1620 | 142,5 |
Drawing 2

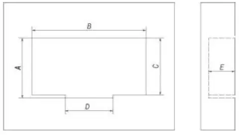
Table 3
| A | B | C | D | e | |
| Delta | 305 | 530 | 250 | 310 | 132 |
| Delta 2 | 305 | 660 | 250 | 310 | 132 |
| Golf | 305 | 520 | 250 | 210 | 132 |
| Mila | 565 | 1000 | 535 | 420 | 230 |
| Quat | 430 | 390 | 395 | 305 | 190 |
Drawing 3

Drawing 4


Drawing 5


Installation of bio-fireplace in the cavity wall


Warranty
- The manufacturer gives a 2-year guarantee for the proper usage of bio-fire from the purchase date.
- The buyer is obliged to read the user manual and follow the instructions.
- In case of a complaint, it must be submitted by way of the complaint protocol and invoice.
- The submission of this documentation is necessary to consider all claims.
- Consideration of the complaint will be made up to 14 working days of the date of its submission.
Note: Searing the bio-fireplace should not be left without adult supervision.
Biofireplaces: Alpha, Bravo, Bravo 2, Charlie, Charlie2, Delta, Delta 2, Golf, Quat can be fitted with the glass, which is mounted on the front of bio fireplace.
Uwaga: With bio fireplaces equipped with glass there is a risk of burn because the glass heats up.
Therefore, care should be taken in their use.
Kratki.pl Marek Bal ul. Gombrowicza 4, Wsola, 26-660 Jedlińsk, Poland
tel. 00 48 48 389 99 00, 00 48 48 384 44 88, fax 00 48 48 384 44 88 wew. 106
www.kratki.pl, www.kratki.eu




















