Maytag MMMF6030PB 1.1 Cu. Ft. Over-the-Range Microwave with Sensor Cooking

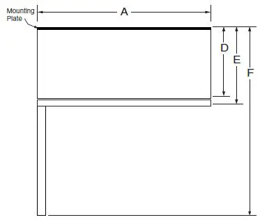
PRODUCT DIMENSIONS
| MODEL # | WMMF5930P / YWMMF5930P MMMF6030P / YMMMF6030P KMMF330P / YKMMF330P | |
| Unit of Measurement | in | cm |
| Overall Width (A) | 30 | 76 |
| Overall Height (B) | 177/8 | 45.4 |
| Height of the door (C) | 15 | 38.2 |
| Depth without door (D) | 127/8 | 32.7 |
| Depth with door (E) | 13 | 33 |
| Depth with door open 90° (F) | 423/4 | 108.7 |
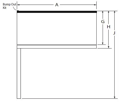
| Depth without door with Bump Out Kit (G) | 1311/16~157/8 | 34.7~40.3 |
| Depth with door with Bump Out Kit (H) | 133/4~16 | 35~40.6 |
| Depth with door open 90° with Bump Out Kit (J) | 439/16~453/4 | 110.7~116.3 |
FRONT VIEW

SIDE VIEW

TOP VIEW

TOP VIEW WITH BUMP-OUT KIT

IMPORTANT:
Dimensional specifications are provided for planning purposes only. Do not make any cutouts based on this information. Refer to the Installation Guide before selecting cabinetry, verifying electrical/gas connections, making cutouts, or beginning installation. All appliances are appropriately UL, CUL, or CSA-approved.
MICROWAVE INTERIOR CAVITY DIMENSIONS
| MODEL # | WMMF5930P / YWMMF5930P MMMF6030P / YMMMF6030P KMMF330P / YKMMF330P | |
| Unit of Measurement | in | cm |
| Cavity Height (A)) | 91/2 | 24.2 |
| Cavity Width (B) | 211/8 | 53.7 |
| Cavity Depth (C) | 14 | 35.5 |

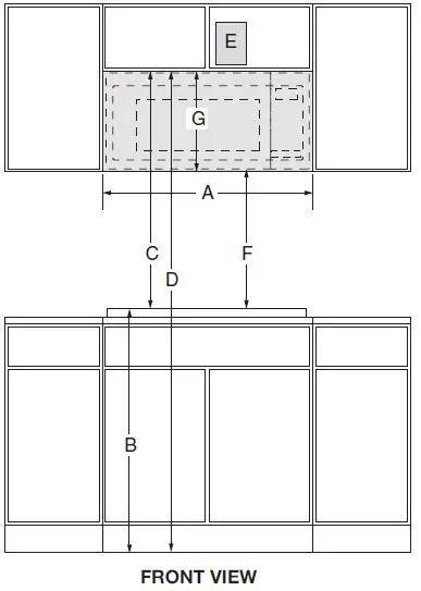
OPENING/CLEARANCE DIMENSIONS
| MODEL # | WMMF5930P / YWMMF5930P MMMF6030P / YMMMF6030P KMMF330P / YKMMF330P | |
| OPENING/CLEARANCE DIMENSIONS | in | cm |
| Width of cabinet opening (minimum) (A) | 30 | 76.2 |
| Typical height from cooking surface to floor based on 36ʺ (91.4 cm) countertops. (B) | 36 | 91.4 |
| Typical height from top of cabinet to cooking surface based on 36″ (91.4 cm) countertops. (C) | 30 | 76.2 |
| Recommened height from top of cabinet to cooking surface based on 36″ (91.4 cm) countertops. (C) | 36 | 91.4 |
| Minimum height from floor to top of cabinet opening. (B + C = D). (D) | 66 | 167.6 |
| Recommended height from floor to top of cabinet opening (B + C = D). (D) | 72 | 183 |
| Recommended electrical connection location. (E) | See below schematic | |
| Minimum height from floor to bottom of the microwave oven (F) | 121/8 | 30.8 |
| Recommended height from floor to bottom of the microwave oven (F) | 181/8 | 46 |
| Minimum height of Flat back surface (G) | 181/4 | 46.3 |
FRONT VIEW

ELECTRICAL REQUIREMENTS
120 V, 60 Hz, AC only, 15 A or 20 A fused, electrical supply is required. A time-delay fuse or dedicated circuit is recommended. Do not use an extension cord.
LOCATION REQUIREMENTS
The support structure must be able to support 150 lb (68 kg) including the microwave oven and upper cabinet including contents. The mounting plate must attach to a minimum of one
2ʺ x 4ʺ (5.1 cm x 10.2 cm) wall stud.
The mounting distance between a fixed wall on the hinged-side of the door and the microwave oven is 5ʺ (12.7 cm).
VENTING REQUIREMENTS
The microwave oven is factory-set for recirculating ventilation. To vent through the roof or wall, refer to installation instructions for further information.
| MODEL # | WMMF5930P / YWMMF5930P MMMF6030P / YMMMF6030P KMMF330P / YKMMF330P | |
| Opening/Clearance Measurement | in | cm |
| Depth of upper cabinet (minimum-maximum) Stand Out* (A) | 12~12.75 | 30.5~32.4 |
| Depth of upper cabinet (minimum-maximum) Flush* (B) | 12.75~13 | 32.4~33 |
| Depth of upper cabinet (minimum-maximum)* (C) | 0.5 | 1.27 |
| Can this product be installed flush? Flush refers to thre appliance not protruding past the cabinet depth. (Y/N) | (A) N (B) Y | |
This microwave oven is factory set for 12ʺ (30.5 cm) ~ 13ʺ (33.02 cm) depth of upper cabinet, install with the provided mouting plate.

| MODEL # | WMMF5930P / YWMMF5930P MMMF6030P / YMMMF6030P KMMF330P / YKMMF330P | |
| OPENING/CLEARANCE DIMENSIONS | in | cm |
| Depth of upper cabinet (minimum-maximum) Flush* (A1) | 133/4 < D <= 14 | 35 < D <= 35.6 |
| Depth of upper cabinet (minimum-maximum) Stand out* (A2) | 13 < D <= 133/4 | 33 < D <= 35 |
| Depth of upper cabinet (minimum-maximum) Flush* (B1) | 141/4 < D <= 141/2 | 36.2 < D <= 36.8 |
| Depth of upper cabinet (minimum-maximum) Stand out* (B2) | 14 < D <= 141/4 | 35.6 < D <= 36.2 |
| Depth of upper cabinet (minimum-maximum) Flush* (C1) | 143/4 < D <=15 | 37.5 < D <= 38.1 |
| Depth of upper cabinet (minimum-maximum) Stand out* (C2) | 141/2 < D <= 143/4 | 36.8 < D <= 37.5 |
| Depth of upper cabinet (minimum-maximum) Flush* (D1) | 151/4 < D <= 151/2 | 38.7 < D <= 39.4 |
| Depth of upper cabinet (minimum-maximum) Stand out* (D2) | 15 < D <= 151/4 | 38.1 < D <= 38.7 |
| Depth of upper cabinet (minimum-maximum) Flush* (E1) | 153/4 < D <= 16 | 40 < D <= 40.6 |
| Depth of upper cabinet (minimum-maximum) Stand out* (E2) | 151/2 <D <= 153/4 | 39.4 < D <= 40 |
| Back of the microwave oven to back of the cabinet or Wall (F) | 1.5~3.5 | 3.8~8.9 |
| Can this product be installed flush? Flush refers to the appliance not protruding past the cabinet depth. (Y/N) | (A1, B1, C1, D1, E1) Y (A2, B2, C2, D2, E2) N | |
D-Depth of the upper cabinet
For the depth of an upper cabinet larger than 13″ (33.02 cm), and less than or equal to 16″ (40.64 cm) depth of the upper cabinet, install with the optional bump out mounting kit W11630300, the bump out mounting kit is not provided, but can be purchased from Whirlpool.
®/™ ©2022 Todos los derechos reservados.
All rights reserved. Used under license in Canada.


















![Whirlpool 1.9 cu.ft. Over-the-Range Microwave [WMH32519H] User Manual Whirlpool 1.9 cu.ft. Over-the-Range Microwave [WMH32519H] User Manual](https://manualsee.com/img/353/18054/2020/12/Whirlpool-1.9-cu.ft_.-Over-the-Range-Microwave-WMH32519H-featured.png)

