

DESIGNER HOOD
MODEL: EH-N9638ST(SS) EH-N9639ST(BK)
Owner’s Manual
EH-N9638ST SS Designer Hood
Please read this manual carefully before operating your set.
Retain it for future reference.
Record model number and serial number of the set.
See the label attached on the set and quote this information to your dealer when you require service.
For The Warranty Terms & Conditions, Please Refer To Warranty Certificate
Please read this instruction carefully. It is advisable to keep this instruction manual in a safe place for future reference.
SAFETY PRECAUTIONS
- Keep electrical appliances out of reach from children. Do not let them to operate the appliances without supervision.
- To protect against the risk of electrical shock, do not immerse the product, power cord or plug into water or any other liquid.
- This product is for household and indoor use only.
- This product is not intended for use by person (including children) with reduced physical, sensory or mental capabilities unless they have been given supervision or instruction concerning use of the appliance by a person responsible for their safety.
- If the power cord or plug is damaged, it must be replaced by the service centre or a qualified service technician to avoid hazard.
- Before installation, check if the mains supply voltage is matched with the voltage stated on the rating plate of the cooker hood.
- There must be adequate air ventilation of the room when the cooker hood is used with the cooking appliances with burning gas or other fuels.
- Ensure that the installation of exhaust complies with the standard of local building, gas and electrical authorities.
- Do not ignite flames in the pans.
- There is a risk of fire if cleaning is not carried out in accordance with this instruction.
ASSEMBLY INSTRUCTIONS
Please check the following before installation:
- Installation of cooker hood must be carried out by an authorized or qualified technician.
- Remove all packaging materials from the cooker hood. Check and make sure that the cooker hood is not damaged.
- Please ensure the power supply has switched OFF when installing the cooker hood.
- For optimum air extraction, avoid having too many windows surrounding the cooker hood which will cause air convection.
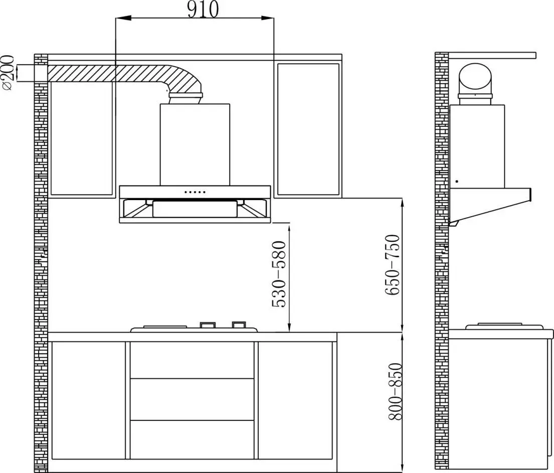
- The optimum height for the installation is between 530 to 580mm which is measured from the bottom of the cooker hood to the top of the hob.
- Make sure the hood is in level after installation to avoid oil spill over from the oil cup.

- Before installing, determine the height between the bottom of the cooker hood to the top of the hob. Mark on the wall to suit the bracket locations.

- Drill 4 holes with diameter of Ø8mm and 60mm deep. Insert the screw anchors into the holes. Fix the mounting bracket and tighten the screws.
- Remove the horizontal oil cup. Hang the cooker hood on the mounting bracket and make sure the cooker hood is in level.
- Fix the exhaust ducting on the cooker hood. Install the oil cup on the cooker hood.
- Install the telescopic exhaust cover to the height required.
- Before connecting to the mains supply, ensure that the mains voltage corresponds to the voltage on the rating plate of the cooker hood.
INSTALL THE CHARCOAL FILTER
- Disconnect the power supply. Remove the decorative cover and loosen the screws on the base.

- Loosen two screws around the air inlet ring and install the charcoal filter.

- After that, install the parts according to the steps mentioned above.
PRODUCT DESCRIPTIONS

- Switch/Delay Off Function To switch the cooker hood to standby mode and turn off the cooker hood. Press this button during operation to schedule three minute delay timer to turn off the cooker hood.
- Low Fan Speed To operate at low fan speed.
- High Fan Speed To operate at high fan speed.
- Turbo Fan Speed Press this button to operate at turbo fan speed for three minute (after three minute will revert to high fan speed).
- LED Light Illumination To switch on/off the LED light.
- Gesture Motion Sensor Wave your hand from left to right to turn on the cooker hood. The cooker hood will start to operate with high fan speed. Continue wave your hand in same direction to switch to turbo fan speed. Wave your hand from right to left to activate delay off function. Wave your hand in same direction again to turn off cooker hood completely.
NOTE: The ideally gesture motion speed from left to right or right to left shall within two seconds. The ideally distance of gesture motion from control panel is from 5 10CM.
OPERATING INSTRUCTIONS
- Press the
button and press the
button to operate the cooker hood in low speed. Press the
button to operate the cooker hood in high speed. Press the
button to operate the cooker hood in turbo speed. This function will revert to high speed after three minute. - When the motor is running in normal or high fan speed, press
button to schedule the cooker hood to turn off after three minutes. Cooker hood will be turn off after three minutes. Press
button again when the cooker hood in delay off mode to turn off the cooker hood immediately. - Press the
button to turn on the LED lamp. Press again to turn off. (This function does not relate to the cooker hood motor).
CLEANING AND MAINTENANCE
- The cooker hood must always be disconnected from the electricity supply before carrying out the maintenance.
- Clean the cooker hood with damp cloth, hot water and mild detergent. Do not use chemical, steel, wooden or abrasive cleaners to clean the cooker hood.
- Remove the oil cup in horizontal direction, wash in hot soapy water, dry and fit back into the cooker hood. Do not use the cooker hood without the oil cup installed.
- Avoid spilling water into the motor and electronic component.
CLEANING THE INNER PART
- Disconnect the power supply and then remove the oil cup. Then remove the glass panel from the bottom with both hands.

- Loosen six screws around the filter and remove the filter for cleaning.

- Remove the decorative cover and loosen the screws on the base.

- Loosen the screws on the charcoal filter and then take it out.

- Loosen the screws on the air inlet ring and then take it out.

- Turn the locking nut in clockwise direction to take out the impeller for cleaning.

- After the maintenance, install the parts according to the steps mentioned above.
REPLACING THE LIGHT BULB
- Disconnect the power supply, slightly insert the screwdriver at the edge of the LED light and pry downward to take out the LED light (4W).
- Disconnect the connecting cable of LED light (4W) and replace a new LED light unit (4W). Connect the power supply to ensure LED light (4W) is functioning.
The LED light bulb shall not be greater than 4W.
TROUBLESHOOTING
| Malfunctions | Possible Root Cause | Checking |
| Weak Suction | The distance is too far between the cooker hood and cooking appliance | Lower down the cooker hood installation height but within the safety guideline |
| Strong convection due to too much ventilation | Shut off some of the windows or doors | |
| Cooker hood and light not function | The power supply is not connected | Check if the plug is well connected and the power is on |
| Power cord is damaged | Contact technicians for repair | |
| Motor functions but light not works | Light bulb is damaged | Replace a new light bulb (4W) |
| Light works but motor not function | The bearing may be damaged | Contact technicians for repair |
| The internal wires or motor capacitor may be burnout | ||
| Vibration on the cooker hood | The screw is loosen | Tighten the screws |
| The cooker hood is noisy | Exhaust pipe surface is distorted | Contact technicians to reinstall the exhaust pipe |
MAIN SPECIFICATION
| Rated Voltage | : 220-240V/50Hz |
| LED Light | : 4W x 1 |
| Suction Power | : 1,600m³/hr |
| Motor Power | : 250W |
| Product Dimension | : 895 mm (W) x 705 – 1,085mm (H) x 480mm (D) |
PRODUCT SIZE

NOTICE
This product must not be disposed together with domestic waste. It has to be disposed at an authorized place for recycling of electrical and electronic appliances. By collecting and recycling waste, you help to save natural resources and make sure the product is disposed in an environmental friendly and healthy way.
![]()





























