Dynisco PG4 Series Mechanical Pressure Gauges User Manual


P/N 974081
05/05 Rev. D
ECO # 29918
GENERAL
IMPORTANT INFORMATION
This manual applies to the PG4 series only. It must be kept near the equipment in a readily and immediately accessible location at all times. The content of this manual must be read, understood and followed in its entirety. This applies in particular to the notes on safety. Following the safety instructions will help to prevent accidents, defects and malfunctions.
Models covered by this manual include the PG441R, PG442R and TPG443R.
DYNISCO will not be held liable for any injury, loss or damage resulting from failure to follow the instructions in this manual.
If the product malfunctions, in spite of having followed the operating instructions, please contact the DYNISCO customer service department (See the back of the manual for contact information). This applies in particular during the warranty period.
COPYRIGHT
Copyright law requires that this manual be used for intended purposes only.
It is strictly forbidden to allow reproduction of any kind “in whole or in part” to persons outside of Dynisco, without approval from Dynisco.
EXPLANATION OF ICONS
The manual uses icons to indicate information pertaining to safety:
![]()
Risk of destruction or damage to equipment, machines or installations

General danger to life or limb

Specific danger to life or limb

You MUST do this
The safety instructions are provided again in the individual chapters of the manual.
ABBREVIATIONS
The following abbreviations are used:
OM Operating Manual
PG Pressure Gauge
f.s. of full scale
BFSL Best Fit Straight Line
PRINCIPLE OF OPERATION
The mechanical system (a filled assembly) consists of a lower diaphragm, a filled capillary tube, and a Bourdon tube. The filled assembly transmits pressure from the process to the Bourdon tube which then rotates the needle on the face plate of the pressure gauge. The filled assembly isolates the electronics from the high process temperatures.
The lower diaphragm is the surface in contact with the media being measured. This diaphragm can be made from a choice of materials. The standard material is heat-treated 15-5 stainless steel with Titanium Nitride coating. This has average corrosion and abrasion resistance and is similar to 17-4 stainless steel.
Behind the lower diaphragm is a capillary tube filled to the upper diaphragm. As the process pressure deflects the lower diaphragm, the fill is displaced through the capillary tube and applies pressure to the Bourdon tube.
NOTES ON SAFETY

The operator or owner of the larger overall system is responsible for following the safety and accident prevention regulations that apply to the specific application.
DYNISCO will not be held liable for any injury, loss or damage resulting from failure to follow the instructions in this manual.

Toxic Hazard!
The PG contains a very small amount of mercury (Hg) 0.00322 in³ typically with a 6/18 configuration, as its transmission medium. If the diaphragm is damaged, mercury may escape. Never transport or store the PG without the protective cap. Remove the cap shortly before installation.
If mercury is inhaled or swallowed, seek medical attention immediately! If mercury is inhaled or swallowed, seek medical attention immediately!
Mercury is hazardous waste and must be disposed of in accordance with applicable laws. DYNISCO will accept defective PG’s. If mercury escapes, use airtight packaging!
Temperature
The PG4 series of pressure gauges can be used in media temperatures up to 400°C. If the pressure gauge is used in other applications, the safety and accident prevention regulations specific to that application must be followed. Ambient temperature for the case max. +135°C.
Higher temperature can result in damage and malfunction. Do not install the pressure gauge in places where this temperature is exceeded.
TECHNICAL DATA
ORDERING GUIDE FOR PG4 SERIES
The exact meanings of the letter/digit combinations are given in the corresponding sections of Chapter 3.

ORDERING EXAMPLE

ORDERING INFORMATION
XPG44XR-XX-X/XX-X-X
TEMPERATURE OPTION
XPG44XR-XX-X/XX-X-X
Blank = No Temperature Sensor
T = J-Type Thermocouple
CONFIGURATION
XPG44XR-XX-X/XX-X-X
1 = Rigid Snout Only
2 = Rigid Snout with Flexible Stem
3 = Rigid Snout with Flexible Stem and Temperature Option
PRESSURE RANGE
XPG44XR-XX-X/XX-X-X
5M = 5,000 psi
10M= 10,000 psi
RIGID STEM & FLEXIBLE CAPILLARY
XPG44XR-XX-X/XX-X-X
6 = 6” Rigid Stem/0” Flexible Capillary
6/30 = 6” Rigid Stem/30” Flexible Capillary
12 = 12” Rigid Stem/0” Flexible Capillary
12/30 = 12” Rigid Stem/30” Flexible Capillary
MOUNTING
XPG44XR-XX-X/XX-X-X
Blank = Face Down
U = Face Up
THERMOCOUPLE TYPE (PG443R ONLY)
XPG44XR-XX-X/XX-X-X
Blank = J Type Thermocouple
K = K Type Thermocouple
PERFORMANCE CHARACTERISTICS
COMBINED ERROR (ACCURACY)
Combined error is also known as accuracy which includes linearity, hysteresis and repeatability, and is determined by BFSL (Best Fit Straight Line).
±2.0% of full scale
ZERO ADJUSTABILITY
7.5% of full scale
MAX. OVERLOAD ( WITHOUT INFLUENCING OPERATING DATA)
1.5 x full scale pressure
NEEDLE SWEEP
270°
THERMOCOUPLE OPTION
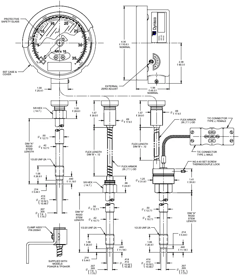
J-Type Thermocouple for 6” snout (Dynisco P/N 901746)
J-Type Thermocouple for 12” snout (Dynisco P/N 901747)
K-Type Thermocouple for 6” snout (Dynisco P/N 901748)
MATERIALS
Standard Diaphragm 15-5PH with Titanium Nitride Coating
Standard Stem(Snout) 17-4PH
TORQUE
max. 56.5 Nm
(500 inch-lbs.)
min. 11.3 Nm
(100 inch-lbs.)
WEIGHT
The weight varies depending on product configuration. Average weight range is 2 to 3 pounds.
DIMENSIONS
See Figure 3-1.
Fig. 3-1 PG4 Series

TRANSPORT/DELIVERY

Toxic hazard!
The PG contains a small amount of mercury (Hg) as its transmission medium. If the diaphragm is damaged, mercury may escape.

Never transport or store the PG without the protective shell bolted in place. Remove the shell shortly before installation.
If mercury is inhaled or swallowed, seek medical attention immediately. If mercury is inhaled or swallowed, seek medical attention immediately.
Mercury is hazardous waste and must be disposed of in accordance with applicable laws. DYNISCO will accept defective PGs.
If mercury escapes, use airtight packaging!
TRANSPORT/PACKING/TRANSPORT DAMAGE
- Do not let the PG be damaged by other items during transit.
- Use only the original packaging.
- Report transport damage to DYNISCO immediately in writing.
STORAGE
- Store the PG in original packaging only.
- Protect against dust and moisture.
SCOPE OF DELIVERY
- PG with diaphragm protection cap
- Fastening clip (transmitter with flexible stem only)
- Calibration sheet
- Operating manual
INSTALLATION
GENERAL MOUNTING INFORMATION
Do not remove the protective cap on the PG until ready to install.
Before mounting the PG, check mounting hole carefully. The PG must only be mounted in holes that satisfy the requirements below. A hole that does not satisfy these requirements can damage the pressure gauge.
Insure the mounting hole is clear of any frozen polymer or debris and is machined to the proper dimensions.
Coat the threads with a high temperature anti-seize grease or a suitable parting agent, this will help prevent the PG snout from sticking permanently in the mounting hole.
Install unit into the process connection. (Do NOT torque transmitter into the hole at this time!) Allow time for the pressure gauge snout temperature to equalize to the process temperature. This will help eliminate thread galling and ease removal later. There should be NO pressure applied at this time.
Always use a torque wrench applied to the designated hexagon collar bolts while screwing the pressure gauge in and out. Do not apply the tool to the housing or housing/sensor connection.
After temperatures have equalized, apply proper torque as described in Section 3.6 or 5.2 of the Manual and tighten the sensor into mounting hole.
After the correct torque has been applied units with flexible capillary require the electronics to be mounted away from the process heat using mounting hardware, P/N 200941.
Make sure that the medium is in molten condition during sensor removal. Removing the sensor while the medium is in solidified condition can damage the sensor diaphragm.
When removing the PG, carefully clean the diaphragm of the transmitter with a soft cloth while the medium is still malleable.
Always remove the pressure gauge prior to cleaning the machine with abrasives or steel wire brushes.
Also, do not clean the PG with hard objects, such as a screwdriver, a wire brush, etc. this will possibly damage the transmitter.
Before reinstalling the PG, ensure that the mounting hole is free from hardened plastic. A mounting hole cleaning tool kit is available to aid in removing of the material. (Dynisco Part Number 200100.) A gauge plug to check the hole is included in this kit.

The most common causes of sensor damage are: installation in improperly machined or plugged mounting holes and cold starts. The tip of the PG consists of a stainless steel diaphragm that must be protected from severe abrasives, dents and scores.

Burn Hazard! Burn Hazard! The PG must be removed with the melt in the molten condition. The PG can be very hot when removed. WEAR PROTECTIVE GLOVES!
Careful attention should be paid to correctly machine the mounting port. Failure to use the recommended mounting port may result in erroneous pressure measurement, difficult sensor removal, premature sensor failure, process fluid leaks, and personnel injury. In applications involving high temperature operation and/or repeated thermal cycling a good high quality anti-seize compound should be applied to the threaded surfaces.
MOUNTING HOLE TORQUE
max. 56.5 Nm
(500 inch-lbs.)
min. 11.3 Nm
(100 inch-lbs.)
MOUNTING HOLE DIMENSIONS
See Figure 5-1.
Fig. 5-1 1/2-20 UNF Mounting Hole
MOUNTING THE PRESSURE GAUGE
Dynisco offers a set of mounting hole-machining tools with all the necessary drills, taps, and reamers for the Dynisco standard ½-20UNF-2A mounting holes used in high temperature and plastics processing applications (Dynisco Part Number 200925). Detailed instructions are sent with the machining kits. Copies of the instructions are available from Dynisco upon request.
When machining the hole pay careful attention to the concentricity between the threads and the 0.312/ 0.314 diameter. Since the pressure seal is on the 45° seating surface, this surface should be examined for good finish, free from burrs, etc.
It is general good practice to check the mounting hole before installing the PG. One procedure is to coat a gauge plug (Dynisco Part Number 200908 for the 1/2 –20 standard port), with Dykem blue on surfaces below the thread. Insert the gauge plug into the mounting hole and rotate until surface binding is encountered. Remove and inspect. Bluing should only be scraped off of the 45° sealing chamfer. If bluing has been removed from other surfaces, the mounting hole has not been machined properly.
THERMOCOUPLE REMOVAL AND INSTALLATION
- To remove, loosen setscrew on side of snout.
- Without twisting, pull the thermocouple probe carefully out of snout.
- To install, slide the new thermocouple into snout
- Lock in place with setscrew.
COMMISSIONING
GAUGE ENCLOSURE ROTATION (PG441R ONLY)
Once installation has been completed, the PG enclosure can be swiveled 300o to provide optimum visibility.
To rotate the enclosure to the desired location, first back out the set screw at the base of the enclosure. Once the set screw is loose, the enclosure can be rotated to the desired position. Do not attempt to force the enclosure beyond the built in mechanical stops. Once the enclosure is at the desired location, tighten the set screw. See Figure 6-1.
ZERO ADJUSTMENT
To adjust the zero setting of the gauge, it is important that no pressure be applied to the diaphragm. In addition, the gauge must be secured by the mounting bracket (except for rigid configurations). Using a slotted screw driver, adjust the zero screw on the gauge case until the dial pointer is centered in the zero box on the gauge scale. See Figure 6-1.
Fig. 6-1 Rotation Set Screw and Zero Adjustment
MAINTENANCE
MAINTENANCE

Burn hazard!
The PG must be removed with the melt in molten condition. The PG can be very hot when removed.

Wear protective gloves!
Installation and Removal Instructions
- DO NOT REMOVE PROTECTIVE CAP UNTIL READY TO INSTALL.
- PRIOR TO INITIAL INSTALLATION, VERIFY CORRECT MACHINING OF MOUNTING HOLE.
- WHEN REINSTALLING, MAKE SURE MOUNTING HOLE IS CLEAR OF DEBRIS OR HARDENED PLASTIC.
- THE MEDIUM MUST BE IN MOLTEN CONDITION DURING TRANSDUCER REMOVAL. (Removing the transducer with the medium in a solidified condition can damage the sensor diaphragm.)
- ALWAYS REMOVE THE PG BEFORE CLEANING THE MACHINE WITH ABRASIVES OR STEEL WIRE BRUSHES, ETC.
- DO NOT CLEAN THE “SCREWED-IN” SECTION OF THE PG WITH HARD OBJECTS – THIS WILL DAMAGE THE PG.
- ALWAYS USE A TORQUE WRENCH APPLIED TO THE DESIGNATED HEXAGONAL COLLAR WHEN SCREWING THE PG IN AND OUT. DO NOT APPLY THE TOOL TO THE HOUSING OR HOUSING/ SENSOR CONNECTION.
THERMOCOUPLE/RTD REPLACEMENT
- Replace J Type Thermocouples [Dynisco P/N 901746 (6”) or 901747 (12”)] and K Type Thermocouples [Dynisco P/N 901748 (6”)] are available for replacement.
- To remove, loosen setscrew on side of snout.
- Without twisting, pull the thermocouple probe or RTD stem carefully out of snout.
- To install press thermocouple into snout carefully until top of probe shoulders against snout.
- Lock in place with setscrew.
Fig. 7-1 Thermocouple

REPAIR/DISPOSAL

Toxic hazard!
The PG contains a small amount of mercury (Hg) as its transmission medium. If the diaphragm is damaged, mercury may escape.
Never transport or store the PG without the protective cap bolted in place. Remove the cap shortly before installation.
If mercury is inhaled or swallowed, seek medical attention immediately!
Mercury is hazardous waste and must be disposed of in accordance with applicable laws. DYNISCO will accept defective PGs.
If mercury escapes, use airtight packaging!
Please send defective pressure gauges back to your DYNISCO representative. For DYNISCO addresses, see the back cover of the operating manual.
WARRANTY
The PG4 Series of Dynisco Pressure gauges will provide excellent service and superior performance if proper care is taken during handling, installation, and use. This DYNISCO product is warranted under at the bottom of any page for complete details.
ACCESSORIES
- Machining tool kit 1/2”-20UNF-2A P/N 200295
- Cleaning tool kit 1/2”-20UNF-2A P/N 200100
- Mounting Bracket P/N 200941
- Spare 6” J-Type Themocouple P/N 901746
- Spare 12” J-Type Themocouple P/N 901747
- Spare 6” K-Type Themocouple P/N 901748
TROUBLESHOOTING
| Symptom | Corrective Actions |
| Large Zero Shift when Screwing In | 1) Check Hole with Gage Plug and Rework Hole as Required 2) Check Mounting Torque |
| No Response to Changes in Applied Pressure | 1) Confirm that needle is not against mechanical stop. 2) Check Port/Pipe for Blockage or Solidified Plastic |
| Pressure Variable Reading is Low or High | 1) Check zero with no pressure applied. 2) Check Port/Pipe for Blockage or Solidified Plastic |
| Pressure Variable Reading is Erratic | 1) Check Port/Pipe for Blockage or Solidified Plastic |
TECHNICAL DATA
MAINTENANCE
TROUBLESHOOTING

















