IL-TM Series Drinking Water Systems
User Guide

Puretec Customer Service
Thank you for purchasing a Puretec Basic undersink inline drinking water system. Your system is a proven performer manufactured from only quality materials and omponents and will give years of ‘spring fresh’ water free of impurities if maintained properly.
The system is designed for town and rural supply water but can be used in other situations.
For other types of water supply please contact your stockist.
The Puretec Basic filter systems cartridges need replacing regularly to maintain optimum performance. This is a simple procedure when following instructions. For cartridge replacements contact your stockist.
Operation
The Puretec Basic inline undersink Inlin systems are designed to run economically for many years and this is dependent on the initial installation and periodical maintenance.
Flush systems for 10 minutes after any period of non-use more than 2 days. For a period of non-use of 2 weeks or more, it may be necessary to replace cartridges.
Caution: Do not use with water that is microbiologically unsafe or with water of unknown quality without adequate disinfection before or after the system.
Cartridge Replacement
To maintain the high quality of the purified water the cartridges need changing every 6 months (this is dependant on water quality and usage).
You can obtain replacement cartridges from your dealer and to maintain performance, and warranty use genuine Puretec replacements.
Servicing
Periodically clean the aerator for any lodged sediment that may restrict flow. A Puretec water filter is highly recommended on all incoming lines for product longevity.
Should it be necessary to have your mixer serviced while under warranty, please carry out the following procedure:
- Firstly call the plumber, preferably the one that has installed it, (most problems are caused by the supply lines not being cleaned out properly, prior to connecting the mixers).
- Make sure that the plumber has installed your mixer according to the Instruction Guide.
- If the plumber is satisfied that he cannot rectify the problem then contact your plumbing supply store or your local Puretec stockist.
Important: We do not recommend the dismantling of any internal part of the mixer purely to see what is inside as this will breach your warranty.
Technical Information
Puretec Basic mixers can be used in conjunction with:
- Pressure storage hot water system
- Any mains water pressure not exceeding 500 kPa
- Maximum hot water temperature of 60°C
- Instantaneous hot water system
- Any filtered water supply
Recommended Working Pressures
Minimum working pressure 50 kPa (7.5 psi)
Maximum working pressure 500 kPa (72.5 psi)
It should be noted that water mains pressure builds up during off peak periods, mainly at night, sometimes doubling or trebling normal daytime pressures.
Note: On high pressure areas where the pressure exceeds the recommended working pressure as indicated above pressure limiting valves must be installed or warranty is voided.
Installation
This system comes complete with an installation kit enabling it to be connected to 15mm (½”) copper pipe (Cold supply only – hot water should be filtered prior to heating). Included is a control valve incorporating backflow prevention, anti hammer, flow control and pressure limiting capabilities according to the Australian Standards in full compliance with the relevant laws.
Installation Requirements
- 15mm (½”) Cold water line.
- Supply pressure: 100 – 500kPa.
- Supply temperature 0° – 38°C.
- Suitable location for faucet.
Alternative fittings may be required if being connected to anything other than 15mm (½”) copper pipe. No electrical or drainage requirements needed.
Installation Procedure
- Select suitable location that is close to the point of filtered water delivery (eg. sink).
Remember to allow access room for changing filters and a suitable place where water spillage will not cause damage. Location should not be in direct sunlight. - Isolate water supply and cut copper pipe ready to install the Ball Valve Adaptor.
- Connect the Ball Valve to the Multivalve with a piece of White Tubing.
- Choose the best position for the faucet, taking into consideration height of jugs etc. and also the drainage of any spills. Then drill a 033mm hole and install the faucet.
- To install faucet, place the base upholder into the faucet. Insert the faucet into the hole in sink or bench. Slip the Rubber Washer, Metal Washer and Spacer onto threaded end of faucet. Screw on Nut and tighten making sure faucet is correctly positioned on top.
- Install filter cartridge by positioning it in the desired location, marking the position of fixing hole and fixing with bracket screw. (cartridge can be mounted horizontally or vertically) Allow room for the connecting tubes. Ensure flow arrow on cartridge is in direction of waterflow.
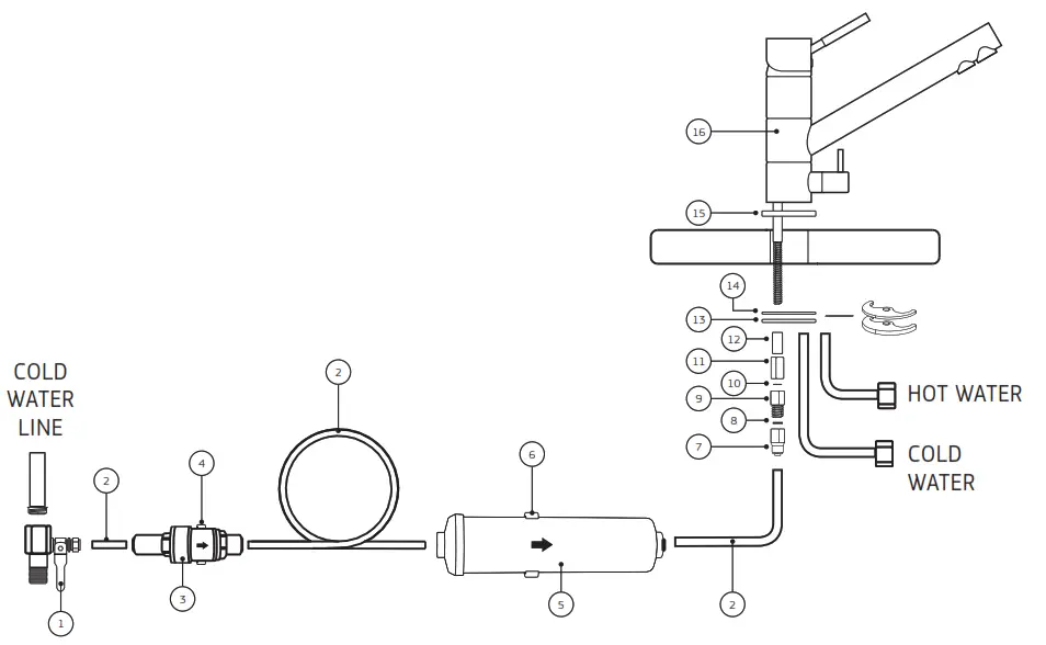
Parts DescriptionNo. Description 1 Ball Valve Adaptor 2 1/4 White Tubing 3 Multivalve 4 PLV Bracket 5 Inline Filter Cartridge (IN149C) 6 Filter Bracket 7 Quick Connect Tube Adaptor 8 0-Ring (black) 9 Bush 10 0-Ring (red) 11 Locking Nut 12 Spacer 13 Metal Washer 14 Rubber Washer 15 Base 16 3-Way Mixer Tap
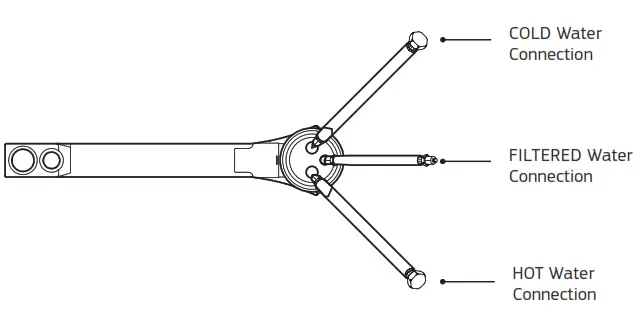
Water Connection Patterns
- Fit Tubing into connectors (for quick-connect fittings see Fig 2). Allow slack in the Tubing.
- Restore the water supply and check for leaks.
- Run the system for at least 5 minutes to remove carbon fines. Water may appear milky, but this is normal and is only tiny air bubbles that will clear after a short period.
Cartridge Installation/Changeout
- Place container under filter in case of drips.
- Isolate water supply and release water pressure by operating faucet lever..
- Disconnect tubing from the cartridge. Discard old cartridge.
- Remove packaging from the new cartridge. Connect tubing to either end of the cartridge. Ensure flow arrow on cartridge is in direction of waterflow.
- Restore water supply.
- Check for leaks, rectifying them, if any, before leaving the unit. After installing cartridges flush unit for 5 – 10 minutes.
Important Note
- Maximum flow rate 1.9 Lpm on filter line.
- Flow rate on cold/hot water line 0 – 5.4 Lpm.
- This system must be installed according to local plumbing codes on the cold water line.
- Replacement Cartridges: See Cartridge Changeout section.
- This system requires regular replacement of the filter cartridge to maintain proper operation. Varying chlorine, sediment, or organic substance levels may affect replacement frequency.
- Be sure to change the filter cartridge at least every 9,500 litres or 6 months which ever occurs first; or whenever you detect a change in taste, odour, or decrease in flow.
Caution: Do not use with water that is microbiologically unsafe or of unknown quality without adequate disinfection before or after the system.
Warranty
Any claim under this warranty must be made within 1 year of the date of purchase of the product.
This product is warrantied to be free of defect of material and workmanship for 1 year from date of purchase. To make a claim under the warranty, take the product and proof of purchase to place where you purchased the product, and they will lodge a Warranty Request with Puretec. 1 year warranty is 1 year parts and labour. Excludes Cartridges.
Puretec will pay your reasonable, direct expenses of claiming under this warranty. You may submit details and proof of your expense claim to place of purchase for consideration.
The warranty only applies if the product was used and/or installed in accordance with the user guide and/or installation instructions. This warranty is given in lieu of all other express or implied warranties and manufacturer shall in no circumstance be held liable for damages consequential or otherwise or delays caused or faulty manufacturing except as excluded by law.
Applicable to all above, is that the warranties need to be approved by Puretec to ensure product was not incorrectly used, installed or claimed. False and incorrect claims will be pursued at Puretec’s discretion, including chargeable inspection and labour costs incurred.
Warranty/Australia
This warranty is given by Puretec Pty Ltd, ABN 44 164 806 688, 37-43 Brodie Road, Lonsdale SA 5160, telephone no. 1300 140 140 and email at [email protected].
This warranty is provided in addition to other rights and remedies you have under law: Our goods come with guarantees which cannot be excluded under the Australian Consumer Law. You are entitled to replacement or refund for a major failure and to compensation for other reasonably foreseeable loss or damage. You are also entitled to have the goods repaired or replaced if the goods fail to be of acceptable quality and the failure does not amount to a major failure.
Warranty/New Zealand
This warranty is given by Puretec NZ LP, Reg. No 50081773, PO Box 875 Cambridge 3450 NZ, telephone no. 0800 130 140 and email at [email protected].
This warranty is provided in addition to other rights and remedies you have under law: Our goods come with guarantees which cannot be excluded under the Consumer Guarantees Act. You are entitled to replacement or refund for a major failure and to compensation for other reasonably foreseeable loss or damage. You are also entitled to have the goods repaired or replaced if the goods fail to be of acceptable quality and the failure does not amount to a major failure.
AUSTRALIA P 1300 140 140
E [email protected]
W puretec.com.au
NEW ZEALAND P 0800 130 140
E [email protected]
W puretec.co.nz
Water Connection Patterns


















