MTI INDUSTRIES 20-441-P Mini Propane Leak Detector
IMPORTANT PLEASE READ CAREFULLY
This manual contains important information. Anyone who installs this unit for use by others must leave this manual with the owner. Do not throw this out.
IMPORTANT: T his unit must be replaced within five years of its installation date. Record the installation date in the section, Owner’s Replacement Record , in this manual for future use. The replacement date indicates the date beyond which the device may no longer detect carbon monoxide or propane gas accurately.
IMPORTANT: Always follow the operation and safety instructions of the gas appliance manufacturer.
WARNING
CONNECT ONLY TO WIRING THAT CANNOT BE TURNED OFF BY A WALL SWITCH OR GROUND FAULT PROTECTOR.
IMPORTANT: Failure to follow the installation instructions may void the warranty.
SPECIAL FEATURES OF THE MTI INDUSTRIES TM GAS DETECTORS
This MTI Industries propane gas Detector is listed to ULl484 for use in recreational vehicles. Other explosive gases detected but not tested by UL 1484 include Acetone, Alcohol, Butane, Gasoline all of which you may have in your Trailer, Truck Camper, Van Camper or Motorhome.
When dangerous levels of propane gas (< 25% LEL) are detected the Detector signal will activate. A reset/mute circuit can be activated to temporally silence the Detector while you ventilate.
RECOMMENDED WIRE GAUGE ……………….. 14 GA.
POWER SUPPLY ………………………………………. 12 vDC
WIRE COLOR CODE: RED SUPPLY (+) BLACK GROUND(-)
FUSED CIRCUIT MAXIMUM ……………………. 15 AMP
WARNING LIMITATIONS OF PROPANE GAS DETECTORS
THIS UNIT will not work without power. Examples causing no power are: Cut lead wires, faulty circuit connection, a blown or missing fuse, improper supply (+) or ground (-) connections.
This Detector will only indicate the presence of propane gas at the sensor. Explosive gas may be present in other areas. Do not block or cover the alarm with any object that can prevent a gas leak from getting to the alarm.
THIS ALARM MAY NOT BE HEARD. The alarm’s loudness is designed to meet or exceed regulatory standards; however, the alarm may not be heard if alarms are located in remote locations or behind closed doors. Persons who are hard-of-hearing, have consumed alcoholic beverages, taken prescription, non-prescription or illegal drugs, may not hear the alarm.
This Detector is not a smoke or fire Alarm. It is also not a carbon monoxide alarm.
THIS ALARM IS NOT A REPLACEMENT FOR INSURANCE. Always be sure your RV is fully insured.
This Detector is not suitable for installation in hazardous areas as defined in the National Electrical Code.
HOW TO TAKE CARE OF YOUR DETECTOR
To keep your Detector in good working order, you must;
- Test the Detector weekly. (See “TEST PROCEDURE”)
- Observe the color of the indicator light on the front of the unit regularly. (See “Operating Instructions”)
- Vacuum the dust off the Detector cover monthly. (more frequently in dusty locations), using the soft brush attachment of your vacuum.
- Clean the Detector cover weekly. Hand wash using a damp cloth, or paper towel. Dry with a soft cloth.
- DO NOT SPRAY CLEANING AGENTS OR WAXES directly onto the front panel. This action may damage the sensor, cause an Alarm or cause a malfunction.
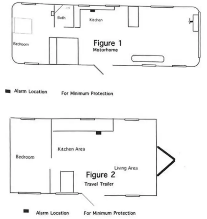
WHERE TO INSTALL GAS DETECTORS
This Detector is listed for installation in recreational vehicles. Install this Detector near sources of a potential gas leak. Some potential sources arc a furnace, water heater, stove or oven. If potential sources of a gas leak are in separated areas, MTI recommends installing a Detector in each area. See Figure 1 and 2.
CAUTION: Propane is heavier than air. For propane gas detection, install this Detector from 4 to 20 inches off the floor.
WARNING
WHERE NOT TO INSTALL THIS GAS DETECTOR. See Figure 3.
- BEHIND FURNITURE, DRAPES, IN CLOSETS OR AREAS THAT WILL BLOCK AIR FLOW TO THE DETECTOR.
- WITHIN 12 INCHES OF EXTERIOR DOORS, WINDOWS, HEATING OR RETURNS VENTS, OR OTHER DRAFTY AREAS.
- IN OR ON OUTSIDE WALLS
- TO A WALL SWITCH CONTROLLED POWER LINE, GROUND FAULT CIRCUIT OR CIRCUIT BREAKER.
- NOTE: Older homes and RVs may have little or no insulation and therefore are more drafty. Carefully consider mounting locations.
INSTALLATIO INSTRUCTIO S
Power Supply 12 vOC. Connect the Detector to a properly fused circuit. All connections must be in accordance with the National Electrical Code.
CAUTION: Only use UL or recognized permanent wire connectors. DISCONNECT POWER UNTIL THE INSTALLATION IS COMPLETE
20-441-P: REFER TO (“WHERE TO AND NOT TO INST ALL GAS DETECTOR”) Install the back plate and drill a ¼” hole for the power leads. Connect the RED (+) power lead to the fused circuit. Connect the BLACK lead to Ground (-). Slide the Detector enclosure onto the mounting plate. Reconnect the power supply.
OPERATION
WARNING: This Detector cannot detect propane gas or sound the Alarm for two minutes after it has been powered up.
POWER ON: When powered the LED color will be Green (Operational).
TEST PROCEDURE
TO REDUCE THE RISK OF PROPANE GAS EXPLOSION, T EST THIS ALARM’S OPERATION AFTER THE RV HAS BEEN l l’i STORAGE, BEFORE EACH TRIP A D AT LEAST ONCE PER WEEK DURING USE.
WARNING
WARNING: THE TEST BUTTON ONLY TESTS THE ALARM CIRCUIT 1OT THE SENSORS.
YOU MAY USE PROPA E OR BUTANE GAS TO TEST THE GAS SENSOR. Note it may take up to I 0 seconds for the alarm to sound.
IMPORTANT- If this Detector does not test properly return it immediately for repair or replacement.
ALARM SIGNAL
The Green LED will tum Red and the audible signal will activate whenever tht: levt:I of propane gas exl:eeds the Alarm threshold. The unit will continue to Alann unti l the gas clears or the Mute switch is pressed. See (Procedures Take During an Alarm and Alarm Signal
Mute sections)
ALARM SIGNAL MUTE
Press the TEST-MUTE button when the detector is in Alarm. I. The audible Alarm signal will stop, 2. the RED Alarm LED will remain on until . the gas has dropped below the Alarm point at which time t~e LED will turn Green, 3. If dangerous gas levels remain after the end of the Mute cycle (about 90 seconds) the Alarm will re-activate.
MALFUNCTION ALARM
A fault in the sensors operation or low battery voltage will activate the malfunction A_larm. The LED will tum Red Green and the sounder activate.
IMPORTANT: IN THE EVENT OF A MALFUNCTION ALARM check the batteries voltage. De. If the voltage is above 8v DC, call 1-800-383-0269. Do not Use your RV without a working Gas Detector installed.
LOW POWER OPERATION
This Detector will operate norm all y.d own to 8 vDC.
Low voltage will activate the malfunc11011 alarm. . .
End of Life Signal The Sensor has a 5 Year Service Life
All 20-441-P models include an End of life (EOL) Signal indicating the sensor has reached the end of its service life and you must replace the alarm. The signal is the LED flashing RED RED GREEN GREEN with a beep every 25-30 seconds. The EOL Signal may be reset by pushing TEST / RESET button on the alarm. This will reset the EOL Signal for a period of 72 hours (3 days) for a total of up to 30 days. After 30 days the signal cannot be reset and the alarm must be replaced. DO NOT DISCONNECT THE ALARM UNTIL YOU HAVE A REPLACEMENT ALARM AVAILABLE TO INSTALL.
PROCEDURES TOT AKE DURING AN ALARM
- TURN OFF ALL GAS APPLIANCES, (STOVE, HEATERS, FURNACE), EXTINGUISH ALL FLAMES AND SMOKING MATERIAL. EV A CU ATE THE UNIT, LEA VE DOORS AND WINDOWS OPEN.
- TURN OFF THE PROPANE TANK VALVE.
- DETERMINE AND REPAIR THE SOURCE OF THE LEAK. SEEK PROFESSIONAL HELP IF NECESSARY.
CAUTION – DO NOT RE-ENTER UNTIL THE PROBLEM IS CORRECTED.
LED and Sounder Signals
| OPERATION | AUDIBLE SIGNAL | VISUAL SIGNAL |
| NORMAL | NONE | STEADY GREEN |
| PROPANE ALARM | CONSTANT | FLASHING RED |
| ALARM MALFUNCTION | BEEP” EVERY 30 SECONDS | ALTERNATING RED/GREEN |
| END OF LIFE | BEEPS EVERY 25-30 SECONDS | FLASHING RED RED GREEN GREEN |
| WARM UP CYCLE | NO SOUND | FLASHING GREEN |
TROUBLE SHOOTING GUIDE
| PROBLEM | CAUSE AND SOLUTION |
| LED OFF | 1. FAULTY WIRE CONNECTION 2. REVERSE POLARITY 3. BAD OR MISSING FUSE 4. DEAD BATTERY |
| NO SOUND IN TEST | 1. Call 800-383-0269 |
| NO RED LED IN TEST | 1. Call 800-383-0269 |
| ALARMS AFTER WARM UP WITHOUT GAS PRESENT | 1. Contaminated Sensor. Press the Test/mute Switch and Wait 90 seconds |
| AUDIBLE ALARM WITH RED-GREEN LED NO RESET | 1. Call 800-383-0269 |
SPECIFICATIONS
POWER SUPPLY 12 vDC
OPERATIONAL VOLTAGE 8-16 vDC
CURRENT DRAW 90 mA@12vDC
OPERATIONAL TEMPERATURE -31° F to 1500 F -35° C to 66° C
RELATIVE HUMIDITY 15%to93%
AUDIBLE OUTPUT 85 dB @ 10 feet
VISUAL OPERATIONAL SIGNAL GREEN
VISUAL ALARM SIGNAL RED
VISUAL MALFUNCTION SIGNAL RED/GREEN
ALARM TRIGGER < 25% of the LEL of Propane
CASE MATERIAL ABS
CASE DIMENSIONS 3 1/2″ W x 2 1/2″ H x 1 1/2′ D
FLAMERATING 94-5VB
WARRANTY 1 Year Limited
TESTING LABORATORY Underwriters Laboratories LISTING STANDARD ANSI /UL 1484, Fourth Edition.
OWNERS REPLACEMENT RECORD
Replace this SAFE-T-ALERTTM 35 SERIES CO / GAS propane alarm 5 years after date of installation. For new RV’s enter the month and year the RV was manufactured. If you are not sure, enter the month and year you purchased the RV or enter May and the model year of the RV (example May 2015), whichever is the earlier date.
Installation Date: ________ (Exam p I e: March 20 15)
Replace by Date: ________ (5 years after Installation date – example: March 2020)
If you don’t know the installation date, replace the alarm no later than 5 years after the production date on the back of the alarm.
LIMITED PRODUCTS WARRANTY
MTI INDUSTRIES, INC.
Warrants to the original purchaser that this Detector will be free from defects of material or workmanship for a period of one (1) year. If defective in original materials or workmanship and returned, delivery costs prepaid, MTI INDUSTRIES, INC., will repair or replace this product free of charge.
LIMITS OF WARRANTY
Repair or replacement is your exclusive remedy under this limited warranty or any other warranty (including any implied warranty of merchantability for a particular purpose). Any and all implied warranties or merchantability or fitness for a particular purpose is limited to the warranty period from the original date of purchase. MTI INDUSTRIES, INC., its dealers and distributors shall in no case be responsible or in any way liable for any incidental or consequential damages for any reason. Some states do not allow the limitation or exclusion of incidental or consequential damages, or allow limitations on how long an implied warranty lasts, so the above limitations may not apply to you. This warranty gives you specific rights, and you may also have other rights that may vary from state to state.
WARRANTY RETURN POLICY
Warning-opening this product for any reason voids the warranty. There are no user serviceable parts in the case. This Detector requires an authorization number (RA) for repair or replacement. Call MTI for a RA number. Pack the Detector carefully in a padded container. Include the RA number, an explanation of the problem, the original dated sales receipt, and your return address. Send, shipping prepaid, to: MTI Industries, Inc. 31632 N. Ellis Drive Bldg. 301 Volo, IL 60073
Customer Service Number: 800-383-0269
e-Mail : [email protected]
web page www.Safe-T-Alert.com
More information https://www.caravansplus.com.au



















