EksoZeroG
Operator Manual

This manual is intended for use with the EksoZeroG for both scaffold and aerial work platform (AWP) use. For clarity, only one work platform is depicted in the drawings; the functionality and operation depicted are the same for both work platforms.
Please read all documentation before installing and using the EksoZeroG.
Warnings
![]()
WARNING: The EksoZeroG must be attached directly to the intended work platform rails without contact with other materials. never attached the EksoZeroG over materials such as mesh, netting, foam, cords, ropes, etc.
![]()
WARNING: The platform rated capacity is diminished by downward reaction force (such as drilling in an upward direction). When such reaction force is present, the force–along with the weight of the EksoZeroG and the tool being used–should be subtracted from the aerial work platform (AWP) rated capacity.
Component Weights

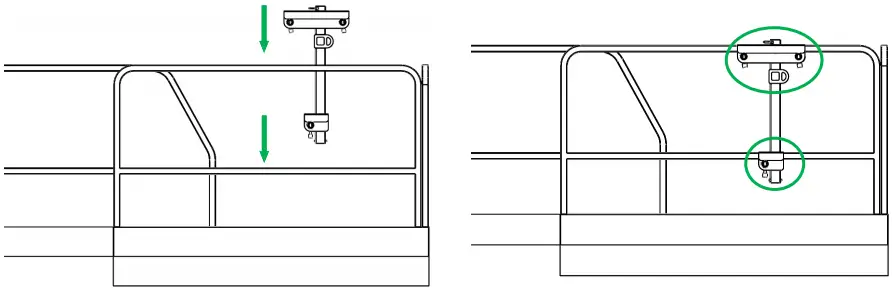
1. Always mount the EksoZeroG inside the work platform.

2. Position the mounting hooks on the upper and middle rails of the aerial scaffold platform.

3. Secure the mount to the rails by locking the three (3) sliding gate latches.

4. Remove the lock pin from the mount.

5. Insert the arm base link shaft into the arm receiver to connect arm to mount.

6. Replace the lock pin.

7. Dock the arm by securing the docking ring to the safety latch.

8. Insert tool holder and tool into docked arm’s tool holder receiver.

Rotation Lock
Pull out rotation lock pin and remove tool holder.

Slings and Pigtail Tool Holder*

Ring Gimbal Optional Tool Holder Accessory*

* Vertical/overhead work uses both a sling and a cinch strap (P/N 106893). For step-by-step instructions for slinging and tool holder attachment, see our EksoWorks YouTube channel or visit our website: www.eksobioniks.com.
Attachments Points

Maintenance


EksoZeroG User Manual – Optimized PDF
EksoZeroG User Manual – Original PDF


















