
IKEA Strömlinje LEd Worktop Lighting Instructions

IMPORTANT SAFETY INSTRUCTIONS
For indoor use only.
Regularly check the cord, the transformer and all other parts for damage. If any part is damaged the product should not be used. Important information! Keep these instructions for future use.
CAUTION!
The light source of this product is non changeable light diodes (LED).
Do not disassemble the product, as the light diodes can cause damage to the eyes.
Do not immerse in water.
Cleaning
Use a damp cloth, never a strong cleaning agent.
CAUTION
To reduce the risk of fire, electric shock, or injury to persons: Use only insulated staples or plastic ties to secure cords. Route and secure cords so that they will not be pinched or damaged when the cabinet is pushed to the wall. Position the portable cabinet light with respect to the cabinet so the lamp replacement markings can be read during relamping. Not intended for recessed installation in ceilings, or soffits. The low-voltage portable cabinet light may be installed inside or under a kitchen cabinet or other built-in furniture when:
- The low-voltage Class 2 power supply is located outside the cabinet and isnot concealed; and
- The line voltage power supply cord is not concealed or run through openings in the cabinet, walls, ceilings, or floors. This requirement does not apply to the wiring between the cabinet light and the power unit. The National Electric Code (NEC) does not permit cords to be concealed where damage to insulation may go unnoticed. To prevent fire danger, do not run cord behind walls, ceilings, soffits, or cabinets where it may be inaccessible for examination. Cords should be visually examined periodically and immediately replaced when any damage is noted.
ATTENTION:
CAUTION:
Injury to persons and damage to the lamp and/or the mounting surface may result if the lamp is pulled from the surface. To reduce the likelihood of such injury or damage, mount only on a surface that is mechanically sound.
WARNING
Deviation from the assembly instructions may result in a risk of fire or electric shock.
Use only ANSLUTA transformers. The total wattage of the lamps connected to one transformer must not exceed the maximum power stated on that transformer and never more than 30W.
This device complies with part 15 of the FCC Rules. Operation is subjected to the following two conditions:
- This device may not cause harmful interference, and
- This device must accept any interference received, including interference that may cause undesired operation.
WARNING
Changes or modifications not expressly approved by the party responsible for compliance could void the user’s authority to operate the equipment.
What’s in the box?



WARNING

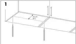
Installation

























ANSLUTA remote control is sold separately.



Read More About This Manual & Download PDF:
















