FRACARRO SWP908TS Compact 9 Inputs Switches with Active and Passive TV Gain

COMPACT 9 INPUTS SWITCHES WITH ACTIVE AND PASSIVE TV GAIN.
SAFETY WARNINGS
The product must only be installed by qualified persons, according to the local safety standards and regulations. Bracero Radioing dustier is free from all civil and criminal responsibilities due to breaches of the current legislation derived from the improper use of the product by the installer, user or third parties. The product must be used in full compliance with the instructions given in this manual in order to protect the operator against all possible injuries and the product from being damaged.
Don’t open the product case: components under dangerous voltage may be accessible when the case is opened.
Installation warnings
- The product must not be exposed to any dripping or splashing and thus it should be installed indoors and in a dry location. Humidity and condensation could damage the product. In case of condensation, wait until the product is dry before using it. Handle the product carefully. Impacts can damage the product. Leave enough space around the product to ensure sufficient ventilation.
- Excessive temperatures and/or an overheating may affect the performance and the life of the product.
- Don’t install the product above or near any heat sources, in dusty places or where it might come into contact with corrosive substances..
- In the event that the unit is fixed to the wall, use the proper screw anchors suitable to the characteristics of the fixing support. The wall and the anchoring system must be able to support at least 4 times the weight of the unit.
Warning: to avoid injury, this appliance must be secured to the wall / floor depending on the installation instructions. For “PERMANENTLY INSTALLED APPLIANCES”, an easily accessible cutting device must be added to the exterior of the appliance; for “APPLIANCES WITH A POWER PLUG”, the socket must be installed close to the appliance and easily accessible. The product must be connected to the grounding electrode of the antenna system in compliance with standard EN 60728-11. The screw provided for this purpose is marked with the symbol
It is recommended to comply with the provisions of the standard EN60728-11 and to connect this screw to the main earth node of the plant (do not connect to intermediate points).
Earth screw/Fasten connector symbol
Class II symbol
General warnings: In the event of a malfunctioning, do not try to fix the product as the guarantee would be invalidated. Only use the power supply supplied with the product. Although the information given in this manual has been prepared carefully and thoughtfully, Bracero Radio industry S. r. l. reserves the right to modify it without notice and to improve and/or modify the product described in this manual. See the website www.fracarro.com to have information relevant to the technical support and product guarantee.
The SWP9xxTS Serie belongs to the compact multi switch range with 9 inputs (8 satellite polarities and TV); it was designed to fulfil every installation requirement in small and medium distribution systems. The TV signal can be adjusted using the dip switch on the top right side of the mechanical case.
The multi switch have to be fed through his trunk lines or using the auxiliary DC input, with the optional power supply unit given PSU1215TS; there is also an LED which indicates the correct supply of the product. The series is composed by 5 products: 9 inputs with 8, 12, 16, 24 and 32 output taps; each port has a LED which shows the correct reception of the STB Disc command.
The product can be used with SWA930TS amplifier, which allows to adjust appropriately the satellite and TV gains.
The product ensures high quality in a compact size, its inputs are distinguished by different colors to make the cable connection faster and easier.
PRODUCT INSTALLATION
- Use plastic brackets for installing the switch as shown.

- Earthing screw.’

- Connect the power supply to the DC port (bottom left side) IMPORTANT: use only given PSU1215TS or PSU1340TS, an incorrect voltage (ex. 18V) will damage the product. The voltage has to be within 12V and 14V; if it is used an higher voltage (ex. 18V) the multi switch will be damaged.

USER’S INSTRUCTIONS
when the product is correctly fed, the voltage is sent to all input satellite ports, allowing to feed the connected LNBs or amplifiers
The TV signal can be adjusted using the dip switch on the top right side of the mechanic; when the TV gain is passive it is not necessary to feed the multis witch and there is also the return channel.
OPERATING LEVEL

For 30 SAT channels
For 42 TV channels
LED Power ON: if the multi switch is correctly powered the LED will be ON. If there is a short circuit in the satellite lines, the LED will be OFF; in this case is recommended to disconnect the power supply, remove the short circuit and restore the power supply, the LED will turn ON again.
Taps LED: every tap has a green LED; the LED lights up when a voltage is detected on the port; if the STB is properly connected to the multi switch, the LED will detect Disc command and it will be ON; otherwise verify the connection quality and the decoder settings.
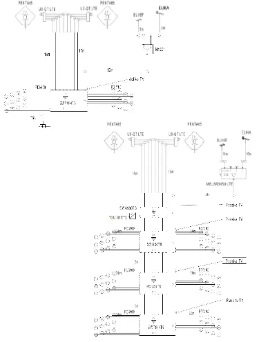
CONFIGURATION EXAMPLES


TECHNICAL SPECIFICATIONS

The technical data are nominal values and refer to an operating temperature of 25° C.
| SWP908TS | SWP912TS | SWP916TS | SWP924TS | SWP932TS | ||||
| Number of inputs | 9 | |||||||
| Number of outputs | 8 | 12 | 16 | 24 | 32 | |||
|
| Bandwidth | 950-2300MHz |
| |||||
| Gain | 2dB | 1dB | 1dB | -1dB | -2dB | |||
| Up tilt
| 4dB | |||||||
| Max Output level (IM3) | 100dBµV | |||||||
| Return loss | 10dB | |||||||
|
| Bandwidth | Active TV: 47-862MHz Passive TV: 5-862MHz |
| |||||
| Active Gain | 1dB | 0dB | -1dB | -2dB | -4dB | |||
| Passive Gain | -19dB | -20dB | -21dB | -22dB | -24dB | |||
| Max Output level (IM3) | Active TV: 95dBµV | |||||||
| GB: Return loss | 10dB | |||||||
| Isolation Output SAT-SAT | 30dB | |||||||
| LNB Control | 14V/18V – 0KHz/22KHz – Disc 2.0 | |||||||
| Tap Consumption | 50mA | |||||||
| Power supply plug | 2.1x5mm 5x12mm Internal positive, external negative | \ | ||||||
| Max LNB supply | Active TV: 1340mA @13V Passive TV:1500mA @13V | |||||||
| Dimensions | 110x 190×40 | 170x 190×40 | 170x 190×40 | 230x 190×40 | 300x 190×40 | |||
| Operating temperature | -10 to 55 °C | |||||||
Included
The technical data are nominal values and refer to an operating temperature of 25° C.
CONFORMITY TO EUROPEAN LAWS
Bracero declares that the product complies with EU Directive 2014/53 and 2011/65/UE. The full text of the EU Declaration of Conformity is available on the following website ce.fracarro.com.
USER’S INFORMATION
Disposal of Old Electrical & Electronic Equipment (Applicable in the European Union and other European countries with separate collection system
This symbol on the product or on its packaging indicates that this product shall not be treated as household waste. Instead it shall be handed over to the applicable collection point for the recycling of electrical and electronic equipment. By ensuring this product is disposed of correctly, you will help prevent potential negative consequences for the environment and human health, which could otherwise be caused by inappropriate waste handling of this product. The recycling of materials will help to conserve natural resources. For more detailed information about recycling of this product, please contact your local city office, your household waste disposal service or the shop where you purchased the product.
Guaranteed by
Bracero France S.A.S.
Unit A, Ibex House, Keller Close, Kiln Farm, Milton Keynes MK11 3LL UK – Tel: +44(0)1908 571571 – Fax: +44(0)1908 571570
www.fracarro.com – [email protected] – [email protected] – chat WhatsApp +39 335 7762667























