
WOS52ES4MW Electric Single Oven
Instruction Manual
INSTALLATION INSTRUCTIONS BUILT-IN 24” SINGLE AND DOUBLE OVEN
BUILT-IN OVEN SAFETY
Your safety and the safety of others are very important.
We have provided many important safety messages in this manual and on your appliance. Always read and obey all safety messages.
This is the safety alert symbol.
This symbol alerts you to potential hazards that can kill or hurt you and others.
All safety messages will follow the safety alert symbol and either the word “DANGER” or “WARNING.”
These words mean:
DANGER: You can be killed or seriously injured if you don’t immediately follow instructions.
WARNING: You can be killed or seriously injured if you don’t follow instructions.
All safety messages will tell you what the potential hazard is, tell you how to reduce the chance of injury, and tell you what can happen if the instructions are not followed.
IMPORTANT: Save for local electrical inspector’s use.
IMPORTANT : Conserver ces instructions a I’usage de I’inspecteur des installations electriques local.
W11508921A
INSTALLATION REQUIREMENTS
Tools and Parts
Gather the required tools and parts before starting installation.
Read and follow the instructions provided with any tools listed here.
Tools needed
- Phillips screwdriver
- Measuring tape
- Hand or electric drill (for wall cabinet installations)
- 1″ (2.5 cm) drill bit (for wall cabinet installations)
- Level
Parts needed
- UL-listed or CSA-approved conduit connector
- UL-listed wire connectors
Parts Supplied
Single Oven Parts Supplied
- Two 4 x 25 mm self-tapping screws
- Two brackets (some models only)
- 14 screws 4 x 12 mm (some models only)
- 14 washers 15 mm diameter (some models only)
- 1 aesthetic panel (metallic or glass based on the model)
Double Oven Parts Supplied
- Four 4 x 25 mm self-tapping screws
- Two brackets
- 14 screws 4 x 12 mm
- 14 washers 15 mm diameter
- 1 aesthetic panel (metallic or glass based on the model)
Check local codes. Check existing electrical supply. See “Electrical Requirements.”
It is recommended that all electrical connections be made by a licensed, qualified electrical installer.
Location Requirements
IMPORTANT: Observe all governing codes and ordinances.
- The Cabinet opening dimensions that are shown must be used. Given dimensions provide minimum clearance with the oven.
- The recessed installation area must provide a complete enclosure around the recessed portion of the oven.
- A grounded electrical supply is required. See the “Electrical Requirements” section.
- The electrical supply junction box should be located 3″ (7.6 cm) maximum below the support surface when the oven is installed in a wall cabinet. A 1″ (2.5 cm) minimum diameter hole should have been drilled in the right rear or left rear corner of the support surface to pass the appliance cable through to the junction box.
NOTE: For under-counter installation, it is recommended that the junction box be located in the adjacent right or left cabinet. If you are installing the junction box on rear wall
behind the oven, the junction box must be recessed and located in the upper or lower right or left corner of the cabinet to allow the oven to fit into the cabinet opening.
The oven support surface must be solid, level, and flush with the bottom of the cabinet cutout. The floor must be able to support an oven weight of 140 lbs (63.5 kg) or a double oven weight of 245 lbs (111.1 kg).
IMPORTANT: To avoid damage to your cabinets, check with your builder or cabinet supplier to make sure that the materials used will not discolor, delaminate or sustain both r
damage. This oven has been designed in accordance with the requirements of UL and CSA International and complies with the maximum allowable wood cabinet temperatures of 194°F (90°C).
Undercounter Installation (with the cooktop installed above): Ovens approved for this type of installation have an approval label located on the top of the oven. Refer to undercounter installation instructions for cutout dimensions and approved oven cooktop combinations (separate sheet).
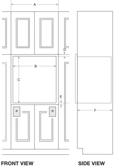
Product Dimensions
A. 23 7 /16″ (59.5 cm)
B. 23 7 /16″ (59.5 cm)
C. 18 15 /16″ (48.1 cm)
D. 18″ (45.7 cm)
E. 7/8″ (2.2 cm)
F. 217 /8″ (55.6 cm)
G. 22 3 /8″ (56.8 cm)
H. 5/8″ (1.6 cm)
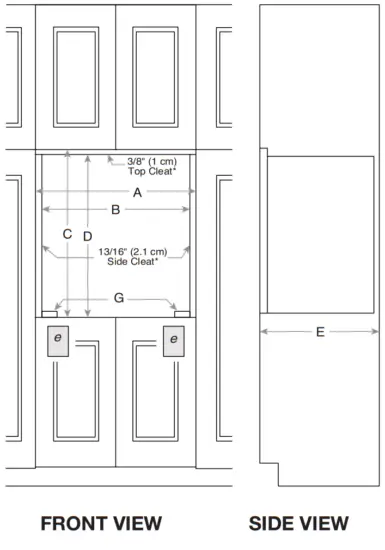
Single Oven with Trim Kit
A. 23 7/16″ (59.5 cm) overall width
B. 27 15 /16″ (71 cm) maximum overall height
Single Oven – Traditional Installation
OPENING/CLEARANCE DIMENSIONS
| in | cm | ||
| A | Width of the cabinet (minimum) | 24 | 61 |
| B | Width of cutout (minimum) | 22% | 58. |
| C | Height of cutout without trim Height of cutout with trim | 22’5/,8 27% | 58.2 70.5 |
| D | Top of the cutout to bottom of the upper cabinet door (minimum) | 1/4 | 0.65 |
| E F G | Bottom of the cutout to the top of the lower cabinet door (minimum) | 1/2 | 1. |
| Depth of cutout (minimum) | 23% | 59. | |
| The underside of the countertop to the bottom of the cutout (minimum) | 313/8 | 80. | |
| H | Top of the cutout to the underside of the countertop (minimum) | VI | 7. |
| I | Bottom of the cutout to the floor (minimum) | 37/8 | 10. |
| e | Recommended junction box location | ||

NOTE: True dimensions are in mm or cm and converted to inches.
OPENING/CLEARANCE DIMENSIONS 
| in | cm | ||
| A | Width of flush inset cutout (minimum) | 25M6 | 64. |
| B | Width of opening (minimum) | 22% | 58. |
| C | Height of flush insert cutout without the trim kit (minimum) Height of flush insert cutout with the trim kit (minimum) | 23% 28% | 60.3 71.8 |
| D | Height of opening without trim (minimum)Height of opening with trim (minimum)23% 59.3 | 27% 70.8 | |
| E | Depth of cutout (minimum) | 23% | 59. |
| F | Bottom of the cutout to floor for under counter installation (minimum) | 41/46 10.3 I | |
| G | Spacer (entire depth of cutout) Height X Width 3/8″ x 2′ (1 cm X 5.1 cm) | ||
| e | Recommended junction box location | ||

NOTE: True dimensions are in mm or cm and converted to inches.
Double Oven Cabinet Dimensions – Traditional Installation
Double Oven Installed in Cabinet
A. 24″ (61 cm) minimum cabinet width
B. 1″ (2.5 cm) top of the cutout to bottom of upper cabinet door
C. 14 3 /4″ (37.5 cm) bottom of the cutout to floor
D. 22 5 /8″ (57.5 mm) cutout width
E. 11/2″ (3.8 cm) minimum bottom of cutout to top of cabinet door
F. 49 3 /4″ (126.4 cm) minimum cutout height
Double Oven with Trim Kit
A. 23 7/16″ (59.5 cm)
B. 50 1 /4″ (127.7 cm)
C. 18 15 /16″ (48.1 cm)
D. 18″ (45.7 cm)
E. 7/8″ (2.2 cm)
F. 21 7 /8″ (55.6 cm)
G. 22 3 /8″ (56.8 cm)
H. 5/8″ (1.6 cm)
Double Oven Cabinet Dimensions – Flush Installation
Double Oven Installed in Cabinet

Electrical Requirements
If codes permit and a separate ground wire is used, it is recommended that a qualified electrical installer determine that the ground path and the wire gauge are in accordance with local codes.
Check with a qualified electrical installer if you are not sure the oven is properly grounded.
This oven must be connected to a grounded metal, permanent wiring system.
Be sure that the electrical connection and wire size are adequate and in conformance with the National Electrical Code, ANSI/NFPA 70 — latest edition or CSA Standards C22. 1-94, Canadian Electrical Code, Part 1 and C22.2 No. O-M91 — latest edition, and all local codes and ordinances.
A copy of the above code standards can be obtained from:
National Fire Protection Association
1 Batterymarch ParkQuincy, MA 02169-7471
CSA International
8501 East Pleasant Valley Road
Cleveland, OH 44131-5575
Electrical Connection
To properly install your oven, you must determine the type of electrical connection you will be using and follow the instructions provided for it here.
■ The oven must be connected to the proper electrical voltage and frequency as specified on the model/serial number rating plate. The model/serial number rating plate is on the right vertical part of the oven frame. See the following illustration.
- Models rated 3.6 kW and below at 208/240 V require a separate 15-20 A circuit.
- A circuit breaker is recommended.
- Connect directly to the circuit breaker box (or fused disconnect) through flexible, armored or nonmetallic sheathed, copper cable (with grounding wire). See the “Make Electrical Connection” section.
- A UL-Listed or CSA Approved flexible conduit from the oven should be connected directly to the junction box.
- Fuse both sides of the line.
- Do not cut the conduit. The length of a conduit provided is for the serviceability of the oven.
- A UL-listed or CSA-approved conduit connector must be provided.
- If the house has aluminum wiring, follow the procedure below:
Connect a section of solid copper wire to the pigtail leads. Connect the aluminum wiring using special connectors and/or tools designed and UL listed for joining copper to aluminum.
Follow the electrical connector manufacturer’s recommended procedure. Aluminum/copper connection must conform with local codes and industry accepted wiring practices.
INSTALLATION INSTRUCTIONS
Prepare Built-In Oven
1. Decide on the final location for the oven. Avoid drilling or cutting into house wiring during installation.
WARNING
Excessive Weight Hazard
- Use two or more people to move and install the oven. Failure to do so can result in back or another injury.
- To avoid floor damage, set the oven onto cardboard prior to installation. Do not use the handle or any portion of the front frame for lifting.
- Remove the shipping materials and tape from the oven.
- Remove the hardware package from inside the bag containing the literature.
- Remove and set aside racks, oven bottom trim, and other parts from inside the oven.
- Move over and cardboard close to the oven’s final location.
- Remove the oven door.
Remove Oven Door(s)
IMPORTANT: Use both hands to remove oven doors.
- Open the oven door all the way.
- Flip-up the hinge latch on each side.
Close the oven door as far as it will shut.- Lift the oven door while holding both sides. Continue to push the oven door closed and pull it away from the oven door frame.

- Repeat steps for double oven installations.
Make Electrical Connection
WARNING
Electrical Shock Hazard
Disconnect power before servicing.
Use 12 gauge copper wire.
Electrically ground oven.
Failure to follow these instructions can result in death, fire, or electrical shock.
This oven is manufactured with a neutral (white) power supply wire and a cabinet-connected green (or bare) ground wire twisted together.
- Disconnect power.
- Feed the flexible conduit from the oven through the opening in the cabinet.
- Remove junction box cover if it is present.
- Install a UL listed or CSA-approved conduit connector to the junction box.

A. UL listed or CSA approved conduit connector
5. Route the flexible conduit from the oven to the junction box through a UL listed or CSA-approved conduit connector.
6. Tighten screws on conduit connector.
4-Wire Cable from Home Power Supply
IMPORTANT: Use the 4-wire cable from home power supply in the U.S. where local codes do not allow grounding through neutral, New Branch circuit installations (1996 NEC), mobile homes and recreational vehicles, new construction, and in Canada.

| A. Cable from the home power supply B. Black wires C. Red wires D. 4-wire flexible conduit from oven E. Junction box | F. White wires G. UL listed wire connectors H. Green (or bare) ground wires I. UL listed or CSA approved conduit connector |
- Connect the 2 black wires (B) together using a UL-listed wire connector.
- Connect the 2 red wires (C) together using a UL-listed wire connector.
- Untwist white wire from green (or bare) ground wire coming from the oven.
- Connect the 2 white wires (F) together using a UL-listed wire connector.
- Connect the green (or bare) ground wire (H) from the oven cable to the green (or bare) ground wire (in the junction box) using a UL-listed wire connector.
- Install junction box cover.
Single Oven Installation
Optional Trim Kit Installation:
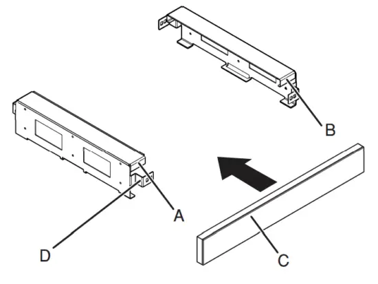
Trim Kit description:
A. Left bracket
B. Right bracket
C. Front aesthetic panel
D. Front flange of the bracket
3. For standard installation align the front flange of both left and right brackets to the front cabinet, using a flat surface as a tool.
For Flush installation: align the front aesthetic panel to the cabinet and place the bracket frontal flange against the rear side of the aesthetic panel.
4. Be sure to fix the two brackets in a horizontal position aligned to each other.
5. Once the bracket is aligned, screw the bracket to the sidewall with twelve of the 4 x 12 mm screws.

6. Screw the aesthetic panel to the front bracket flange using the remaining two 4 x 12 mm screws.
Complete Single Oven Installation
WARNING
Excessive Weight Hazard
Use two or more people to move and install the oven. Failure to do so can result in back or another injury.
- Using two or more people, lift the oven by the side handles located on the right and left side of the oven. Gently insert into the cabinet cutout. If using the trim kit, slide oven on top of the left and right brackets.
Push against the seal area of the front frame to push the oven into the cabinet.
- Install the bottom oven trim using the two 3.5 x 9.5 mm self-tapping screws provided.
- Securely fasten oven to the cabinet using the 4 x 25 mm self-tapping screws provided (1 on each side). Insert the screws through holes in mounting rails. Do not overtighten screws.
Install the oven racks.- Replace the oven door by inserting both hanger arms into the door.

- Open the oven door. You should hear a “click” as the door is set into place.
- Move the hinge levers back to the locked position.
- Check that the door is free to open and close. If it is not, repeat the oven door removal process and installation procedures. See the “Remove Oven Door” section.
- Reconnect power.
- On some models, the display panel will light briefly, and “PF” should appear in the display.
- If the display panel does not light, please reference the “Assistance or Service” section of the Use and Care Guide or contact the dealer from whom you purchased your oven.
Double Oven Installation
Trim Kit description:
A. Left bracket
B. Right bracket
C. Front aesthetic panel
D. Front flange of the bracket
NOTES:
- These instructions refer to “Upper Oven” and “Lower Oven”. The Lower Oven is identified by a label on top of the product.
- The connection will be made for both units to existing bare wire (Red to Red, Black to Black, etc) simultaneously.
- The junction box is not a supplied part. A Standard 4″ x 4″ box can be used.
- The product is equipped with an electrical conduit that allows placing the Junction Box in the area measuring 1304 mm from the bottom of the cabinet to the top of the
electrical box, across the entire width of the cabinet - The electrician may be required to locate the junction box out of the defined installation area.

WARNING
Excessive Weight Hazard
Use two or more people to move and install the oven. Failure to do so can result in back or another injury.
- Using two or more people, lift the lower oven by the side handles located on the right and left sides of the oven. Gently insert into the cabinet cutout.
- Place the left bracket on top of the lower oven and against the left cabinet side.
- Place the right bracket on top of the lower oven and against the right cabinet side.
NOTE: For bracket installation, the maximum interior cabinet width is 23 11 /16″ (60.1 cm).
A. Front flange of the bracket of Double Oven - For a standard installation, align the front flange of both left and right brackets to the front cabinet, using a flat surface.
For Flush installation align the front aesthetic panel to the cabinet and place the bracket frontal flange against the rear side of the aesthetic panel - Assure to fix the two brackets in a horizontal position and align each other.
- Once the bracket is aligned, screw the bracket to the sidewall with twelve of the 4 x 12 mm screws.

- Screw the aesthetic panel to the front bracket flange using the remaining two 4 x 12 mm screws

- Using two or more people, gently remove the lower oven outside the cabinet using the handles located on the right and left side of the oven.
Using two or more people, lift the upper oven by the side handles located on the right and left sides of the oven. Gently insert into the cabinet cutout, sliding it on top of the left and right brackets.
- Push against the seal area of the front frame to push the oven into the cabinet.
Using two or more people, gently move the lower oven by the side handles located on the right and left sides of the oven and place it on the floor near the cabinet opening.- Feed conduit from the Upper unit into the electrical box.
- Feed conduit from the Lower unit into an electrical box.
- Go to the “Make Electrical Connection” section on page 8 and follow the instructions listed there. Proceed to the “Complete Double Oven Installation” section once electrical connections have been made.

Complete Double Oven Installation
WARNING
Excessive Weight Hazard
Use two or more people to move and install the oven.
Failure to do so can result in back or another injury.
- Using two or more people, lift the lower oven by the side handles located on the right and left sides of the oven. Gently insert into the cabinet cutout.
- Push against the seal area of the front frame to push the oven into the cabinet.
Install the bottom oven trim using the two 3.5 x 9.5 mm self-tapping screws provided.
Securely fasten the oven to the cabinet using the two 4 x 25 mm self-tapping screws provided. Insert the screws through holes in mounting rails. Do not overtighten screws.
- Install the oven racks.
- Replace the oven door by inserting both hanger arms into the door.

- Open the oven door. You should hear a “click” as the door is set into place.
- Move the hinge levers back to the locked position.
- Check that the door is free to open and close. If it is not, repeat the oven door removal process and installation procedures. See the “Remove Oven Door” section.
- Reconnect power.
- On some models, the display panel will light briefly, and “PF” should appear in the display.
- If the display panel does not light, please reference the “Assistance or Service” section of the Use and Care Guide or contact the dealer from whom you purchased your oven.
Final Installation Checklist
- Check that all parts are now installed. If there is an extra part, go back through the steps to see which step was skipped.
- Check that you have all of your tools.
- Dispose of/recycle all packaging materials.
- For oven use and cleaning, read the Use and Care Guide.
Check Operation
NOTE: Refer to the “Control Panel” and “Oven Functions” sections of the Use and Care Guide for steps 1 through 5.
- Press the On/Off keypad to turn the power On.
- When the oven is turned on for the first time, you will have to select the desired language and set the correct time.
- Select “Traditional” and then “Conventional.”
- Set the temperature.
- Press START.
If oven(s) does not operate, check the following:
■ The household fuse is intact and tight, or the circuit breaker has not tripped.
■ The electrical supply is connected.
■ See the “Troubleshooting” section in the Use and Care Guide. - When the oven has been on for 5 minutes, feel for heat.
If you do not feel the heat, turn off the oven and contact a qualified technician. - To set oven functions, refer to the Use and Care Guide.
If you need Assistance or Service:
Please reference the “Assistance or Service” section of the Use and Care Guide, or contact the dealer from whom you purchased your built-in oven.
®/™ ©2021 Whirlpool. All rights reserved. Used under license in Canada.
Tous droits réservés. Utilisé sous licence au Canada.
W11508921A
Close the oven door as far as it will shut.
Push against the seal area of the front frame to push the oven into the cabinet.
Install the oven racks.


A. Front flange of the bracket of Double Oven
For Flush installation align the front aesthetic panel to the cabinet and place the bracket frontal flange against the rear side of the aesthetic panel

Using two or more people, lift the upper oven by the side handles located on the right and left sides of the oven. Gently insert into the cabinet cutout, sliding it on top of the left and right brackets.
Using two or more people, gently move the lower oven by the side handles located on the right and left sides of the oven and place it on the floor near the cabinet opening.
Install the bottom oven trim using the two 3.5 x 9.5 mm self-tapping screws provided.
















