
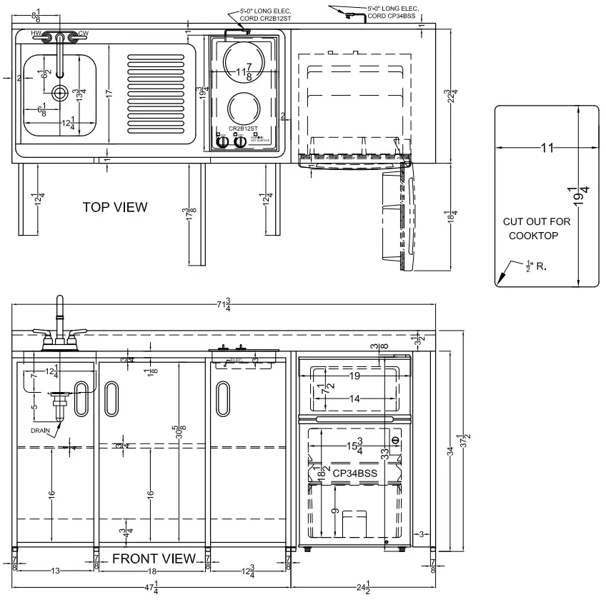
MODEL CK72ADASINK
TYPE. COMBO KITCHEN
SCALE: 1 1/4″ = l’-0″
DATE: MAY/07/2021
FELIX STORCH,INC
www.summitappllance.com
718-893-3900


MODEL CK72ADASINK
TYPE. COMBO KITCHEN
SCALE: 1 1/4″ = l’-0″
DATE: MAY/07/2021
FELIX STORCH,INC
www.summitappllance.com
718-893-3900

Download manual
Here you can download full pdf version of manual, it may contain additional safety instructions, warranty information, FCC rules, etc.