
021092 Water Heater
Instruction Manual
Jula AB reserves the right to make changes to the product. Jula AB claims copyright on this documentation. It is not allowed to modify or alter this document in any way and the manual shall be printed and used as it is in relation to the product. For the latest version of operating instructions, refer to the Jula website.


SAFETY INSTRUCTIONS
- This product can be used by children from 8 years and upwards and by persons with physical, sensorial or mental disabilities, or persons who lack experience or knowledge if they are supervised or receive instructions concerning the safe use of the product and understand the risks involved with its use. Do not allow children to play with the product. Do not allow children to clean or maintain the product without supervision.
- Keep children under supervision to make sure they do not play with the product.
- Do not allow children to clean or maintain the product without supervision.
- Incorrect installation and/or connection of the product can result in a risk of personal or fatal injury. Incorrect installation and/ or connection of the product can result in a risk of material damage, including but not limited to explosion, fire, and/or water damage.
- Installation, electrical connection, connection to the water pipe, and commissioning should be carried out by authorized electrician and personnel with authorization to carry out installation and/or connection of products in this category, and in compliance with current legislation.
- It is not permitted to modify the product and/or electrical circuits. Modification refers to dismantling and/or bypassing elements included in the product on delivery, installation and/or connection of elements not included in the product on delivery, and replacement of elements included in the product on delivery with elements that have not been approved by the manufacturer.
SYMBOLS
| Read the instructions. | |
![]() | Approved in accordance with the relevant directives. |
![]() | Recycle discarded product in accordance with local regulations. |
TECHNICAL DATA
| Voltage | 230 V ~ 50 Hz |
| Connection | 1/2″ |
| Working pressure | 8 bar |
| Volume | 30 l |
| Output | 1200 W |
| Cord length | 1.1 m |
| Energy class (A+ – F) | C |
| Working temperature | 10 – 70°C |
| Size | H50 x Ø35 cm |
| Weight | 11,94 kg |
DESCRIPTION
Hot water heater with large capacity and status indicator. Glass ceramic water tank and anode protection against corrosion for long life span. With stainless steel pipe for the hot water and safety valve. For wall mounting with pipe connection in the bottom.
COMPONENT PARTS
- The product consists of a steel container (water tank) and a plastic casing, with thermal insulation in between, plus two pipes with G 1/2″ thread for the cold water inlet (marked with a blue ring) and hot water outlet (marked with red ring). The water tank is made of steel with a glass ceramic coating that provides protection from corrosion.
Thermostat
On the flange, there is an electric heater element and thermostat. Products with glass ceramic coating have a sacrificial magnesium anode. The electric heating element heats the water in the tank and is controlled by the thermostat, which automatically maintains the set temperature. The thermostat has built-in overheating protection that switches off the power to the heater element if the temperature of the water is too hot.
Safety valve
A shut-off valve with a safety valve ensures that the product is not emptied if the supply of cold water is stopped. The valve protects the product from overpressure when the water expands during the heating, by relieving the pressure through the outlet. It is normal for water to drip from the safety valve outlet during operation. This must be taken into consideration when the product is installed.
NOTE:
- The shut-off valve with a safety valve does not protect the product if the pressure in the water pipe exceeds the specified permitted pressure for the product.
- The shut-off valve with the safety valve must be cleaned and checked at regular intervals to ensure that the product is working properly and safely. The valve must not be clogged or blocked. Any scale must be removed.
INSTALLATION
WARNING!
- Incorrect installation and/or connection of the product can result in a risk of personal or fatal injury. Incorrect installation and/or connection of the product can result in a risk of material damage, including but not limited to the explosion, fire and/or water damage.
- Installation, electrical connection, connection to the water pipe, and commissioning should be carried out by authorized electrician and personnel with authorization to carry out installation and/or connection of products in this category, and in compliance with current legislation.
- The product must only be installed in areas and properties with normal fire safety.
- If the product is installed in a bathroom it must be protected from spraying water from a shower or other source.
- The product is only intended to be used in enclosed and heated areas where the temperature does not fall below 4°C.
- The product is not intended for prolonged continuous use.
- To reduce the loss of heat from pipes it is recommended to place the product as near to the tap point as possible. The place for installation must be selected so that it cannot be exposed to spraying water from a shower or other source.
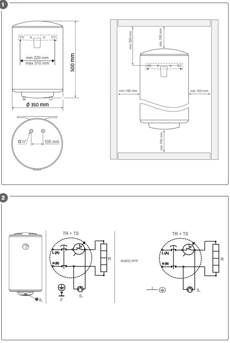
- The product must be installed over the top point with the outlet pipe and inlet pipe turned down to the floor. The product is fastened firmly to the wall with the two supplied hooks (minimum diameter of 4 mm). The fasteners permit a gap of 96 to 114 mm between the hooks.
FIG. 1
CONNECTION
- The product is intended to supply hot water to households with a piping system with a pressure of less than 6 bar.
- The shut-off valve with a safety valve must be fitted in the supply pipe as per the flow arrow on the valve, which shows the direction of the incoming flow. No other shut-off taps must be fitted between the shut-off valve with the safety valve and the product.
Exception: If local regulations or standards require the use of another safety valve or safety mechanism (in agreement with EN 1487 or EN 1489), this must be acquired separately. For mechanisms that function according to 1487, the specified pressure must not exceed 7 bar. Other safety valves should be calibrated to a pressure that is 1 bar less than what is specified on the product type plate. In such cases, the supplied safety valve cannot be used. - The safety valve and the pipe between the valve and the product must be protected from freezing. When emptying with a hose the free end of the hose should always be open to the atmosphere (not immersed in fluid). The hose must also be protected from freezing.
- The product must only be installed in areas where the floor has an approved sealing layer and where it is possible to empty the pipes, otherwise, there is a risk of material damage in the event of a fault in the hot water system. Do not put non-water-resistant material or items under the product. If the product is installed in an area without an approved sealing layer a collector trough that runs to a drain should be placed under the product.
- It is normal for water to drip from the safety valve outlet during operation. The safety valve should be open to the atmosphere. Take steps to collect and lead water away from any leakage, otherwise, there is a risk of water damage.
- The product must be emptied if there is a risk of the ambient temperature falling below 0°C. The power supply to the product must be disconnected before the product is emptied of water.
Connection to water pipe
- Inlet pipe.
- Safety valve (8 bar).
- Pressure relief valve (if the water pressure exceeds 6 bar).
- Shut-off valve.
- Funnel-shaped outlet to drain.
- Hose.
FIG. 3
NOTE:
Collector trough sold separately.
Colour marking Note the color markings (rings) on the pipes when connecting to the water pipe.
- BLUE for the water inlet/cold water.
- RED for water outlet/hot water.
Shut-off valve
The shut-off valve with the safety valve supplied with the product must be installed. The shut-off valve with a safety valve must be installed in the supply pipe as per the flow arrow on the valve.
Filling the product
Filling the product is filled with water by opening the tap in the supply pipe and the mixer’s hot water tap. The product is filled with water when the flow of water from the mixer tap is continuous. The mixer tap can then be closed.
NOTE:
- It is not permitted to use any other type of shut-off device between the shut-off valve with the safety valve and the.
- The use of other shut-off valves with safety valves can cause the product to malfunction. Any such devices must therefore be removed.
- It is not permitted to install the shut-off valve with a safety valve on a thread longer than 10 mm, because this can damage the valve and can result in the use of the product causing a risk of personal injury and/or material damage.
- The safety valve and the pipe between the valve and the product must be protected from freezing. When emptying with a hose the free end of the hose should always be open to the atmosphere (not immersed in fluid). The hose must also be protected from freezing.
- A pressure relief valve must be fitted if the pressure in the water pipe is higher than the specified value for the product, otherwise, the product will not work properly. The manufacturer cannot accept liability for any damages resulting from improper use.
Emptying the product
NOTE:
- The power supply to the product must be disconnected before the product is emptied of water.
- Take suitable precautions to avoid water damage when emptying the product.
- Turn off the water supply.
- Open the hot water tap can on the mixer.
- The emptying tap (7) must be opened for the water in the tank to run out. If there is no such tap on the pipe the water can be taken out directly from the inlet pipe on the tank after it is disconnected from the water pipe.
FIG. 3
MAINS CONNECTION
- Only connect the product to a correctly earthed power point.
- A hissing noise may be heard when the water is heating. This is normal. The noise can increase in time as a result of scale. Remove scale regularly to avoid high level of noise.
TR = Thermostat
TS = Overheating protection
IL = Status light R = Heater element.FIG. 2
WARNING!
A damaged cord or plug must be replaced by an authorized service center or qualified person to ensure safe use.
USE
Check that the product is full of water before switching on the power. The product starts when the plug is plugged into the mains.
- Status light
- Control dial for temperature
The status light (1) goes on when the product is in heating mode. The status light (1) goes off when the water reaches the set temperature to indicate that the product is not heating. The required temperature can be set with the control dial (2) on the control panel.FIG. 4
OVERHEATING PROTECTION
The product has overheating protection that switches off the power to the product if the temperature of the water is too hot.
WARNING! If the overheating protection trips it will not reset automatically and the product will not work. Contact an authorized service center.
MAINTENANCE
The manufacturer cannot accept liability for any damage resulting from failure to follow these instructions.
CLEANING THE OUTSIDE
Clean the product when necessary with a damp cloth. Do not use abrasive detergent or solvent on the product. Do not spray water or any other liquid on the product.
SAFETY VALVE
The shut-off valve with the safety valve must be cleaned and checked at regular intervals to ensure that the product is working properly and safely. The valve must not be clogged or blocked. Any scale must be removed.
REGULAR MAINTENANCE
Scale forms in time during normal use on the surface of the heater element. Such deposits reduce the transfer of heat between the heater element and the water. A higher surface temperature on the heater element is required to heat the water. The thermostat will switch on and off more often. The overheating protection can trip. The manufacturer recommends preventive maintenance every other year by an authorized service center to avoid such problems. Such preventive maintenance should include cleaning and checking the sacrificial anode. The sacrificial anode should be replaced when necessary.
SACRIFICIAL MAGNESIUM ANODE FOR CORROSION PROTECTION
The magnesium sacrificial anode protects the inside of the water tank from corrosion. The anode becomes consumed in time and must be replaced at regular intervals. The manufacturer recommends that qualified personnel check the anode at regular intervals and replace it when necessary for best results and life span. This check should be included in the regular preventive maintenance of the product. Contact an authorized service center for replacement anodes.
2022-04-20
WWW.JULA.COM
© JULA AB
JULA AB
BOX 363, 532 24 SKARA, SWEDEN





















