CHAPIN 97361 15 Gallon Mixes On Exit ATV Sprayer 
WARNING
Carefully Read These Instructions Before Use
WARNING
IMPROPER USE OR FAILURE TO FOLLOW INSTRUCTIONS CAN RESULT IN EXPLOSIVE FAILURE CAUSING SERIOUS EYE OR OTHER INJURY.
FOR SAFE USE OF THIS PRODUCT YOU MUST READ AND FOLLOW ALL INSTRUCTIONS. DO NOT LEAVE SPRAYER IN THE HOT SUN. HEAT CAN CAUSE PRESSURE BUILD-UP RESULTING IN POSSIBLE EXPLOSION. DO NOT STORE OR LEAVE SOLUTION IN TANK AFTER USE. ALWAYS WEAR GOGGLES, GLOVES, LONG SLEEVE SHIRT, LONG PANTS, AND FULL FOOT PROTECTION WHEN SPRAYING.
DO NOT ATTEMPT TO MODIFY THIS SPRAYER. REPLACE PARTS ONLY WITH THE MANUFACTURER’S ORIGINAL PARTS.
NEVER SPRAY FLAMMABLE, CAUSTIC, ACIDIC, CHLORINE, BLEACH, PETROLEUM-BASED OR OTHER CORROSIVE SOLUTIONS OR HEAT, PRESSURE, OR GAS-PRODUCING CHEMICALS. ALWAYS READ AND FOLLOW THE CHEMICAL MANUFACTURER’S INSTRUCTIONS BEFORE USE WITH THIS SPRAYER AS SOME CHEMICALS MAY BE HAZARDOUS WHEN USED WITH THIS SPRAYER.
ENSURE THE WIRING HARNESS DOES NOT BECOME PINCHED OR DAMAGED IN ANY WAY. THIS MAY DAMAGE THE PUMP OR CAUSE THE WIRING HARNESS TO OVERHEAT, RESULTING IN MELTDOWN OR FIRE.
SOME CHEMICALS WILL DAMAGE THE PUMP VALVES IF ALLOWED
TO SOAK UNTREATED FOR A LONG PERIOD OF TIME. ALWAYS FLUSH
THE PUMP WITH WATER AFTER USE. DO NOT ALLOW CHEMICALS
TO SIT IN PUMP FOR EXTENDED TIMES OF IDLENESS. FOLLOW THE CHEMICAL MANUFACTURER’S INSTRUCTIONS ON THE DISPOSAL OF ALL WASTEWATER FROM THE SPRAYER.
USE WATER-BASED CHEMICALS ONLY.
CAUTION
THIS SPRAYER HAS BEEN DESIGNED TO BE ATTACHED TO STABLE SURFACES.
CONTENTS- NOT TO SCALE
SPRAYER HARDWARE
SPRAYER COMPONENTS
NOTE: not all components shown may be needed on your model.
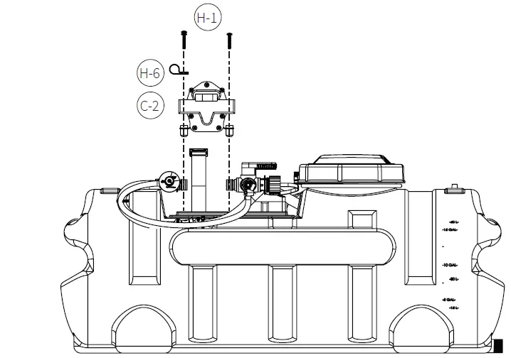
ASSEMBLE PUMP TO TANK
Using H-1 screws, fasten pump (C-2) to faceplate with loop clamp (H-6) inserted between pump and front left screw. NOTE: Do not over-tighten screws.
INSTALL EXTERNAL BYPASS AND FLOW DIRECTOR VALVE
Install external bypass (C-3) and flow director valve (C-4) into pump quick release ports; engage quick release locks. Note: to ensure a good seal, a tight fit is used; significant hand force may be necessary to install bypass fittings.
INSTALL WAND CLIPS
Install wand clip (H-4) and wand clip from nylon strap (as shown above) with screws (H-2). Note: The wand clip shown to the right can be found hanging from the nylon strap.
ATTACH HOSE TO DIVERTING VALVE
Guide wand hose (C-1) through loop clamp (H-6) and attach hose (C-1) to diverting valve (C-4) with hose clamp (H-3). Tighten clamp (H-3).
WAND ASSEMBLY
Make sure the o-ring is installed on the end of the wand. Insert the wand into shut-off valve. Turn and tighten the retaining nut clock-wise onto the shut-off valve. 
ATTACH CHEMICAL CONCENTRATE TANK
Before chemical tank installation, attach supplied rachet straps to strap slots on tank. Securely fasten assembly to ATV. NOTE: not all models included ratchet straps.
Attach the mix valve’s suction tubing (1) to the chemical concentrate tank’s quick release port (2). Secure chemical concentrate tank with nylon webbing (3).
INSTALL DRAIN CAP
Install cap lanyard around drain plug. Screw drain cap (H-5) on drain plug.
SPRAYER COMPONENTS
- MIX SETTING VALVE
The mix setting valve allows the user to set the desired chemical mix ratio. It is calibrated to a specific gravity of water. See setting chart for each settings mix value in oz./gal. Due to chemical viscosity, actual mix ratios may vary. Refer to chemical’s recommended mix ratios when choosing what setting to use.
Note:- Use water based chemicals only.
- When not spraying set mix ratio to zero.
- WAND / BOOM SELECTOR VALVE
The wand/boom selector valve allows the user to select the flow to either be diverted to the wand assembly or the boom. - BYPASS / PRESSURE VALVE
The bypass/pressure valve allows the user to adjust the wand’s pressure. During low flow applications, it allows the flow to be diverted to eliminate pump cycling.
How to use: Start with the valve set to “Bypass off”. When the pump begins to cycle; between on and off, turn the valve slowly counterclockwise until the cycling stops. The valve setting should fall in the “optimal” flow region.
Note:- If the bypass is used beyond the “optimal flow” region the pump may not shut off as the bypass doesn’t allow it to build enough pressure to turn the pump off.
- If too much air is introduced into the system from changing chemicals or running the water or chemical tanks dry it may be necessary to switch the bypass valve to “Bypass off/Prime” in order to prime the unit.
- CHEMICAL CONCENTRATE TANK
The chemical concentrate tank is where the chemical concentrate is held. To install the tank, insert the tank onto the faceplate’s alignment feet and secure with the nylon webbing and snap latch. - CHEMICAL TANK QUICK-RELEASE COUPLING
The chemical tank quick-release coupling allows the user to quickly and cleanly change out chemical tanks. When disengaged the tank’s quick-release automatically closes to stop spillage. To use, align the male locking pins with the female nut’s slots. Press the female nut over the male nut and turn clockwise to lock in place. To disengage the quick-release coupling, slightly push the female nut in, turn counterclockwise, and remove.
OPERATING INSTRUCTIONS
- Fill both water and chemical tanks.
- Set Mix Ratio Valve to “0” (1) by turning the adjustment wheel.
- Set Wand/Boom selector valve to “Wand” (2).
- Set Bypass to “Bypass Off/Prime” (3) by turning the selector knob.
- Turn the system on by pressing the wiring harness in-line switch to “on” (not shown).
- Prime: Use the wand spray until all air has been purged from the system. If the bypass was set to “off” the pump will begin to cycle on and off.
- Adjust bypass until the pump stops cycling. Do not bypass more than needed as this will cause the pump to continuously run.
- Set the desired mix ratio setting and begin spraying.
- Cleaning between chemical types: While spraying on mix setting 7 disconnects the concentrate tank’s quick release. This allows chemicals in the line to quickly be flushed. If necessary, flush with water by submerging the chemical line into the water source. Once adequately flushed the new concentrate tank may be installed. With the mixing valve set to 7 and the bypass set to “Bypass off/Prime” prime the system. Once primed, re-adjust the bypass valve and you’re ready to spray.
| SETTING GUIDE | |
| SETTING OUNCE PER GALLON | |
| 0 | 0 oz/gal |
| 1 | 1 oz/gal |
| 2 | 2 oz/gal |
| 3 | 3 oz/gal |
| 4 | 4 oz/gal |
| 5 | 5 oz/gal |
| 6 | 10 oz/gal |
| 7 | 15 oz/gal |
Chemical mix ratios can easily be adjusted in between or lower than the listed 0-7 settings by pre-diluting your concentrate.
For example, if you wish to spray at .5 oz/gal, simply mix your chemical 50:50 with clean water before placing it in the concentrate tank.
Divide the desired rate by the closest higher rate
(oz. /gal) value from the above guide to determine the % of chemicals in the concentrate tank.
CAUTION
ALWAYS FOLLOW THE CHEMICAL MANUFACTURER’S INSTRUCTIONS FOR PROPER USE, STORAGE AND DISPOSAL.
ALWAYS FOLLOW STATE/LOCAL CODES FOR PROPER HANDLING, STORAGE AND DISPOSAL OF CHEMICAL.
TROUBLESHOOTING
| CONDITION | CHECK |
| Pump won’t start | Correct voltage (±10%) and electrical connections |
| Fuse or breaker | |
| Pressure switch operation | |
| Rectifer or motor for open or grounded circuit | |
| Locked drive assembly | |
| Correct voltage at switch | |
| Pump will not prime (No discharge with motor running) | Debris in strainer |
| Restriction (kinks) in inlet / outlet tubes | |
| Debris / swelling in inlet / outlet valves | |
| Bypass is not in “off” position | |
| Pump will not shut-off (output line closed and no leaks) | Air trapped in outlet line or pump head |
| Correct voltage to pump | |
| Debris in pump inlet / outlet valves | |
| Loose drive assembly or pump head screws | |
| Pressure switch operations / adjustments | |
| Leaks from pump head or switch | Loose screws at switch or pump head |
| Switch diaphragm ruptured or pinched | |
| Punctured diaphragm if fluid is present | |
| Pump output spits and sputters | All hose clamps are adequately tight |
| No holes in tubing | |
| There is adequate liquid in both the water and chemical tank | |
| Adjust external bypass to optimize spray pattern | |
| The pump makes noise, but no output | Prime with a garden hose by removing intake hose and flood with water while pump is running until water starts flowing (this may take up to 15 minutes to create suction). |
| To better understand the priming process see video at: https://www.youtube.com/watch?v=lrNeAvNL7Fs or search “Priming the Pump on Your Chapin ATV Sprayer” at Chapin International’s YouTube page. |
BREAKDOWN & PARTS LIST
| REF NO. PART NO. QTY DESCRIPTION | |||
| 1 | 6-9138 | 1 | Pump Assembly, 2.5 GPM |
| 2 | 6-9202 | 1 | Pump Hardware Kit |
| 3 | 6-8060 | 1 | Tank Assembly, 1.33 Gallon |
| 3 | 6-8061 | 1 | Tank Assembly, 2.0 Gallon |
| 4 | 6-8272 | 1 | Faceplate, 15 Gallon |
| 4 | 6-8273 | 1 | Faceplate, 25 Gallon |
| 5 | 6-8219 | 1 | Extension Assembly |
| 6 | 6-8138 | 1 | Shut-Off Assembly, cushion grip |
| 7 | 6-8093 | 1 | Nozzle Kit, Poly |
| 8 | 6-9203 | 1 | Suction Hose Assembly |
| 9 | 6-8321 | 1 | Inlet Strainer |
| 10 | 6-8146-1 | 1 | Tank Lid & 6 inch Filter Basket |
| 11 | 6-8325 | 1 | Drain Plug Kit |
| 12 | 6-8003 | 2 | Worm Gear Clamp |
| 13 | 6-9204 | 1 | Rubber Grommet |
| 14 | 6-8324 | 2 | Wand Clip, pair |
| 15 | 6-8274 | 1 | Wand Clip, Tie Down |
| 16 | 6-8320 | 1 | Lead Wire Assembly w/ Switch |
| 17 | 6-9205 | 1 | 15’ Hose, Reinforced |
To Order Replacement Parts: 1-800-950-4458
SPRAY & PUMP FAQ
- Why does the pump not run all the time?
This is a demand pump and only runs with the flow; a specific pressure must be reached before the pump turns off. - Why does the pump surge while using the spray wand?
Low flow may cause the pump to surge (or cycle). This could happen when the spray wand is adjusted for a small or fine spray pattern. To overcome, slightly open the by-pass valve, or adjust the nozzle to allow more flow. - How do I adjust the pressure?
Pressure should be adjusted by regulating the by-pass valve (slightly opening or
closing). - My pump quit and will not restart – what should I check?
Check all electrical connections. Ensure the switch is in the on position. Check in-line
fuse and/or fuse in-car adapter end. Ensure correct voltage +/- 10%. 12-14 volt - Low flow or no flow at all – what should I check?
Check for a clogged suction hose and/or suction strainer. Often you will need to
clean the suction strainer. Check for proper voltage. Check for a crimped hosing. - Is there a fuse for the sprayer?
Yes, in line to the 12V wiring harness. - What size fuse should I use as a replacement?
10 amp - How should I clean the tank after use?
- Rinse the tank thoroughly with water only, empty, and refill with water.
- Open shut-off and allow water to run through the discharge assembly. Empty
sprayer. - If the unit is to be stored below freezing the best way to winterize is to run RV
antifreeze through both lines before storage, then purge with water in the spring.
- Is there an adjustment screw on the pump to adjust the pressure?
Yes, please refer to the operation instructions, “Adjusting the Pressure Switch”. - How do I remove/replace the fuse?
Open fuse housing, remove fuse if blown, and replace with equivalently rated fuse. - Can the spray tip on the wand be replaced with a different type of tip?
Yes, however, your wand comes with a #18 tip which is standard. Brass tips generally produce better spray patterns than plastic. - Each time I turn on the pump my fuse blows.
- Excessive voltage
- Improper adjustment of the pressure switch
- Damaged wiring harness
- The pump continues to run and surge when not spraying.
Ensure the by-pass is completely closed and your system has no leaks.
DIAPHRAGM PUMP SPECIFICATIONS
Fits Chapin 15 and 25 gallons ATV sprayers
12 Volt DC, totally enclosed, non ventilated
Max amp rating: 8
Leads: 6” long
2 chamber positive displacement diaphragm pump, self-priming, capable of being run dry, demand or bypass model.
- Priming Capabilities: 4 feet [1.2 ml) Max Pressure: 60 PSI
- Inlet/Outlet Ports: Quick Attach [2] 3/4” to 3/8” Straight
[1] 3/4” to 3/8” 90’
Congratulations!
You have just purchased a quality Chapin product.
Register Your Spreader Online@ www.chapinmfg.com/warranty.asp
Due to our ongoing product improvement process, product specifications may change without notice. The U.S. and foreign patents pending.






















