MIRO
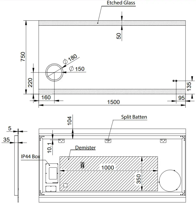
1500DM
M150DM

Size (mm): | |
| Width | 1500 |
| Height | 750 |
| Depth | 40 |
Features | |
| LED Lighting | |
| Copper Free Mirror | |
| Demister (1 Hour Auto Cut-off) | |
| 3x Magnifier | |

WARRANTY
5 years
*Conditions apply
To clean this mirror, wipe it with a soft microfiber cloth or a lint-free cloth that has been rinsed in warm water and wrung out well, then rub the mirror gently with a soft dry
cloth.
PLEASE do not use glass or window cleaner, or other cleaners with chemical agents. These may damage the silver coating and brown marks can result.
Please confirm all particulars with your sales consultant or refer to our website for more information prior to purchase.
www.remer.com.au
Version 1.1 June 2021
03 9706 6663

















