MERIDIAN RF500 Rough-In Box

Safety
Important Safety Instructions
- Read these instructions.
- Keep these instructions.
- Heed all warnings.
- Follow all instructions.
- Do not use this apparatus near water.
- Clean only with dry cloth.
- Do not block any ventilation openings. Install in accordance with the manufacturer’s instructions.
- Do not install near any heat sources such as radiators, heat registers, stoves, or other apparatus (including amplifiers) that produce heat.
- Do not defeat the safety purpose of the polarized or grounding type plug. A polarized plug has two blades with one wider than the other. A grounding type plug has two blades and a third grounding prong. The wide blade, or the third prong are provided for your safety. If the provided plug does not fit your outlet, consult an electrician for replacement of the obsolete outlet.
- Protect the power chord from being walked on or pinched particularly at plugs, convenience receptacles, and at the point they exit from the apparatus.
- Only use attachments/accessories specified by the manufacturer.
- Use only with the cart, stand, tripod, bracket, or table specified by the manufacturer, or sold with the apparatus. When a cart is used, use caution when moving the cart/apparatus combination to avoid injury from tip-over.
- Unplug the apparatus during lightning storms or when unused for long periods of time.
- Refer all servicing to qualified service personnel. Servicing is required when the apparatus has been damaged in any way, such as power-supply chord or plug is damaged, liquid has been spilled or objects have fallen in to the apparatus, the apparatus has been exposed to rain or moisture, does not operate normally, or has been dropped.
- To prevent injury, this apparatus must be securely attached to the floor/wall in accordance with the installation instructions
Guide for wiring the mains to the Meridian Rough-in box
This equipment is intended for permanent connection to the mains supply. A skilled and suitably trained person must carry out connection to the mains. National and local building regulations and electrical requirements must be adhered to when installing this equipment. Copper conductors should be used. An all pole mains switch with a contact separation of at least 3mm in each pole shall be incorporated into the electrical installation of the building.
Permanent connection of Meridian Rough-In box to mains:
- Isolate the mains before connection.
- Remove the mains terminal cover.
- Feed the mains wire through the grommeted hole, or use a suitable cable-gland in place of the grommet if the national and local electrical and building regulations require it.
- Connect to the terminal block on circuit board Neutral, Earth and Live connections.
- Replace the mains terminal cover.

Explanation Of Symbols

Contents & Assembly
These instructions are for installing a Meridian Rough-in Box RF500 in a stud wall. Either a new stud wall under construction (Start here at 1 ), or an existing stud wall (Start at 4 ). This product can also be installed in a brick or stone built wall, either at construction stage or into an existing wall.
- Fit ‘Mounting Wings’ loosely on ‘Rough-in Box’
- Remove ‘Brace’ for ease of access, but replace when installing Rough-in Box in wall. The ‘Brace’ ensures the ‘Rough-in Box’ remains straight and true.
Installation – New build

- Rough-in Box can be fitted without Wings. If this option is chosen. Battens (Studs) must be a touch fit to the sides of the Rough-in Box at 203mm (8”)
- Leave ‘Mounting Wings’ loose on ‘Rough-in Box’ at this stage. (Do not tighten nuts)
- Wide-range driver is at mid point along the length of the Rough-in Box.
- Terminal box and cabling should be at the top of the Rough-in Box
Installation – New build

- Make sure front edge of Rough-in box is sub-flush (below) to finished wall surface. Rough-in Box must NEVER protrude beyond wall surface
- Rough-in box can be between 2mm (0.08”) & 10mm (0.40”) below finished surface
- Once depth of Rough-in Box is decided upon tighten the ‘Mounting Wings’ in place
Installation – Existing build

- Place the template on the wall at the required height using the centre as a guide for wide-range driver height. Draw around the perimeter.
This presents a cutting guide for the hole required for the Rough-in Box

- Thread 2 o° wooden Battens (Studs) through the aperture and secure on either side of the hole level with the cut edge of the hole.
- Ensure the battens (studs) are approximately 203/206mm (8 “) apart. Tight against side of Rough-in Box is good.
- Allow for approximately 250mm (10”) of Mains & Speaker Link cable

- Slide Rough-in Box into the cavity. Pulling cables through.
- Screw through side slots into the battens (studs).
- Make sure front edge of Rough-in box is sub-flush (below) to finished wall surface. Rough-in Box must NEVER protrude beyond wall surface
- Rough-in box can be between 2mm (0.08”) & 10mm (0.40”) below finished surface
- Tighten screws at this point. It is VITAL that the sides of Rough-in Box remain straight and true and are not bent or distorted.
Meridian Rough-In Wall Box Mains Wiring Instructions
This sheet is intended as a guide for wiring the mains to the Meridian Rough-in box
This equipment is intended for permanent connection to the mains supply. A skilled and suitably trained person must carry out connection to the mains. National and local building regulations and electrical requirements must be adhered to when installing this equipment. Copper conductors should be used.
An all pole mains switch with a contact separation of at least 3mm in each pole shall be incorporated into the electrical installation of the building.
Permanent connection of Meridian Rough-In box to mains:
- Isolate the mains before connection.
- Remove the mains terminal cover.
- Feed the mains wire through the grommeted hole, or use a suitable cable-gland in place of the grommet if the national and local electrical and building regulations require it.
- Connect to the terminal block on circuit board Neutral, Earth and Live connections.
- Replace the mains terminal cover.

Preparing for Plaster & Paint

- Check that approximately 250mm (10”) of Speaker Link & Mains (If yet to be connected) cable is present
- Once plaster-board installation is complete, fit ‘Painting/Plastering Mask’ to protect internals of ‘Rough-in Box’ whilst plastering & painting is taking place.
Ready for Speaker

- Remove ‘Painting/Plastering Mask’ Rough-in box is now ready for Speaker fitting
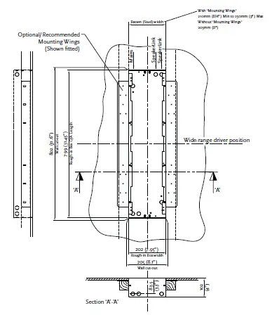
Dimensional drawing

Meridian RF500
Digital Signal Processing Loudspeaker Rough-in Box
Designed and made by Meridian Audio Limited
Huntingdon; England PE29 6YE
Registered Design ® and Copyright © 2012
Meridian Audio Ltd.
All rights reserved.


















