ZKTeco Mars-S1000 Smart Entrance Control

Installation Requirements
- It is recommended that the swing barrier turnstile must be installed on a horizontal solid platform with a height of 50mm to 100mm.
- It is also recommended that the swing barrier turnstile should not be used in the corrosive environment.
- Make sure the ground wire of the system is reliably connected to avoid personal injuries or other accidents.
- After installation, check if the connection is done correctly at the connecting points of the ground wire, at the connector assemblies and wiring points of the circuits, as well as at each movable part of the swing barrier turnstile. Any loose nuts, screws and other fasteners should be tightened in time to avoid any failures caused by long-time operations.
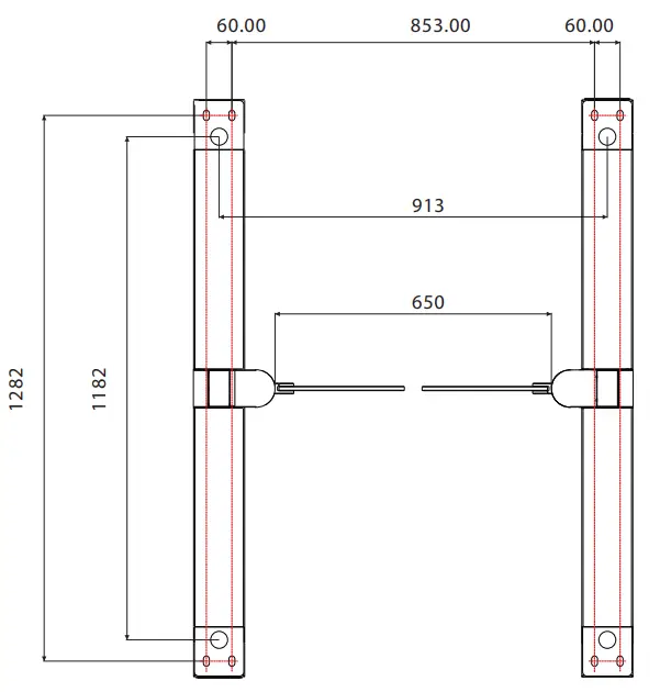
Installation Position
The installation position of the swing barrier turnstile depends on its size. A distance of 100mm between the swing barrier turnstile and the wall needs to be reserved for ease of opening the top cover of the machine to perform maintenance and adjustment. The reference figure is shown below: 
Preparation
To install the Mars-S1000/Mars Pro-S1000 you must have:
- A Screwdriver: To remove or install the screw on the device.
- A Pencil: To mark the device size and the screw hole.
- A Electric Drill: Drill holes according to the marked screw holes.
- A Wrench: Secure the M12 expansion screw on the device.

Installation
- Place the turnstile to the installation site.

- Remove the screws fixing the t 2. op lid, and remove the top lid.

- Remove the side lid that hang on the device.

- Mark the floor following t 4. he periphery of the legs.


- Take the turnstile aside and use the electric drill according t 5. o the drawn screw holes.

- Clean up the soil and dust after the drilling is completed, place the turnstile to the installation site again.
- Insert the M12 expansion screw and tighten it with a wrench.

- Connect the online cables and perform the power-on test. If the test is OK, install the side lid and top lid of the device.

- It is recommended that a warning line be marked on the ground after installing the device, so as to prompt the pedestrian to stand behind the warning line when verification.

- If you need to assemble the swing arm by yourself, please refer to the diagram below for installation.

Note: The swing arm is already installed in the factory.
ZKTeco Industrial Park, No. 32, Industrial Road,
Tangxia Town, Dongguan, China.
Phone : +86 769 – 82109991
Fax : +86 755 – 89602394
www.zkteco.com
Copyright 2021 ZKTECO CO., LTD. All Rights Reserved.






























