
SAFETY INSTRUCTIONS
WARNING: To reduce the risk of fire, electrical shock, or injury when using your central vacuum, follow these basic precautions:
- Do not use on wet surfaces.
- Do not allow to be used as a toy. Close attention is necessary when used by or near children.
- Use only as described in this manual. Use only the manufacturer’s recommended attachments.
- Do not use with a damaged cord or plug. If appliance is not working as it should, has been dropped, damaged, or exposed to water, have it inspected by an authorized service technician.
- Do not pull or carry by cord, use cord as a handle, close a door on cord, or pull cord around sharp edges or corners.
- Keep cord away from heated surfaces.
- Do not unplug by pulling on cord. To unplug, grasp the plug, not the cord.
- Do not handle plug, central vacuum, or powered accessories with wet hands.
- Do not put any object into openings. Do not use with any opening blocked; keep free of dust, lint, hair, and anything that may reduce air flow.
- Keep hair, loose clothing, fingers, and all parts of body away from openings and moving parts.
- Turn of controls before unplugging.
- Use extra care when cleaning on stairs.
- Do not use to pick up flammable or combustible liquids, such as gasoline, or use in areas where they may be present.
- Do not pick up anything that is burning or smoking, such as cigarettes, matches, or hot ashes.
- The accessory hose contains electrical wires. Do not use when damaged, cut, or punctured. Avoid picking up sharp objects.
- Connect to a properly grounded outlet only. See grounding instructions.
- Do not use without dust bag and/or filters in place
GROUNDING INSTRUCTIONS
This central vacuum must be grounded. If it should malfunction or break down, grounding provides a path of least resistance for electric current to reduce the risk of electric shock. This central vacuum is equipped with a cord having an equipment-grounding conductor and grounding plug. The plug must be inserted into an appropriate outlet that is properly installed and grounded in accordance with all local codes and ordinances.
Improper connection of the equipment-grounding conductor can result in a risk of electric shock. Check with a qualified electrician or service person if you are in doubt as to whether the outlet is properly grounded. Do not modify theplug provided with the central vacuum – If it will not fit the outlet, have a proper outlet installed by a qualified electrician. Electrical Shock Hazard Plug into a grounded 3 prong outlet. Do not remove ground prong. Do not use an adapter. Do not use an extension cord. Failure to follow these instructions can result in death or electric shock. WARNING This central vacuum is for use on a nominal 120 V circuit and hasa grounding attachment plug that looks like the plug illustrated in Figure 1. Make sure that the central vacuum is connected to an outlet having the same configuration as the plug in Figure 2. Outlets as shown in Figure 3 are not to be used. No adapter should be used with this central vacuum.
INSTALLATION
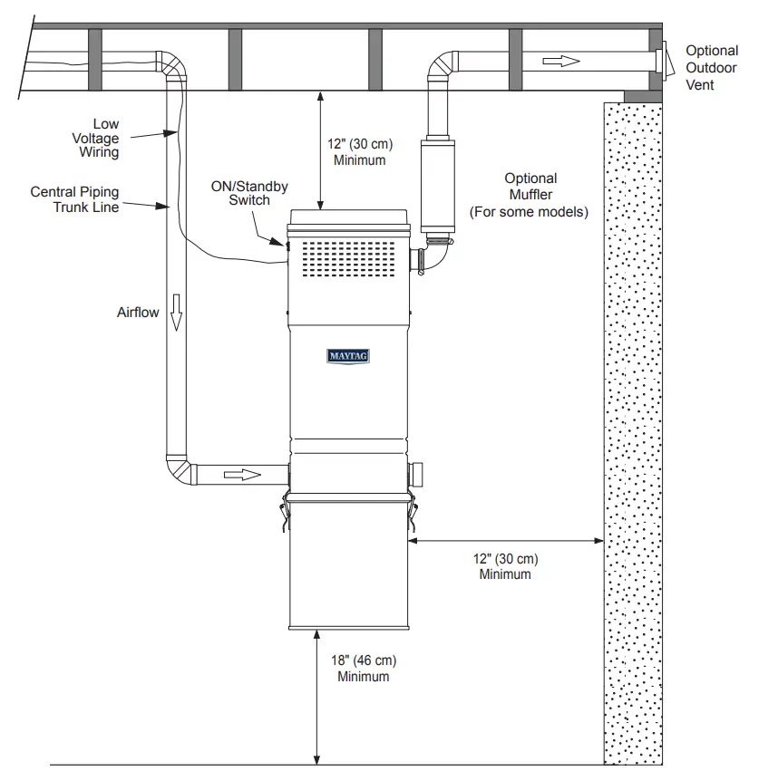
Mount the unit at the end of an existing vacuum piping trunk line within 5′ (153 cm) of a dedicated 15 A, 120 VAC receptacle. Do not use an extension cord. If a dedicated receptacle is not nearby,move the central vacuum close enough to reach a receptacle and extend the central vacuum piping to reach the new location.If installing a new system with new piping, suitable locations for the central vacuum unit are in the garage, basement, utility room, orother remote area, except where exposed to the weather. A dedicated 15 A, 120 V outlet is required to power the system. Left and right side intakes are provided for convenient attachment to existing piping. Use either left or right side intake and place theincluded PVC cap tightly into the unused inlet. One inlet must be capped at all times. Do not glue pipes or fittings to intakes. This appliance requires ventilation. Do not install in a heat-producing area or confined space such as a furnace room or attic. Closet installation is not recommended.Mount the wall bracket where there will be at least 12″ (30 cm) of space above and to the sides of the central vacuum. Mountso there is at least 18″ (46 cm) above the floor. For most installations, the top of the bracket can be mounted 50″ (127cm) above the floor. Adjust according to the above requirements. When lifting the central vacuum into position, get close to theunit and bend at the knees. Grab the unit from the bottom with one hand and the top with the other. Make sure the power cordis clear of the mounting area and cannot be pinched when positioning onto the wall bracket. Use a hose clamp to secure the muer to the exhaust port.If desired, the exhaust may be vented outdoors. The maximum exhaust pipe length is 15′ (4.6 m). Not available on all models. (Additional hardware required)
Recommended Tools
Typical Installation
Installing the Wall Bracket
Low Voltage Wiring
Final Steps
USE AND CARE
Filter Bag Option:
For additional filtration and ease of cleaning, this unit can be used with a filter bag. Attach the bag adapter to the interior of the operational intake port as shown with the opening pointed downward. Unfold the filter bag and slide the hole over the end ofthe adapter until the bag seal is between the two ridges. Allow the bag to hang down. If a filter bag will not be used, rotate the bag adapter 90° to create a cyclonic air flow action inside the vacuum.
Periodic Maintenance:
When emptying the dirt container or filter bag, it is recommended to inspect the permanent filter located inside the unit above the intake ports. If the filter surface appears to be caked in dust, clean as follows: Do not remove the permanent filter!
- Unplug the power cord to prevent the unintentional operation of the central vacuum. Remove the bottom dirt container by lifting the side latches, one at a time. Set container aside.
- If using a filter bag, remove it by grasping the cardboard flange on opposite sides and pull away from the bag adapter fitting.
- Place an open garbage bag or another large plastic bag around the open end of the unit. Seal the bag to the unit by tying it tight or by grasping the excess bag in one hand to prevent dust from escaping.
- . Reach up under the bag into the bottom of the unit using the bag as a glove. Shake the filter gently to dislodge dust from the filter so that the dust falls into the bag.
- Remove the plastic bag, empty the dirt container contents into it, including the full filter bag (if applicable) and dispose.
- Install a new filter bag (if required) and re-install the dirt container. Use the hooks on the body to hang the dirt container and latch both sides at the same time to ensure the container is aligned th the gasket.
- Plug the power cord in and verify the proper operation of the vacuum.

Wall Valves:
- Type A combines 24V as well as 110V to stop and start the vacuum cleaner and the electric broom using the switch located at the handle of the hose.If applicable, you will also need to connect the 110V plug that comes with your hose to the electrical wall outlet to power your electric broom.
- Type B combines 24V and 110V to stop and start the vacuum and the broom using the switch located at the handle of the hose. This is a “supervalve” type socket.Some types of hoses have the 110V Quick Connect option. This option allows you to feed your electric broom directly into the nozzle on the wall side.
- Type C uses 24V to stop and start the vacuum only with the switch located on the handle of the hose.

PROBLEM SOLVER
First try the solutions suggested here. If you need further assistance or more recommendations that may help you to avoid a service call, refer to the warranty page in this manualor visit: Contact us by mail, email or phone with any questions or concerns at the address below: www.maytagcentralvacuums.com Maytag Central Vacuums [email protected] 15 Crane Ave. www.maytagcentralvacuums.com
| IF YOU EXPERIENCE | POSSIBLE CAUSE | RECOMMENDED SOLUTION |
| The vacuum unit will not turn on & the power LED is OFF. | No power at the outlet. Power cord not plugged in. |
Plug into another outlet. Check the electrical panel for a tripped circuit breaker or blown fuse. |
| The vacuum unit will not turn on & the power LED is ON. | Overload circuit-breaker has tripped. | Reset the circuit breaker: Push in the button labeled “CIRCUIT BREAKER” on the side of the unit. |
| Unit turns on but shuts off by itself. | Motor overheated due to lack of cooling airflow. | Unplug the unit and allow the motor to cool for up to 2 hours. This will reset the thermal protector. Check the vacuum bag (Page 7). Do not operate with a full bag. Do not allow airflow to be restricted. Do not obstruct ventilation. Check hose for obstruction. Do not operate without a hose connected. |
| Unit will not turn off. | The low voltage circuit is closed or shorted out. | Unplug the low voltage wires from the vacuum unit. If the unit turns off, the low voltage wiring is closed (shorted) within the building. Check all wall valves and vac-pans for crossed wires first. Inspect wiring where possible for screws or staples through the wires. |
| Lack of suction. | Vacuum bag is full.
Obstruction in hose or attachments.
Lower dirt container not properly attached. | Replace the bag (See Page 7)
If the blockage is in the hose, insert a long blunt item, such as a broom handle, to clear the blockage. Check attachments for blockages. Blockages in the hose or attachments can also cause the thermal protector to activate.
Ensure the bottom is sealed well and the latches are in place. |
WARRANTY CLAIMS
To initiate a warranty claim, simply return your unit with the original (or copy) bill of sale to a local “AUTHORIZED SERVICE CENTER” for repair or replacement at our option. This warranty is limited to parts only and does not include shipping charges to the manufacturer if applicable. Any other expressed or implied warranty is not valid. This warranty applies to residential applications and is for the original homeowner in it’s original installation only. Vacuuming liquids, construction materials such asdrywall dust, or any other kind of material that this unit is not designed, or removal of the protective filter voids the warranty. If you purchased your unit from an online retailer, all warranty claims must be processed through the online retailer from which it was purchased for warranty eligibility. Labor is included under the warranty for 1 year from the date of purchase shown on the bill of sale from the “AUTHORIZED DEALERSHIP” from where the unit was originally purchased.



USE AND CARE


















