Grundig K69400 Portable Refrigerator Instruction Manual
GRUNDIG K69400 Portable Refrigerator
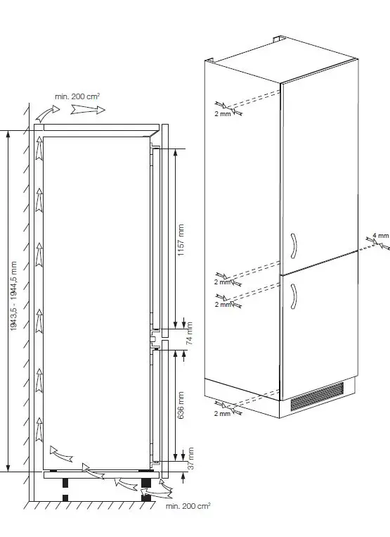
Installation instructions
Overview
Parts
Assembly
Intend
procedures
Download manual
Here you can download full pdf version of manual, it may contain additional safety instructions, warranty information, FCC rules, etc.
To access the pdf donwload links, solve the captcha.





























