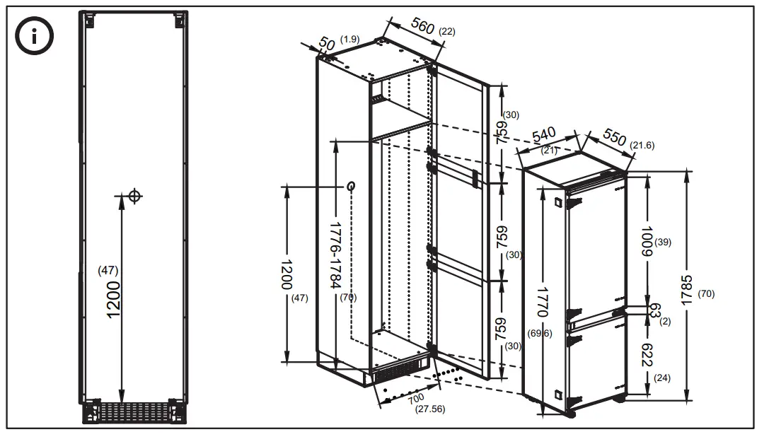
IKEA 104.621.56 SUPERKALL SEKTION Built-In Refrigerator

Warning! Before proceeding with installation, read the safety information in the User Manual.
Serious or fatal crushing injuries can occur from refrigerator tip-over. Always secure this refrigerator to the wall using tip-over restraints.
Don’t use extension cable or multiplug while you plug it to electricity circuit.
Instruction





Installation
Remove the upper hinge and take out the plastic cap from the other side.- Remove the upper door and carefully place it on the padded surface to avoid damage.

1. Remove the lower hinge of the fridge door and the upper hinge of the freezer door.
2. Remove the freezer door in an upwards direction and place it on a padded surface to avoid damage
Remove the lower hinge of the freezer door and the left side plastic caps.
Replace the upper and lower hinge of the freezer door body, then install the hinges and pins.
Place the freezer door on the lower hinges and close the fridge body.
Install the upper hinge of the freezer door and the lower hinge of the fridge door.
Place the fridge door on the lower hinges and close the fridge body.
Install the fridge door upper hinge and the right side plastic caps.
Remove the door gear block parallel to the left, then remove the door guide rail.
1. Rotate the gear block and the door rail by 180° and install both in the screw hole on the other side of the door.
2. Once the upper and lower doors have been changed, the appliance should look like so: 
1. Fasten the raster on the back of the middle partition with screws.
2. Fasten the support screw to the then place the middle partition on it.
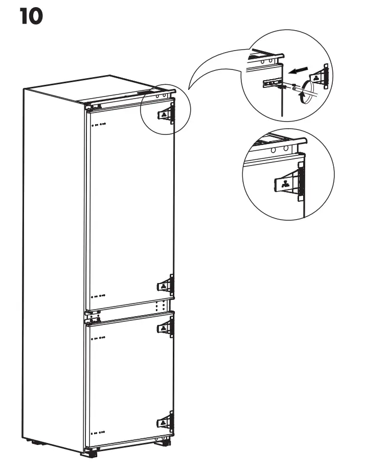
Fasten the hinge cabinet door to the corresponding screw hole on the side board.
Fasten the hinge cabinet door to the corresponding screw hole on the side board.
Remove the protection foil from the FIXED BLOCK(H),then paste it on the corresponding position of the fridge side panel.
Push the fridge into the cabinet. Make sure your hands do not get trapped in the process.
1. When the fridge is about to push into the cabinet, adjust the lower support hook to face downwards.
2. Adjust the fridge so that the baffle and flange are in contact with the edge of the cabinet partition, and the lower support hook is in contact with the bottom edge.
Once the left of the fridge is securely attached to the securely attached to the edge of the middle, fasten the top with screws.
Fasten the lower support to the bottom plank with screws. 
screw cover of the lower support. 
Cut the rubber seal strip then use them to seal the gap between the fridge and cabinet side wall opposite side of hinge.
1. Fasten the stopper block to the threaded hole in the middle of the center beam. Note that the screw only needs to be tightened to 2/3 of a stroke.
2. Slide the stopper block so that it is closer to the planks on both sides of thecabinet, then fasten it with screws.
3. Tighten the screws from the distance between theplanks on both sides of the cabinet at the center beam.
4. Install the pin in the screw hole on the leftside of the center beam. 

1. Open the cabinet door to the maximum degree, then open the fridge door to the correspond position. Slide the cabinet door gear block so that the position mark is aligned with the edge of the fridge door, then tighten it to the cabinet door with screws. Finally, fold and fasten the screw covers.
1. Open the upper door and close the lower door, then check if the lower door seal is tightly attached to the cabinet. If it is not tightly attached, adjust the position of the fridge in the front and back directions.
1. Open the lower door and close the upper door, then check if the upper door seal is tightly attached to the cabinet. If it is not tightly attached, adjust the position of the fridge in the front and back directions.

Remove the upper hinge and take out the plastic cap from the other side.



















