X-SENSE XS01-WT Pro WiFi Smoke Alarm

This user manual contains important information regarding the operation of your X-Sense smoke alarm. Ensure you read this user manual fully before installing and operating the alarm. If you are installing this smoke alarm for use by others, you must leave this manual (or a copy of it) with the end user.
Package Contents
- 1 × Alarm Unit
- 1 × Mounting Bracket
- 2 × Screws
- 2 × Anchor Plugs
- 1 × User Manual
- 1 × Pin
Safety Information
IMPORTANT
- DANGERS, WARNINGS, AND CAUTIONS ALERT YOU TO IMPORTANT OPERATING INSTRUCTIONS OR TO POTENTIALLY HAZARDOUS SITUATIONS. PAY SPECIAL ATTENTION TO THESE SITUATIONS.
- THIS ALARM IS NOT INTENDED TO ALERT HEARING IMPAIRED INDIVIDUALS. THE USE OF ALCOHOL OR DRUGS MAY ALSO IMPAIR ONE’S ABILITY TO HEAR THE SMOKE ALARM.
- FIRES IN CHIMNEYS, WALLS, ROOFS, DIFFERENT LEVELS OR BEHIND CLOSED DOORS MIGHT NOT BE DETECTED.
- THIS DEVICE DOES NOT DETECT FLAMES, HEAT, CARBON MONOXIDE OR OTHER HAZARDOUS GASES.
WARNING
- NEVER IGNORE ANY ALARM. FAILURE TO RESPOND CAN RESULT IN SERIOUS INJURY OR DEATH.
- THE SILENCE FEATURE IS ONLY FOR YOUR CONVENIENCE AND WILL NOT CORRECT A PROBLEM. ALWAYS CHECK YOUR HOME FOR A POTENTIAL PROBLEM AFTER ANY ALARM. FAILURE TO DO SO CAN RESULT IN INJURY OR DEATH.
- TEST THIS SMOKE ALARM ONCE A WEEK. IF THE ALARM EVER FAILS TO TEST CORRECTLY, REPLACE IT IMMEDIATELY! IF THE ALARM CANNOT WORK PROPERLY, IT WILL NOT ALERT YOU TO A PROBLEM.
Set Up and Connect Smoke Alarms to Wi-Fi
Before connecting smoke alarms, make sure that:
- Know your Wi-Fi network name and password.
- Make sure you are connecting smoke alarms to a 2.4 GHz Wi-Fi network (incompatible with 5 GHz Wi-Fi network).
NOTES:
- The following user interface is taken from an iOS device. If you are using a different operating system, some images may look a little different, but the basic functions are still the same. If you have problems connecting your device, you are always welcome to contact our customer service.
- Some contents shown in the App user interface might slightly differ from those in the user manual due to later software upgrades.
How to connect using EZ mode (Default mode)
- Before installing the alarm to a wall or ceiling, download the TuyaSmart/Smart Life app and connect the alarm to your Wi-Fi via the app. Search for TuyaSmart/Smart Life in the App Store or Google Play, or simply scan the included QR code to install the TuyaSmart/Smart Life app. You will also need to register an account.

- Remove the insulating film from the battery compartment to turn on the alarm. The LED indicator will flash red and then continuously flash blue, indicating that the smoke alarm has been activated.

- Open the TuyaSmart/Smart Life app, tap the “+” icon in the top right corner of the “Home” page, or directly tap “Add Device” to add your first device.
- Go to “Sensors” – > “Sensor/Alarm” – > “Sensor/Alarm (Wi-Fi)” on the “Add Manually” page to enter the Wi-Fi connecting page.

- Enter the Wi-Fi password.
NOTE: If your home Wi-Fi router is a 2.4 and 5 GHz dual-band that works with a single SSID name, please refer to your Wi-Fi rotuer manual to create separate SSIDs for the 2.4 and 5 GHz channels. You can also select “Common router setting method” on the TuyaSmart/Smart Life App in the network configuration process to learn about the corresponding setting method.
NOTE:Ifyour home Wi-Fi router is a2.4 and 5 GHz dual-band that works witha single SSID name,please refer to your Wi-Fi rotuer manual to create separate SSIDs for the 2.4 and 5 GHz channels.
You can also select “Common router setting method” on the TuyaSmart/Smart Life App in the network configuration process to learn about the corresponding setting method.
- To enable the smoke alarm to enter the Wi-Fi connection mode, hold down the test/silence button for 3 seconds. The smoke alarm will beep once, and the LED indicator will rapidly flash blue.
- Tap “Next” and select Blink Quickly” in the pop-up of the app, then wait for it to connect successfully.

- After a successful connection, the LED indicator will stop flashing blue. Select “Done.” The added device will now be displayed on the Home page in the app.

NOTES- The LED indicator will flash blue rapidly for up to 2 minutes during configuration. If connection is unsuccessful, the smoke alarm will need to be reconnected. Remove the battery for a short period and start again from step 2.
- Unsuccessful connection may be because your router, mobile phone, and alarm are not as close to each other as possible, or that you have incorrectly entered your Wi-Fi password.
- After the installation is complete, you will see the start screen (Image 9) for the app displayed for a short time. Then, the app will move to the device’s home screen (Image 10). Here you can see the battery level and status of the device (“No Fire Danger” is shown in the Image 10).
- Once you have successfully connected your device to the app, you can continue to the “Settings” section to set up push notifications and change various settings for the app and device. However, if the device still cannot connect to the app, you can try to set up the device using the following AP mode.

How to connect using AP mode (Alternative mode)
Some mobile phones and devices are not compatible with the EZ mode,so you will need to switch to the AP mode.
- Insert a pin into the device pinhole on the back of the alarm and press down the inside button. The alarm will beep once and the LED indicator will flash blue slowly, indicating that the alarmhas entered the AP mode.

- Select “Blink Slowly” in the pop-up of the app to go to the Wi-Fi setup page in the phone, and then select the device’s hotspot with the default name “SmartLife-XXXX or “SL-XXXX”. After successfully connecting to the Wi-Fi, return to the app and start network configuration.


- After successful connection, the LED indicator will stop flashing blue and the added device will be displayed on the “Home” page in the app.

App Settings
NotificationsSettings
Under Settings (the gear wheel on the unit’s home screen) you can adjust the type of notifications you want the smoke alarm to send. This can apply to both what is displayed on the screen and what is stored in the log.
One thing to keep in mind is that if you turn on many notifications, it may seem as if the device “alerts” about something constantly. For example, if you turn on “Device Self-Check Notification”, you will receive a notification every time the unit performs a test after the test/silence button is pressed. The more information you activate, the more power the device will consume, as it creates more need for the device to transmit information, which means that the intervals for battery replacement will become shorter than the advertised one year.
Historical Data (Log)
To access historical data or the log, click the “Click for more” button located at the bottom of the Home screen for the unit.

Offline Notification
If you have an unstable network, it may be good to know how often the alarm loses connection and to perhaps improve the placement of your Wi-Fi router or change Internet provider. Alternatively, you may wonder why the XS01-WT loses contact with the Wi-Fi router or cloud server and flashes blue from time to time.Therefore, it is recommended to turn on the “Offline Notification” so that you will receive a push notification if your device cannot connect to the app.
Turn on “Offline Notification” and a text will appear describing that if the device is battery-powered, updates are made every 8 hours. This information will then be sent from the cloud server due to the device not having made contact within a specified time span. This does not mean that the device or your Wi-Fi router does not work properly, but for some reason the smoke alarm cannot reach the cloud server at regular intervals and then the warning is sent out.
Note: XS01-WT is a low-power device.

Alarm Test
- Always make sure to test your smoke alarm when it is turned on for the first time, or whenever you change the battery or reconfigure the device. You should also test the device weekly, or whenever you have been away from home for a long time.
- Briefly press the test/silence button. NOTE: if you hold down the button for more than three seconds, the smoke alarm will enter a reconnecting mode in the app and the previous settings will be cleared.
- The unit beeps 3 times.
- If your device has successfully connected to router, the LED indicator will flash red and then flash blue rapidly for several seconds, indicating it has been connected.
- When the test is finished, the alarm will automatically enter standby mode.
NOTES
- The test function accurately tests the alarm’s smoke sensing circuit without the need to test with smoke. If your smoke alarm fails to give an audible test signal, please refer immediately to the troubleshooting guide at the end of this manual. Never use an open flame to test this device.
- If the LED indicator flashes blue for 2 minutes during the test, then the connection was not successful and the alarm needs to be reconnected (repeat the steps in the section “Set Up and Connect Smoke Alarms to Wi-Fi”).
Installation Positioning

- Study
- Bedroom
- Garage
- Living Room
- Kitchen
- Basement
- Smoke Alarms
- Carbon Monoxide Alarms
- Fire Extinguishers
NOTE:If a smoke alarm is installed in a kitchen, ensure it has an easily accessible silence button and install the alarm as far away from the stove and sink as possible to avoid false alarms.
- Prioritize the installation of an alarm in the bedroom and walkways, and make sure you can hear the alarm from all sleeping areas. In a home with several bedrooms, install an alarm in every bedroom. If you install only one smoke alarm in your home, install the alarm near to all bedrooms where possible, and not in a basement or furnace room.
- Install an alarm above the stairway and on every floor of the house.
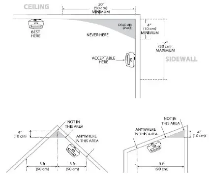
- Smoke, heat and anything burning will spread horizontally after rising to the ceiling, so install the alarm in the middle of the ceiling where possible. Ensure that the alarm is installed at the minimum distance away from corner.
- If an alarm cannot be installed in the middle of a ceiling, install it at a distance of 20 inches (50 cm) away from the corners of the room.
- If an alarm is installed onto a wall, a distance of 4-12 inches (10-30 cm) should be kept below the ceiling.
- If the length of a room or hallway is greater than 30 feet (900 cm), several alarms should be installed in the same room.
- When the wall or ceiling is angled, the alarm needs to be installed within 3 feet (90 cm) of the highest wall or ceiling point (measured horizontally) in the room.
- To maintain a secure and stable Wi-Fi connection, please be sure to install the alarm within the router’s coverage area and make sure that there are as few obstacles as possible between them.


WARNING
- THIS ALARM SHOULD BE INSTALLED BY A COMPETENT PERSON.
- ALARMS SHOULD NOT BE USED AS A SUBSTITUTE FOR PROPER INSTALLATION, USE AND MAINTENANCE OF FUEL BURNING APPLIANCES INCLUDING APPROPRIATE VENTILATION AND EXHAUST SYSTEMS.
- TO PREVENT INJURY, THIS DEVICE SHOULD BE SECURELY ATTACHED TO THE CEILING OR WALL IN ACCORDANCE WITH THE INSTALLATION INSTRUCTIONS.
- BATTERIES SHOULD NOT BE EXPOSED TO EXCESSIVE HEAT SUCH AS DIRECT SUNLIGHT, FIRE, ETC.
Installation Method
NOTE: Before installation, we recommend you test the Wi-Fi smoke alarms in the rooms you wish to install them in to ensure they are within range of the Wi-Fi router that nothing is interfering with their communication.
- Use the mounting bracket to mark the screw holes on the ceiling or the wall.
- Drill holes at the two marks using an appropriately-sized drill bit. Insert the anchor plugs and screw the mounting bracket using the screws provided.
- Attach the alarm to the mounting bracket and turn clockwise to lock the alarm.
- Test the smoke alarm according to the steps in the section“Alarm Test”.

Silence Mode
When non-hazardous smoke (e.g. steam) causes a false alarm, you can silence your device in one of the 2 following ways:
- Silence the unit via the “App” under “Setting” (gear wheel) and the “Silence” button at the last row.

Note: In normal standby mode, your device will not respond if you turn on the silence button. - Press the test/silence button on the alarm.
If you turn on the silence button and press the test/silence button on the alarm, you will receive a push notification on your smartphone app telling you that your device is in silence mode. The red LED will flash every 5 seconds to remind you that the alarm has been silenced. The alarm will automatically exit silence mode after 9 minutes.
Battery Replacement

- To replace the battery, detach the smoke alarm from the mounting bracket by twisting it counterclockwise.
- Pull the battery removal tab to remove the battery, and then install a new battery, matching the correct polarity markings.
- Test the alarm, and then mount the alarm onto the mounting bracket by twisting clockwise to lock the alarm.
LED Indicator and Audible Alarm
| Status | LED indicator | Audible alarm | Note |
| Normal | The LED indicator flashes red once every 60 seconds. | None | / |
| Wi-Fi Connecting | The LED indicator flashes blue 4 times every second. | 1 beep | EZ Mode (Default mode) |
| The LED indicator flashes blue once every second. | 1 beep | AP Mode (Alternative mode) | |
| Test | The LED indicator flashes red 3 times per second and then rapidly flashes blue 4 times every second. | 3 short quick beeps (1 beep per second) | / |
| Alarm | The LED indicator flashes red once every second. | Short quick beeps | The app will immediately notify you of dangerous smoke near the smoke alarm. |
| Silence Mode | The LED indicator flashes red once every 5 seconds. | None | / |
| Low Battery | The LED indicator flashes red once every 60 seconds. | 1 beep every 60 seconds | The app will send a low battery notific ation. |
| Malfunction | The LED indicator flashes red twice every 40 seconds. | 2 beeps every 40 seconds | / |
Technical Specifications
| Power Supply | Replaceable3V CR123A lithium battery |
| Operating Life | 10 years |
| Battery Life | 1 year |
| Sensor Type | Photoelectric |
| Safety Standards | EN 14604:2005+AC:2008 |
| Coverage Area | 215–430 sq. ft (20–40 m²) |
| Operating Temperature | 40-100°F (4.4-37.8°C ) |
| Operating Relative Humidity | ≤85% (non-condensing) |
| Alarm Loudness | ≥ 85 dB at 10 ft(3 m) @ 3.2 ± 0.3 kHz pulsing alarm |
| Silence Duration | About 9 minutes |
| App | Tuya Smart app (Android and iOS supported) |
| Wireless Frequency | 2.4GHz (Incompatible with 5 GHz Wi-Fi network) |
| Wireless Protocol | IEEE 802.11b/g/n |
| Transmission Power | 17 dBm |
NOTES
- Battery life is calculated on the current ratings in the weekly test mode and standby mode. If its operation mode changes to an alarming condition, the battery life will be decreased accordingly.
- This smoke alarm functions between 40 and 100°F (4.4 and 37.8°C). Prolonged exposure tolower or higher temperatures can reduce battery life and affect device performance. We do not recommend operating the device beyond its temperature range.
Maintenance
To keep your smoke alarm in good working order, follow these simple steps:
- Verify the unit’s alarm sound and indicator are working properly by testing the unit once a week.
- As a minimum your smoke alarm should be cleaned once every 3 months: Remove the unit from the ceiling and clean the alarm cover and vents with your vacuum cleaner fitted with the soft brush attachment to remove dust and dirt.
- Never use detergents or other solvents to clean the unit.
- Avoid spraying air fresheners, hair spray or other aerosols near the alarm.
- Do not paint the unit. Paint will seal the vents and interfere with the sensor’s ability to detect fire.
- Never attempt to disassemble the unit or clean inside. Doing so will void your warranty.
- When removed, place the smoke alarm back in its proper location as soon as possible, to assure continuous protection from fire.
- When household cleaning supplies or similar contaminants are used, the area should be ventilated.
Troubleshooting
| PROBLEM | SOLUTION |
| Your smoke alarm does not sound during testing. | l Please check whether the alarm is properly attached to the mounting bracket. l Make sure you push the central test button firmly. |
| False alarms triggered intermittently or when residents are cooking, taking showers, etc. | l Check the location of your smoke alarm (see “Installation Positioning”). l Clean the smoke alarm (see “Maintenance”). |
| Red LED flashes and the alarm sounds one beep every 60 seconds. | The battery is low. Replace the battery immediately. |
| Red LED flashes and the alarm sounds two beeps every 40 seconds. | The alarm is malfunctioning. Please clean your smoke alarm and see if it functions normally. If not, replace the device immediately. |
| Blue LED flashes continuously during a test/the app displays that the alarm is disconnected. | The alarm is disconnected from the router. Please make sure that the alarm has been installed within the router’s coverage area(see the “How to connect via EZ mode (Default mode)” section). |
| The network configuration failed in EZ mode (Default mode). | Your mobile phone may be incompatible with the EZ mode. Remove the battery for a short period and connect again or switch to AP mode (see the “How to connect using AP mode (Alternative mode)”section). |
FCC Statement
This equipment has been tested and found to comply with the limits for a Class B digital device, pursuant to Part 15 of the FCC Rules. These limits are designed to provide reasonable protection against harmful interference in a residential installation. This equipment generates uses and can radiate radio frequency energy and, if not installed and used in accordance with the instructions, may cause harmful interference to radio communications. However, there is no guarantee that interference will not occur in a particular installation. If this equipment does cause harmful interference to radio or television reception, which can be determined by turning the equipment off and on, the user is encouraged to try to correct the interference by one or more of the following measures: — Reorient or relocate the receiving antenna. — Increase the separation between the equipment and receiver. — Connect the equipment into an outlet on a circuit different from that to which the receiver is connected. — Consult the dealer or an experienced radio/TV technician for help. Changes or modifications not expressly approved by the party responsible for compliance could void the user’s authority to operate the equipment. This device complies with part 15 of the FCC Rules. Operation is subject to the following two conditions: (1) This device may not cause harmful interference, and (2) this device must accept any interference received, including interference that may cause undesired operation.
WARNING: The distance between user and device should be no less than 20cm.
Environmental Protection
Waste electrical products should not be disposed of with household waste. Please recycle where facilities exist. Check with Local Authority or retailer for recycling advice.
Manufacturer and Service Information
X-Sense Innovations Co., Ltd.
Address: B4-503, Kexing Science Park, 15 Keyuan Road, Shenzhen, 518057, CHINA
Email: [email protected]





























