Roth UFH Manifold Brass Adjustable with Flow Meters Installation Guide
Roth UFH manifold
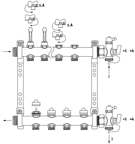
Filling the system

Water with max, 50% Glycol.
- Open both ball valves on the end caps. Remove the protection cap on the first circuit and open the flow meter or shut-off valve on the supply pipe.
- Fill with water through the top manifold until the water comes out of the lower manifold end (return pipe) (4).
- Repeat steps 1 and 2 until all circuits are filled with water.
- Close the ball valves on the end caps.
Pressure Testing
Always test and document the system pressure. The pressure testing must be done before screeding or installing the floor. Perform pressure test, according to national regulations.
Balancing the valves

NB. The flowmeters on the manifold are only used as closing valves for the circuits.
- Remove all plastic handles, from the manifold.
- 0pen all flow meters/closing valves.
- Set the water flow on your manifold valve according to the table on page 3 or balancing report from Roth UK, using the supplied key.
Note that Balancing is always performed from open valve position and down. - Mount and connect actuators, on to your manifold.
Guidance for balancing the manifold valves – Example

Example
At the manifold, there are now mounted 4 pipes/circuits with lengths of 60,50, 35 and 15 meters. The longest circuit is 60 meters long and must always be fully opened on the valve. NB! All valves on the Roth manifolds are always delivered fully open.
Find the balancing values by following the section with 60 meters, now g0 horizontally to the right and read out the other values for the next lenghts in line. 50, 35 and 15 meters. You can read the values 1.00, 1.25 and 1.50 place.
The table is an guideline, contact Roth’s technical support for more exact values, there may be parameters which are not taken into account. Flow rate valve pre-setting must start from a fully open valve.
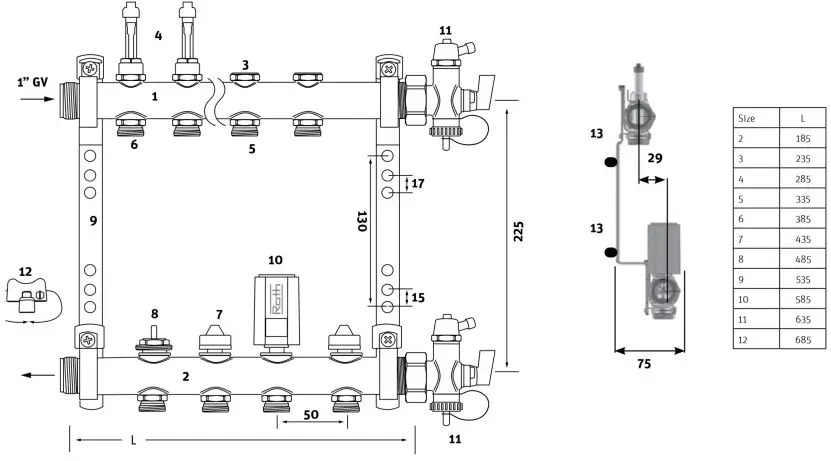
Roth under floor heating manifold

- Supply Manifold with flow meter or shut-off valve
- Return Manifold with balancing valve
- Shut-off valve
- Flow Meter
- Pipe connection %” EURO
- Pipe connection %” EURO for distributor with flow meter
- Protective cap
- Valve for the thermo actuator
- Support bracket
- Thermo actuator, not included in delivery
- Accessories. End cap with draining and venting HVAC no. 7401973828
- The key for balancing the valves
- NB! Remember spacers for isolating the Roth Manifold
Technical data
Scope of application: Underfloor Heating Systems
Material: Brass CuZn37/CW508L
Differential pressure: Max. 20 Kpa
Operating temperature: Max. 70°C
Operating pressure: Max. 6 bar
Number of connections: 2-12 circuits
Threads on the manifold: 1″ext.
Threads on the connections: EURO %4ext.
Threads for thermo actuators: M30 x1.5mm
Suspension brackets: Galvanized steel
ROTH UK Ltd
1a Berkeley Business Park
Wainwright Road
Worcester WR4 9FA
Phone +44 (0) 1905 453424
E-Mail [email protected]
[email protected]
[email protected]
[email protected]
roth-uk.com
ROTH DANMARK A/S
Centervej 5
3600 Frederikssund
TIf. +45 4738 0121
E-mail: [email protected]
roth-danmark.dk
ROTH SVERIGE AB
Hojdrodergatan 22
21239 Malmds
Tel. +46 40534090
Fax +46 40534099
E-mail: [email protected]
foth-sverige.se
ROTH NORGE AS
Billingstadsletta 19
1396 Billingstad
Tel. +47 67 57 54,00
E-mail: [email protected]
roth-norge.no facebook.com/RothNorge
ROTH FINLAND OY
Sysimiehenkatu 12
10300 Karjaa
Puh. +358 (0)19 440 330
S-posti: [email protected]
roth-finland.f facebook com/RothFinland



















