HUUM CLIFF 9.0STU Pkg 9.0kW Sauna Heater

THINGS TO CHECK BEFORE INSTALLATION
- Does the output (kW) match the volume (m³) of the sauna room?See Table 1.
- In case there are any uninsulated brick, tile or glass walls in the sauna room, an additional volume of 1,5 m³ should be added to the sauna room for each such square meter of the wall.
- The suitable output of the heater will be determined based on Table 1.
- The producer’s warranty guarantee is invalid if the heater and sauna room have been dimensioned incorrectly!
- Minimal safe distances between the sauna room’s ceiling and walls in view of installing the electric heater are listed in Table 1.

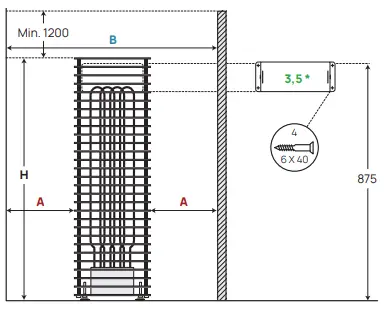
- CLIFF Mini 3,5 is attached to the wall with a special bracket See CLIFF Mini 3,5 heater data in the table below.
| Table 1 | Output kW | Room m3 | Weight kg | A mm | B mm | H mm | Width/ Depth mm | Fuse A | Power cable N × mm2 |
| CLIFF Mini 3,5 | 3,5 | 3,5-6 | 15 | 60 | 390 | 975 | 270/160 | 10 | 3 × 2,5 |
| CLIFF 6 | 6 | 5–10 | 16 | 60 | 390 | 975 | 270/270 | 10 | 5 × 2,5 |
| CLIFF 9 | 9 | 9–15 | 16 | 120 | 510 | 975 | 270/270 | 16 | 5 × 2,5 |
| CLIFF 10,5 | 10,5 | 10-17 | 17 | 120 | 510 | 975 | 270/270 | 16 | 5 × 2,5 |
INSTALLATION
Positioning the heater
- The heater must be positioned in such a way that there is a safe distance between flammable materials and the external surfaces of the heater. See Figure.
- In installing the heater, it must be prevented people could have physical contact with the heater or other dangerous situations could emerge during the heating process.
- CLIFF Mini holds approximately 60 kg of stones and CLIFF holds approximately 75 kg.
- The input of the power cable is located on the bottom cover of the heater.
Connecting the heater to the power supply
- Only a certified electrician is allowed to connect the heater to the power supply.
- A rubber-insulated SIHF-JB cable or an equivalent cable must be used as the connection cable.
- It is recommended to connect the unit to the mains without an earth-leakage circuit breaker.
- The maximum current intensity in the cross-sectional area of the cable and circuit breaker is listed in Table 1.



















