60000005 Drawer Fridge with Refrigerator
User Manual
60000005 Drawer Fridge with Refrigerator
OPERATING & INSTALLATION INSTRUCTIONS
REFRIGERATED DRAWER
Please visit www.norcool.no for operating & installation instructions in other languages.
Handling of waste
Waste management of the packaging:
The packaging protects the product against damage during transport. All packaging may be recycled and is labelled for recycling. Make sure that all packaging is discarded in a safe manner and is stored out of reach of children since irresponsible use may be dangerous.
Ask the dealer or local authorities about where the packaging may be delivered for recycling.
Waste management of the product:
This product falls under EU Directive 2012/19/EU concerning waste from electrical and electronic equipment (WEEE). This symbol specifies that the product must not be treated as household waste. Valuable raw materials may be recovered by recycling used products. By ensuring that the product is recycled correctly, you can contribute to preventing potential negative consequences to the environment and human health.
When the product is to be discarded:
- Pull out the mains plug.
- Cut off the power cable.
- Check that the cooling circuit is not damaged prior to waste management.
Information in the coolant is specified on the type plate. - Products that are no longer in use must be handled in a professional and correct manner in accordance with local statutes and regulations.
Safety rules and warnings
THE MANUFACTURER OF THE PRODUCT CANNOT BE HELD RESPONSIBLE FOR DAMAGE THAT IS DUE TO THESE SAFETY RULES AND WARNINGS NOT BEING FOLLOWED.
- Read the use and installation instructions carefully before you start using the product.
- This product is intended for private use. The manufacturer cannot be held responsible for damage in consequence of erroneous or unintended use of the product.
- Persons, who due to their mental or physical conditions, or due to their inexperience or lack of knowledge, are not in a condition to operate the cabinet in a safe manner, must not use this cabinet without supervision or guidance from a responsible person.
- The product is not a toy! Due to the risk of injury, you must not let children play with or in the vicinity of the product or play with the buttons. Have small children under supervision while you are using the product. Older children may only use the product if it has been explained to them how they can use it safely and are familiar with the dangers of erroneous use.
- Check that the product does not have any visible damage. Do not install or use a damaged product. Contact the supplier immediately for further advice before you install/connect up the power cord. R600a
The product contains the coolant Isobutane (R600a), a natural gas that is environmentally friendly. (R600a), that no parts of the cooling system have been damaged during transport or installation. Leaking coolant can injure the eyes. If the product has been damaged:
a. Avoid open flames and everything that can create sparks.
b. Disconnect the power cord.
c. Air out the room where the product is located, for several minutes.
d. Contact the supplier for further advice.
The more coolant a product contains, the larger the room it should be placed in. Leaking coolant can form a flammable gas-air mixture in a room that is too small. According to the EN378 standard, the room must have at least 1 m3 for each 8 g of coolant. The quantity of coolant in the device is specified on the type plate on the inside of the product.- Before you connect up the power cord, you must check that the information on the type plate (voltage and connected load) accord with the power grid. This information must match up in order to avoid risks of damage to the product. Contact a qualified electrician if you have doubts.
- Guarantees for the product’s electrical safety may only be given when there is an uninterrupted connection between the product and an effective grounding system that complies with the applicable local and national regulations. It is extremely important that this fundamental safety requirement be fulfilled and checked regularly. In the event of any doubts, the wiring network in the house must be checked by a qualified electrician. The manufacturer cannot be held responsible for product damage or personal injuries that are due to a deficient or insufficient grounding system, such as electrical shocks for example.
- If the wiring is damaged or other repairs are necessary, then the work may only be performed by an approved service technical such that the user is not exposed to any dangers.
- A guarantee is made only for the product being safe to use if it has been installed and connected up in accordance with these use and installation instructions.
- Installation, maintenance and repairs must only be performed by an authorised repairman in accordance with national and local safety regulations. Repairs and other work by unqualified personnel may be dangerous and the manufacturer will not be held responsible. The power cord must not be connected to the power grid before maintenance or repairs have been performed.
- The product is only completely disconnected from the power supply when: a. the mains plug. has been pulled out b. The fuse in the house installation is completely disconnected c. The screw fuse has been removed (in countries where this is relevant)
- Do not connect the product to the power grid with an extension cord. Extension cords do not provide satisfactory safety for the product (involve for example a danger of overheating).
- Do not store explosive substances or products that contain propellants (for example aerosols) in the product. Thermostats that are activated can emit sparks and pose a fire hazard. Flammable substances may explode.
- Do not use electrical equipment in this product. Danger of sparks and explosion.
- Do not use oil or grease on the door seal, because oil and grease can damage the seal and gradually make it porous.
- Do not block the valve openings, because it will make the product less effective, increase its power consumption and the product may be damaged.
- The product is intended for use within definite climate classes (ambient temperature) and ought not to be used outside such limits. The climate class is specified on the type plate on the inside of the product and in chapter 6.
- Do not use a steam cleaner to clean the product. Steam can penetrate between the electronic components and cause short-circuits.
Product information
The Norcool drawer fridge is designed for maximum functionality and flexibility, whilst being a modern and exciting alternative to the traditional fridge. The drawer fridge module has a total capacity of 180 litres with two external and one internal drawers. These can be fully extracted and are fitted with dividers and shock absorption.
The inside drawer is designed for relatively small food items, and its fittings can be moved/changed if required. The upper drawer can be used for almost all types of foods and has a flexible layout. 3The bottom drawer has been designed for storing bottles/beverage cartons and heavier products. On the right, there is a bottle rack that will take three lying 1.5 l bottles. In the front part of the drawer, the partition can be used to organize standing bottles/cartons. In the left back corner of the drawer there is a removable storage box. This box is excellent for storing things like bags of vegetables or potatoes.
NOTE: Do not wash the box in the dishwasher to avoid it becoming deformed!
The drawer fridge is available with stainless steel front and handle, or can be integrated with kitchen fronts (comes without handles).
This product is not designed for commercial use.
Measures for energy conservation
Measures for energy conservation
The most important energy conservation measure is that the drawer fridge door not left open, this will cause increased running time and increased energy consumption.
Having good order and organization in your drawer fridge will save you much searching and time, and you will reduce the running time and energy consumption.
- Install the product in a well-ventilated room. Make sure it is installed so that it is not in direct sunlight or near a heat source.
- Hot foods should always be cooled before it is inserted as this increases the frost formation and increases the running time. Frozen food can be advantageously thawed in the product.
- The food will thaw more gently and frozen food will emit refrigerant to the product and this will save travel time and energy.
- Do not fill the drawers with too much merchandise, it is important to have good air circulation to cool the food in the best possible way.
- Avoid that the drawers are open over time, place the goods so you can easily reach what you need.
- Clean the magnetic strip around the drawer regularly to prevent them from getting dirty and make sure they are not broken so that cold air is released.
Important information
To ensure proper installation and use and thereby prolong the lifetime of the product, you must study this installation and user manual carefully prior to installation. Repairs must only be made by qualified personnel. The manufacturer will not assume liability for any damage resulting from non-compliance with the following instructions. Keep these instructions in a safe place as they contain many tips on use and regular maintenance. The product will require maintenance even in normal use and replacement of parts which are worn out can be necessary. These are not covered during the warranty period, but are covered by the guarantee in accordance with the Sale of Goods Act.
Overvoltage protection is recommended to protect the fridge’s electronics. Electrical safety for the appliance is only guaranteed if the earthing system in the house has been mounted in a manner in accordance with the regulations.
A data plate with serial number is located on the inside back wall in the bottom right corner. Serial number must always be stated when contacting service contractor or manufacturer.
Scandinavian Appliances AS disclaims all liability for typographical errors in this user manual and reserves the right to alter the product specifications.
Dimensions and technical specifications

A 795mm
B 700mm
C 565mm
D Min 820 – Max 870mm
E Min 120mm – Max 170mm
F 340mm
G 788mm
| Exterior dimensions | W795 x H820 – 870 x D565 mm |
| Niche dimensions | W800 x H820 (min) x D565 mm |
| Usable volume | 104 liters |
| Temperature range | Approx. 2–10 degrees |
| Volt/Hz | 220 – 240V AC 50Hz |
| Climate class | ST |
| Energy class | E |
| Energy consumption | 103 kWh/year |
| Noise level | 40dB |
| Defrosting | Automatic |
| Insulation | Polyurethane foam, non-CFC |
| Coolant | R600A |
| Weight | Net 61–66 kg |
| Weight pr. drawer | 20 kg (without steel/furniture panel) |
| Drawers | 2 external and 1 integrated |
| Cable length | 2,4 m |
| Ventilation requirement | 130 cm3 x 2 (grids enclosed) |
| Compressor | Compressor cooling |
| Climate class | Ambient/room temperature |
| SN | +10°C to +32°C |
| N | +16°C to +32°C |
| ST | +16°C to +38°C |
| T | +16°C to +43°C |
| SN – ST | +10°C to +38°C |
| SN – T | +10°C to +43°C |
Climate range
According to climate specifications, this product should be operated at TEMPERATE (ST) climate class, meaning between +16 to 38 C ambient temperature range.
Pre-installation
Check for transport damage after unpacking. Do not use a damaged product. In the event of damage, please contact the shipping company and make sure that the damage is noted on the consignment note. Check that you have all the parts on the parts list at the back of this guide. Contact your vendor in the event of damage or missing parts.
The product must be connected to a 220V-240V 50 Hz earthed electrical power supply with at least a 10A fuse. We recommend placing the socket next to the product, for example in an adjoining unit.
This product is designed to be installed under a worktop, which must be fastened to the kitchen fittings and/or wall to ensure that it does not tip forward when drawers are pulled out. This product cannot be used as a free-standing unit.
Installation
Requires a space of W 800 x H 820 (min) – 870 (max) x D 565 mm Adjust the back levelling legs so that the back edge of the drawer fridge just clears the underside of the worktop. Fig 1.
Extract retaining brackets Fig. 2.
Carefully slide the product into position and adjust the front legs so that the front edge squeezes firmly against the underside of the worktop. Fig 1.

Fig. 2
Pull out the upper drawer so that you get to the mounting bracket. Fasten the bracket beneath the worktop with the two supplied screws. This is to ensure that the product cant tip forward when the drawers are pulled out.
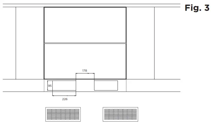
Fig. 3
The two enclosed ventilation grids are to be installed in the base in accordance with Fig. 3. To ensure the correct functioning of the appliance, these grilles must not be covered.

When fitting kitchen fronts, holes must be drilled in drawer fronts. A hole must be drilled between the front’s black edge profile on exposed surface not covered by magnetic seal. There must be a distance of 25 mm from the profile outer edge to centre of hole. Ensure that the screw heads do not come in contact with magnetic seal. Secure handle to kitchen front. Use countersinking to avoid contact with fridge drawer front. See fig. 4.
If mounting a stainless steel front, drill a 4.5 mm hole to secure the front/handle and use the stainless steel panel as a template for drilling. Secure handle once panel has been fitted with expansion plugs.

Fitting/removing drawers
9.1 Removing front/drawer
Lift the front edge – Remove the covering on
push gently down – the side of the drawer.
pull the drawer out.
9.2 Side adjustment
The front of the drawer is adjusted laterally right/left. A turn to the left will move the drawer 1 mm to the left. Adjust both sides of drawer if necessary.
Inserting the drawers
Place the back edge of the drawer on the runners inside the cabinet, hold the drawer in a horizontal position and push it in until you hear the drawer locking into position. Carefully pull the drawer out to check that it is locked. Repeat if necessary.
9.3 Height adjustment
he height can be adjusted +/- 2 mm
9.4 Tilt adjustment
Vertical adjustment of the front. Make sure that the magnetic gasket seals adequately
Use and maintenance
10.1 Prior to start
Allow the product to stand for about 2 hours before connecting power/start. This will allow the oil in the cooling system to collect in the compressor after transport/ installation. The product starts approx. 1 min after the power is connected.
The temperature is adjusted if necessary using the thermostat located inside the bottom drawer on the right side and will appear when the drawer is pulled out. For lower temperature, turn the thermostat clockwise. For higher temperature, turn the thermostat counter clockwise.
10.2 Maintenance
- To avoid mold, odors, etc., it is important to clean the product regularly. We recommend that you use mild, hot, soapy water.
- Collection gutter and drain hose inside should be cleaned at least two times per year and otherwise as required so that thawing water can flow freely out to evaporation bowl. Make sure the cleaning water does not leak into the evaporation bowl.
- Do not use harsh / caustic soap funds.
- Do not use a steam cleaner to clean the product. The steam can penetrate the electrical components and cause short circuit.
- Do not wash the box, which is in the bottom drawer, in the dishwasher as this may be deformed.
NOTE: The drawer runners must not be cleaned/lubricated/oiled. Wipe with a damp cloth in case of spills.
10.3 Noises
Norcool corner fridges are quiet compared to similar products on the market, but some noise can be expected.
- Humming from the compressor. Can increase when the motor starts up.
- Gurgling can occur from coolant in the pipes
- Humming from the circulation fans
10.4 Troubleshooting and service
Make sure the ventilation grids are mounted in the base according to installation instructions. See Figure 3.
| Fault | Cause | Remedy |
| Not cooling sufficiently | 1. Thermostat set too warm. 2. Ambient temperature too high 3. Ambient temperature too low. 4. Drawer not sealed/closed. 5. Evaporator iced up. | 1. Set thermostat colder. 2. Lower temperature in the room where the product is located. 3. Increase temperature in the room where the product is located. 4. Check that the drawer is sealed/closed. 5. Defrost unit by disconnecting mains plug. |
| Fan not working | 1. Fan defective. 2. Fuses. 3. Mains power cable. | 1. Replace fan (must call service engineer). 2. Check fuses. 3. Check that power cable is properly connected. |
For service, order service by telephone: 0844 247 9000 or via our web site at www.norcool.co.uk. By having checked these points before summoning help, you will help the service technician with the parts that might need to be brought along and the specific measures that may need to be taken.
Delivery terms and conditions
Delivery terms and conditions for Norway. For other countries, contact your dealer.
11.1 Consumer purchases
These terms and conditions govern customer rights with respect to the supplier (Norcool) when purchasing new Norcool products that will be used in a normal manner in private housekeeping. Such as is determined in the following points, the supplier is obligated to remedy defects/omissions that arise.
- Supplier’s warranty
The supplier warrants that the product as it is delivered has the characteristics and the quality that has been prescribed in the supplier’s brochures or other written sales material. Minor deviations may occur in consequence of product changes. The warranty period runs for 2 years commencing on the day the product was delivered to the customer. Due to these devices having a complicated technical design, it is important that the customers follow the instructions for use carefully. The products will even with normal use be subjected to wear that may necessitate preventive maintenance, and thereby also replacement of wearing components (fans, starting equipment, compressor component with a variable lifespan depending upon their use and maintenance). - Purchaser’s rights
The deadline for making claims with consumer purchases is 2 years. When the equipment or parts of it is intended to last significantly longer in normal use, the deadline for claims is 5 years. For such claims, it is a precondition for the liability for the deficiency to be valid that the deficiency was present at the point in time of delivery. Customers will in all instances lose their right to pursue claims if they do not make a claim within a reasonable period of time after they have detected, or ought to have detected, the deficiency. In the event of deficiencies related to purchasing law, the supplier has the right to repair the product with the deadlines that follow from the Sale of Goods Act. After the warranty period has expired, the terms and conditions for the scope of the supplier’s liability for deficiencies in the equipment will be governed by the Sale of Goods Act. - Supplier’s remediation (transport of products)
The supplier and/or dealer in the supplier’s products may decide whether defects/ omissions may be repaired at the customer site, at its own site, or at a designated workshop in accordance with the following guidelines.
a) The customer is obligated to place the product at the disposition of the repair technician. The supplier will defray the expenses of the repairs. this applies for products that are located within the natural sales territory of the supplier or distributor! What is meant by natural sales territory is a distance between the supplier/ dealer and customer by road of max. 20 km. If the distance is more than 20 km, and the dealer is the entity located closest to the customer, then the supplier will pay the travel costs regardless. If this would bring about unreasonable costs or drawbacks, then the obligation to undertake the remediation as mentioned above at no cost to the customer does not apply!
Normally, this instance would be if the customer is unable to be reached by normal means of communication, and/or if the customer does not live where there is a connection to the mainland.
b) Repairs/Remediation at the workshop. If customers can bring in and fetch the product without significant drawbacks, then they must bring it in to the designated workshop for repairs, or ship the product, in such case at their own expense and risk. If customers are unable to bring the product in to a specified workshop without unreasonable drawbacks and/or costs, then such in the lack of any other agreement occur in the most reasonable manner, and be sent at the supplier’s expense and risk to the specified workshop.
NOTE: THE PRODUCT MUST BE PROPERLY PACKAGED! - Supplier’s liability to pay compensation
Customers may under more detailed terms and conditions demand compensation for financial losses pursuant to the rules of the Sale of Goods Act. The Supplier is however in no instance liable for indirect losses (as mentioned in the Sale unable Goods Act, section 67(2)). If damage is inflicted on objects that have a direct or close interrelationship with the product’s stipulated function or use, then the supplier is only liable to the extent such are consequences of rules of law that cannot be deviated from. The same applies for liability for personal injuries. Damages and injuries of this nature shall in every instance be handled between the supplier and customer. - What the supplier’s liability does not encompass
Customers have no ability to pursue claims against the supplier or dealer if defects/ omissions, or any possible damages/injuries, are a consequence of:
a) Installation that has not been performed in accordance with the electric utility’s provisions or is in violation of our installation instructions that are to be deemed to be requirements. The cold room bust in terms of its technical construction satisfy the applicable requirements, including requirements for insulation, choice of materials and ventilation.
b) Actions in violation of the instructions for use, or other indefensible actions. (Lack of maintenance!)
c) Repairs or interventions performed by unauthorised persons, or use of non- original parts.
d) Accidents or other circumstances after delivery to the customer that lie outside the control of the supplier/dealer, including voltage fluctuations beyond +/- 10 % of the rated voltage, lightning strikes, and electrical power outages.
e) Corrosion/deposits due to the surroundings.
f) Normal wear. (See point 1) - Disputes
Disputes that concern the application of these terms and conditions may, via the consumer council’s complaints mechanism, be brought in for resolution by the industry’s complaints tribunal.
11.2 Business purchase
What is to be understood by business purchase is everything that is not a consumer purchase and which is used for example in cafes, restaurants, snack bars, hotels, motels, companies, or other business-related activity. As well as use in schools, institutions, rented rooms, preschools, athletics facilities, shared households, and housing cooperatives, plus instances where the customer in full or in part receives payment for use of the device, or where it is included in a shared house, possibly a leasing relationship. Or where the device is used to maintain a good that the customer sells. All these things are business purchases. The period for filing claims and the warranty period is then 6 months. This applies for any losses that the deficiency might cause, for example such as operating losses, lost earnings and other consequential financial losses. This limitation to the supplier’s liability does not apply if it is guilty of acting with gross negligence.
Package list
Refrigerated drawer for integration / Refrigerated drawer stainless steel
| Figure | Description | Ref. no | Qty. |
| Refrigerated drawer for Integration | |||
![]() | Carcass with fronts and cooling parts. | 1 | |
![]() | Plate screw 3.9×16 | 1156021120 | 2 |
![]() | Air grid | 1137993670 | 2 |
| Refrigerated drawer stainless steel | |||
![]() | Carcass with fronts and cooling parts. | Ref. no | 1 |
![]() | Handle | 1111993750 | 2 |
![]() | Plate screw 3.9×16 | 1156021120 | 2 |
![]() | Mech. screw 4×45 | 1156012570 | 4 |
![]() | Air grid | 1137993670 | 2 |
Notes: ————
Scandinavian Appliances AS
Postboks 61
NO-1740 Borgenhaugen
Norway
T: +47 815 69 117
[email protected]
www.norcool.no
Please visit out website for operating & installation instructions in other languages.
Version 2.1 – May 2022

























